Prodej pozemku pro bydlení, Mirkovice, 901 m2

Mirkovice

3 149 000 Kč
/za nemovitost
Hypotéka od 14 074 Kč /měs. Chci hypotéku

Parametry pozemku

AdresaMirkovice
ID0037
Lokalita objektuOkraj obce
Plocha pozemku901 m2
KomunikaceAsfaltová
DopravaSilnice, Autobus

Origo partneři v Mirkovicích

Výkup a prodej starého nábytku

Popis

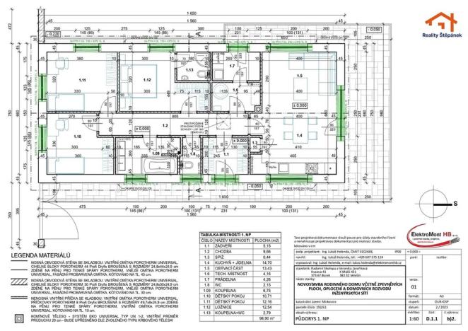
Nabízíme k prodeji stavební parcelu parc. č. 192/61 o ploše 901 m² v obci Mirkovice u Českého Krumlova, kde vzniká nová moderní zástavba. Jedná se o jednu z posledních nezastavěných parcel v lokalitě. Pozemek je rovinatý, lichoběžníkového tvaru, s napojením na obecní komunikaci. Na pozemku je již vybudována základová deska a kompletní přípojky inženýrských sítí, součástí převodu je také stavební povolení pro výstavbu rodinného domu 4+kk se dvěma koupelnami a ověřená projektová dokumentace.

Dům je navržen jako přízemní s obdélníkovým půdorysem 16,5 × 7,5 m a zastavěnou plochou 123,75 m². V projektu je zahrnuto zádveří, obývací pokoj s kuchyní a jídelnou, tři ložnice, dvě koupelny, technická místnost a terasa. Vytápění je řešeno tepelným čerpadlem vzduch–voda s možností doplnění o krbová kamna. Dům tak bude nabízet prostorné rodinné bydlení s rozumnými náklady na provoz.

Pozemek se nachází v klidné vesnici s rychlou dojezdovou vzdáleností do Českého Krumlova i Velešína. K dispozici je parkovací stání přímo na pozemku i možnost parkování na obecním pozemku před domem. Díky již vydanému stavebnímu povolení dle starého stavebního zákona není nutné zpracovávat dokumentaci pro provedení stavby, což ušetří budoucímu majiteli čas i náklady a může ihned pokračovat s výstavbou.

Parcela je tak ideální volba pro ty, kteří chtějí moderní bydlení v klidu venkova a zároveň mít město na dosah, ale nechtějí absolvovat dlouhé stavební řízení.

Makléř

Máte zájem o tento pozemek?

Tímto, v souladu s nařízením Evropského parlamentu a Rady (EU) 2016/679, v platném znění, prohlašuji, že mi je alespoň 16 let a uděluji tak svůj souhlas se zpracováním zadaných údajů (jméno, telefon, e-mail, ip adresa) společnosti B3 Technology, s.r.o., IČ: 07330600, se sídlem Novostavby 126/23, 435 11 Lom (správce dat), za účelem předání dotazu z tohoto formuláře Vámi vybranému inzerentovi a zpětného kontaktování mé osoby. Osobní údaje bude správce zpracovávat manuálně i automaticky přímo prostřednictvím svých zaměstnanců. Informace předané tímto formulářem budou uloženy v databázi správce maximálně po dobu 10 let. Odvolání souhlasu s uložením a zpracováním poskytnutých dat lze e-mailem na info@origo-reality.cz. V případě podezření na neoprávněné použití Vámi poskytnutých údajů máte právo předat podnět k šetření Úřadu pro ochranu osobních údajů. Více informací
Chystáte se prodat nemovitost?
Pomůžeme Vám!

Přihlášení k odběru

Nenechte si ujít nejnovější nabídky prodeje pozemků pro bydlení v Mirkovicích.