Prodej rodinného domu, Kožichovice, 120 m2 (ID: 1817036)

Kožichovice

4 790 000 Kč
/za nemovitost
včetně DPH, včetně provize, včetně právního servisu
Hypotéka od 21 408 Kč /měs. Chci hypotéku

Parametry domu

AdresaKožichovice
ID00093
StavbaCihlová
Stav objektuPřed rekonstrukcí
Druh objektuRohový
Lokalita objektuKlidná část obce
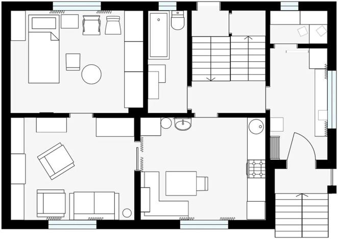
Užitná plocha120 m2
Plocha pozemku834 m2
Třída energetické náročnostiG - Mimořádně nehospodárná
Ukazatel energetické náročnosti428 kWh/m2 za rok
PlynPlynovod
OdpadVeřejná kanalizace
VodaVodovod
Sklep
Výtah

Origo partneři v Kožichovicích

Popis

Místa, která mají budoucnost, poznáte podle polohy – a Kožichovice mezi ně rozhodně patří. Těsná blízkost Třebíče, přímá dostupnost k Dukovanům a klidné prostředí dělají z této lokality chytrou volbu pro bydlení i investici.

V této lokalitě máme v nabídce dvougenerační rodinný dům ze 70. let, který je složen ze dvou bytových jednotek. První o dispozici 2+1 – v přízemí s praktickou verandou a druhou v patře, také s vnitřním členěním 2+1. Celý dům je podsklepený a nechybí ani prostorné podkroví vhodné jako úložný prostor či možnost obytné vestavby. Na pozemku se nachází také zděná kůlna či menší domek na nářadí. Stav domu odpovídá době výstavby a je určen k celkové rekonstrukci, která však otevírá prostor pro modernizaci podle vašich představ – ať už hledáte komfortní vícegenerační bydlení nebo zajímavou investiční příležitost.

Velkou výhodou je možnost čerpat dotaci z programu Nová zelená úsporám – Oprav dům po babičce, která může výrazně snížit náklady na rekonstrukci.Další výhodou je možnost zvýhodněného financování této rekonstrukce s úrokovou sazbou od 2,95 % p.a. S vyřízením žádosti vám rádi pomůžeme.

Zahrada skýtá široké možnosti využití – prostor pro zahradničení, pergolu, letní grilování i klidné posezení. Fantazii se meze nekladou. Dům čeká na nové majitele, kteří mu dají nový život a využijí jeho potenciál!

Klidné venkovské prostředí obklopené přírodou, rybníky a zelení. Lokalita se nachází jen pár minut od Třebíče a zároveň v dobré dojezdové vzdálenosti do Jaderné elektrárny Dukovany, což z ní činí strategicky výhodné místo k bydlení i investici.

Cena bytu zahrnuje provizi, právní, finanční a administrativní servis. Zajistíme pro Vás i nejvýhodnější financování nemovitosti.

Neváhejte si s námi domluvit prohlídku a přijďte si své nové místo k životu prohlédnout osobně.

Těšíme se na vás.

Makléř

Máte zájem o tento dům?

Tímto, v souladu s nařízením Evropského parlamentu a Rady (EU) 2016/679, v platném znění, prohlašuji, že mi je alespoň 16 let a uděluji tak svůj souhlas se zpracováním zadaných údajů (jméno, telefon, e-mail, ip adresa) společnosti B3 Technology, s.r.o., IČ: 07330600, se sídlem Novostavby 126/23, 435 11 Lom (správce dat), za účelem předání dotazu z tohoto formuláře Vámi vybranému inzerentovi a zpětného kontaktování mé osoby. Osobní údaje bude správce zpracovávat manuálně i automaticky přímo prostřednictvím svých zaměstnanců. Informace předané tímto formulářem budou uloženy v databázi správce maximálně po dobu 10 let. Odvolání souhlasu s uložením a zpracováním poskytnutých dat lze e-mailem na info@origo-reality.cz. V případě podezření na neoprávněné použití Vámi poskytnutých údajů máte právo předat podnět k šetření Úřadu pro ochranu osobních údajů. Více informací
Chystáte se prodat nemovitost?
Pomůžeme Vám!

Přihlášení k odběru

Nenechte si ujít nejnovější nabídky prodeje rodinných domů v Kožichovicích.