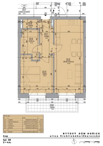
Prodej bytu 2+kk, Hořice, Zborovská, 48 m2

Zborovská, Hořice

4 340 670 Kč
/za nemovitost
Hypotéka od 19 400 Kč /měs. Chci hypotéku

Parametry bytu

AdresaZborovská, Hořice
ID20
StavbaCihlová
Stav objektuVe výstavbě
Patro3. z 3
VlastnictvíOsobní
Užitná plocha48 m2
Třída energetické náročnostiA - Mimořádně úsporná
Ukazatel energetické náročnosti57 kWh/m2 za rok
Elektřina230V
OdpadVeřejná kanalizace
KomunikaceDlážděná, Asfaltová
TelekomunikaceTelefon, Internet, Satelit, Kabelová televize, Kabelové rozvody
DopravaVlak, Dálnice, Silnice, MHD, Autobus
VodaVodovod
Balkon
Výtah
Bezbarierový přístup
Parkování

Origo partneři v Hořicích

Popis

Nabízíme k prodeji moderní byt 2+kk o velikosti 48 m² v novém pasivním bytovém domě na ulici Zborovská v Hořicích. Byt se nachází ve 2. patře třípodlažní cihlové budovy ve výstavbě a nabízí komfortní a úsporné bydlení v energetické třídě A.
Dispozice bytu zahrnuje prostorný obývací pokoj s kuchyňským koutem, dvě ložnice, koupelnu, samostatné WC a balkon orientovaný na jih s výhledem do okolní krajiny. Díky pasivnímu standardu výstavby se můžete těšit na nízké provozní náklady a příjemné vnitřní klima po celý rok.
Bytový dům je situován v klidné části Hořic s dobrou dostupností do centra města a veškerou občanskou vybaveností v dosahu. K bytu je možné dokoupit parkovací nebo garážové stání.
Pro více informací navštivte webové stránky projektu (byty-horice) nebo nás neváhejte kontaktovat.

Makléř

Máte zájem o tento byt?

Tímto, v souladu s nařízením Evropského parlamentu a Rady (EU) 2016/679, v platném znění, prohlašuji, že mi je alespoň 16 let a uděluji tak svůj souhlas se zpracováním zadaných údajů (jméno, telefon, e-mail, ip adresa) společnosti B3 Technology, s.r.o., IČ: 07330600, se sídlem Novostavby 126/23, 435 11 Lom (správce dat), za účelem předání dotazu z tohoto formuláře Vámi vybranému inzerentovi a zpětného kontaktování mé osoby. Osobní údaje bude správce zpracovávat manuálně i automaticky přímo prostřednictvím svých zaměstnanců. Informace předané tímto formulářem budou uloženy v databázi správce maximálně po dobu 10 let. Odvolání souhlasu s uložením a zpracováním poskytnutých dat lze e-mailem na info@origo-reality.cz. V případě podezření na neoprávněné použití Vámi poskytnutých údajů máte právo předat podnět k šetření Úřadu pro ochranu osobních údajů. Více informací
Chystáte se prodat nemovitost?
Pomůžeme Vám!

Přihlášení k odběru

Nenechte si ujít nejnovější nabídky prodeje bytů 2+kk v Hořicích (okr. Jičín).