Prodej rodinného domu, Řevnice, Kejnská, 103 m2

Kejnská, Řevnice, okres praha-západ

10 390 000 Kč
/za nemovitost
Hypotéka od 46 437 Kč /měs. Chci hypotéku

Parametry domu

AdresaKejnská, Řevnice, okres praha-západ
ID966253
StavbaCihlová
Stav objektuVelmi dobrý
Typ objektuPatrový
Druh objektuSamostatný
VlastnictvíOsobní
Užitná plocha103 m2
Zastavěná plocha79 m2
Podlahová plocha123 m2
Plocha pozemku173 m2
Třída energetické náročnostiG - Mimořádně nehospodárná
Elektřina400V
OdpadVeřejná kanalizace
TopeníLokální tuhá paliva, Lokální elektrické
VodaVodovod
Garáž
Sklep
Výtah

Origo partneři v Řevnicích

Popis

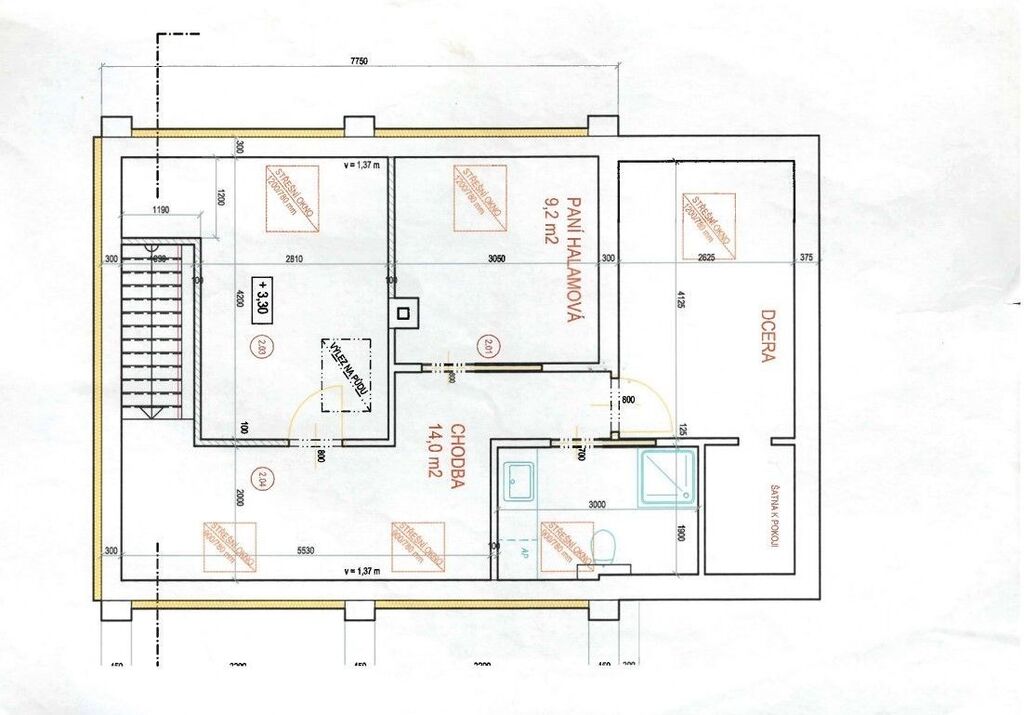
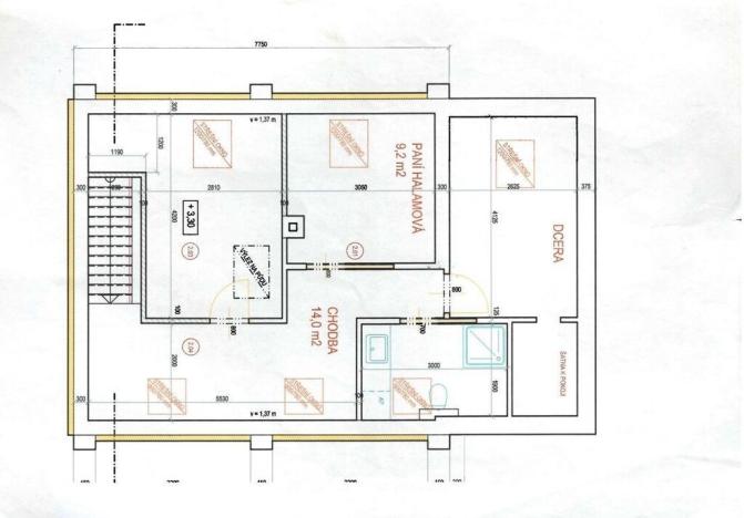
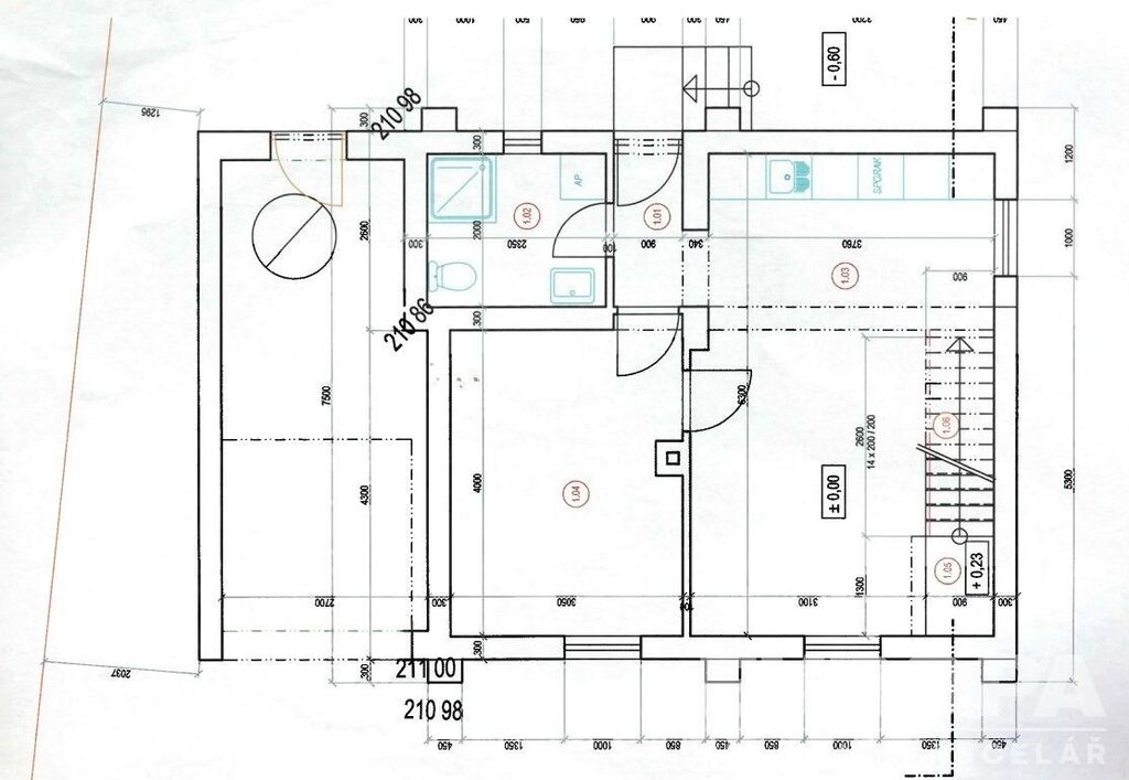
Nabízíme k prodeji rodinný dům o dispozici 5+kk v klidné části obce Řevnice, ulice Kejnská. Dům byl kolaudován v roce 2012, stavba vznikla na původním RD, kdy došlo k rozšíření o obytné podkroví, nová zdivo (cihla, ytong), okna, zateplení, střecha, garáž jako novostavba.
Celková výměra pozemku činí 173 m², z toho zastavěná plocha je 79 m². Dům je dvoupodlažní, přízemí a obytné podkroví, podsklepený praktickým sklepním prostorem.
V přízemí se nachází vstupní předsíň, obývací pokoj s kuchyňským koutem a krbem, jedna ložnice a koupelna se sprchovým koutem a toaletou. V podkroví jsou tři samostatné ložnice a druhá koupelna s wc.
Dům je napojen na inženýrské sítě (voda, elektřina, kanalizace), má vlastní studnu s užíváním vody užitkové. Vytápění je řešeno v přízemí podlahovým vytápěním, v patře elektrickými přímotopy a doplněno krbovými kamny v přízemí domu. ohřev vody zajišťuje elektrický bojler.
Řevnice jsou vyhledávanou lokalitou s výbornou dostupností do Prahy – vlakem cca 30 minut na Hlavní nádraží, autem cca 25 minut po D4 nebo Strakonické. V obci je kompletní občanská vybavenost – základní a mateřská škola, lékař, obchody, restaurace, kulturní i sportovní vyžití. Okolí nabízí krásnou přírodu Brd, řeku Berounku a možnosti pro turistiku a cyklistiku. V případě zájmu kontaktujte makléře.

Makléř

Máte zájem o tento dům?

Tímto, v souladu s nařízením Evropského parlamentu a Rady (EU) 2016/679, v platném znění, prohlašuji, že mi je alespoň 16 let a uděluji tak svůj souhlas se zpracováním zadaných údajů (jméno, telefon, e-mail, ip adresa) společnosti B3 Technology, s.r.o., IČ: 07330600, se sídlem Novostavby 126/23, 435 11 Lom (správce dat), za účelem předání dotazu z tohoto formuláře Vámi vybranému inzerentovi a zpětného kontaktování mé osoby. Osobní údaje bude správce zpracovávat manuálně i automaticky přímo prostřednictvím svých zaměstnanců. Informace předané tímto formulářem budou uloženy v databázi správce maximálně po dobu 10 let. Odvolání souhlasu s uložením a zpracováním poskytnutých dat lze e-mailem na info@origo-reality.cz. V případě podezření na neoprávněné použití Vámi poskytnutých údajů máte právo předat podnět k šetření Úřadu pro ochranu osobních údajů. Více informací
Chystáte se prodat nemovitost?
Pomůžeme Vám!

Přihlášení k odběru

Nenechte si ujít nejnovější nabídky prodeje rodinných domů v Řevnicích.