Prodej bytu 2+kk, Hurgáda,Egypt, 87 m2
Hurgáda,Egypt
/za nemovitost
Parametry bytu
| Adresa | Hurgáda,Egypt | 
|---|---|
| ID | 14366 | 
| Stavba | Cihlová | 
| Stav objektu | Novostavba | 
| Patro | 4. z 5 | 
| Vybaveno | Ne | 
| Lokalita objektu | Centrum obce | 
| Vlastnictví | Osobní | 
| Užitná plocha | 87 m2 | 
| Třída energetické náročnosti | G - Mimořádně nehospodárná | 
Popis
Mám pro Vás příležitost ke koupi krásného světlého bytu se dvěma velkými lodžimi a částečným výhledem na moře. Bytový projekt Al Hambra v Hurgádě nabízí bydlení na dobré adrese v dosahu všeho, co můžete k pohodlnému užívání nebo pronajímání bytu potřebovat.
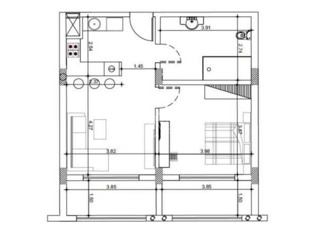
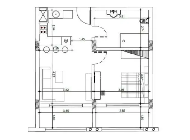
Nabízený byt má započtenou plochu 87 m2 (včetně podílu na společných prostorách, přibl. 20 % ze započtené plochy). Byt má dispozici typu 2+kk (obývací pokoj s kuchyňským koutem, ložnice, koupelna s WC) s lodžií v obývacím pokoji a v ložnici. Byt se nachází na 3. patře čtyřpatrové budovy, výhled je na klidný bulvár Mamsha a moře vzdálené přibl. 200 m vzdušnou čarou. Orientace bytu je východní.
Rezidenční projekt Al Hambra 1st Avenue je situován v těsné blízkosti centra Hurgády, na ulici El Mamsha, která jednou z nejznámějších turistických oblastí v Hurgádě. Cesta z mezinárodního letiště trvá jen 5 minut. Lokalita je klidná, čistá a převážně s evropskou komunitou a bohatým zastoupením české komunity přímo v rezidenci Al Hambra a ve vedlejším projektu Princess.
Rezort zahrnuje rezidenční budovy, velký bazén, zahradu, restaurace, fitness, obchody, butiky, služby, wellness, hypermarket, lékařskou kliniku a parkoviště. V budově bude k dispozici ostraha, recepce, hotelové služby a správa nemovitosti včetně služby pronajímání bytů. Samozřejmostí jsou výtahy ve všech budovách.
S koupí bytu souvisí úhrada jednorázové zálohy na údržbu a servisního poplatku ve výši 43500 EGP (přibl. 21000 Kč).
Bytový komplex Al Hambra se nyní dokončuje, byty se již nyní postupně odevzdávají do užívání majitelům. Služby a komerční jednotky budou postupně zahajovat provoz během roku 2025.
Byt je dokončený, nevybavený - koupelny jsou osazeny zařizovacími předměty, místnosti mají keramické podlahy, připravený obklad za kuchyňskou linku, kompletní elektrické instalace, přípravu na klimatizaci, posuvná hliníková okna. S vybavením bytů klimatizací, kuchyňskou linkou a nábytkem rádi pomůžeme.
Majitelé bytů mají přístup na soukromou pláž vzdálenou 300 m od rezidence určenou pouze pro majitele bytů v rezortech developera. Užívání pláže je umožněno formou klubového členství s ročním předplatným nebo zvýhodněným denním vstupným.
V bytovém projektu je k dispozici i mnoho dalších bytů menší i větší velikosti s výhledem na bazén, nebo do vedlejší zástavby/na hory.
Prodejem nemovitosti mé služby nekončí. Svým klientům společně s mým týmem zajistíme právní servis, pomůžeme se zařizováním bytu, poskytneme praktické informace, pomůžeme s řešením pronajímání bytu. Na mých stránkách bytyvegypte najdete mnoho odpovědí na často kladené otázky a videa s užitečnými informacemi o koupi nemovitosti a životě v Egyptě. Pomohu Vám případně i s řešením hypotečního úvěru na koupi bytu v Egyptě (s podmínkou zastavení nemovitosti v ČR).
Přihlášení k odběru
Nenechte si ujít nejnovější nabídky prodeje bytů 2+kk.
 
                                                                                     
                                                                                     
                                                                                     
                                                                                     
                                                                                     
                                                                                     
                                                                                     
                                                                                     
                                                                                     
                                                                                     
                                                                                     
                                                                                     
                                                                                     
                                                                                     
                                                                                     
                                                                                     
                                                                                     
                                                                                     
                                                                                     
                                                                                     
                                                                                     
                                                                                     
                                                                                     
                                                                                     
                         
         
         
         
         
         
         
         
        