Pronájem bytu 2+kk, Praha - Holešovice, Jankovcova, 62 m2

Jankovcova, Holešovice - Praha 7

26 900 Kč
/za měsíc
vratná jistota, náklady na bydlení 5915 kč, poplatek za podnájem
Získejte výhodnou HYPOTÉKU Chci hypotéku

Parametry bytu

AdresaJankovcova, Holešovice - Praha 7
IDN3982
StavbaCihlová
Stav objektuNovostavba
Patro3. z 7
VybavenoNe
Typ objektuPatrový
Lokalita objektuKlidná část obce
VlastnictvíOsobní
Užitná plocha62 m2
Podlahová plocha62 m2
Třída energetické náročnostiB - Velmi úsporná
Elektřina230V
TopeníÚstřední dálkové
DopravaVlak, Dálnice, Silnice, MHD, Autobus
Balkon
Garáž
Výtah
Bezbarierový přístup

Origo partneři v Praze 7

Stěhovací služby

Výkup a prodej starého nábytku

Popis

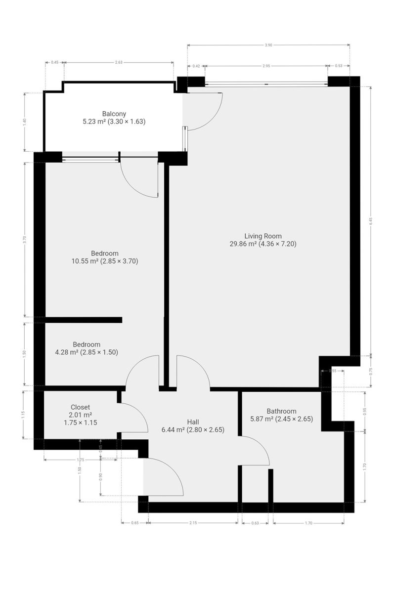
Máme pro vás skvělou nabídku moderního bytu k dlouhodobému podnájmu! Tento krásný byt o dispozici 2+kk je k dispozici v oblíbené lokalitě Holešovice. Byt o celkové výměře 62 m2 se nachází ve 3. podlaží právě dokončeného moderního projektu Pergamenka. K bytu patří prostorný balkon s příjemným výhledem do vnitrobloku rezidence. Samozřejmostí je i vlastní garážové stání.

Byt je nabízen nevybavený, což vám dá možnost vytvořit si interiér podle vlastního vkusu. Kuchyně disponuje vestavnou lednicí, myčkou, troubou, varnou deskou, mikrovlnnou troubou a digestoří. Obývací část i ložnice jsou nevybavené, ale mají vstup na prostorný balkon, který vám nabízí krásný výhled. Ložnice je vybavena prostornou vestavnou šatní skříní pro uskladnění vašich věcí. V koupelně najdete vanu a toaletu. Dále byt nabízí i prostornou komoru, která vám poskytne dostatek místa pro uložení dalších věcí.

Okolí domu je plné služeb pro váš pohodlný život. Restaurace, supermarket Albert, základní a mateřské školy a lékárna jsou jen některé z mnoha možností v okolí. Zastávka metra Nádraží Holešovice je vzdálena pouhých pět minut chůze, což zajišťuje výborné spojení s celým městem.

Majitel preferuje zájemce bez domácích mazlíčků.
Byt je volný k nastěhování od 1.11.2025.


Energetická kategorie B.

Byt pronajímá Ideální nájemce - služba, se kterou budete bydlet bezstarostně a za férových podmínek. Když se něco přihodí, k dispozici jsou správci, kteří s vámi vše vyřeší. Pomůžeme s veškerou administrativou, s nastavením plateb a zajistíme vám speciální pojištění. Pojďte bydlet s námi!

Makléř

Máte zájem o tento byt?

Tímto, v souladu s nařízením Evropského parlamentu a Rady (EU) 2016/679, v platném znění, prohlašuji, že mi je alespoň 16 let a uděluji tak svůj souhlas se zpracováním zadaných údajů (jméno, telefon, e-mail, ip adresa) společnosti B3 Technology, s.r.o., IČ: 07330600, se sídlem Novostavby 126/23, 435 11 Lom (správce dat), za účelem předání dotazu z tohoto formuláře Vámi vybranému inzerentovi a zpětného kontaktování mé osoby. Osobní údaje bude správce zpracovávat manuálně i automaticky přímo prostřednictvím svých zaměstnanců. Informace předané tímto formulářem budou uloženy v databázi správce maximálně po dobu 10 let. Odvolání souhlasu s uložením a zpracováním poskytnutých dat lze e-mailem na info@origo-reality.cz. V případě podezření na neoprávněné použití Vámi poskytnutých údajů máte právo předat podnět k šetření Úřadu pro ochranu osobních údajů. Více informací
Chystáte se prodat nemovitost?
Pomůžeme Vám!

Přihlášení k odběru

Nenechte si ujít nejnovější nabídky pronájmu bytů 2+kk v Praze 7.