Prodej rodinného domu, Studénka, Zahradní, 262 m2 (ID: 1812452)

Zahradní, Studénka

6 300 000 Kč
/za nemovitost
včetně DPH, včetně poplatků, včetně provize, včetně právního servisu
Hypotéka od 28 157 Kč /měs. Chci hypotéku

Parametry domu

AdresaZahradní, Studénka
ID00075
StavbaCihlová
Stav objektuVelmi dobrý
VybavenoNe
Druh objektuSamostatný
Lokalita objektuKlidná část obce
Užitná plocha262 m2
Zastavěná plocha185 m2
Plocha pozemku795 m2
Plocha zahrady610 m2
Třída energetické náročnostiD - Méně úsporná
Ukazatel energetické náročnosti132 kWh/m2 za rok
Elektřina230V, 400V
PlynPlynovod
OdpadVeřejná kanalizace
KomunikaceAsfaltová
TelekomunikaceTelefon, Internet
DopravaVlak, Dálnice, Silnice, Autobus
VodaVodovod
Topné tělesoRadiátory
Zdroj topeníPlynový kotel, Kotel na tuhá paliva
Zdroj teplé vodyPlynový kotel
Garáž
Sklep
Výtah
Parkování

Origo partneři v Studénce

Popis

Vážení klienti,

představujeme vám rodinný dům ve městě Studénka, konkrétně v jeho východní části, která je charakteristická zástavbou rodinných domů. Dům se nachází v těsné blízkosti CHKO Poodří a je situován v klidné ulici, mimo hlavní komunikace. Velkým benefitem je zahrada se vzrostlou zelení, která poskytuje dostatek soukromí.

Studénka nabízí veškerou občanskou vybavenost – mateřské a základní školy, sportoviště, plavecký bazén, supermarkety a další služby.

Předmětem prodeje je zděný dům se dvěma nadzemními podlažími a jedním podzemním podlažím. Dům lze rozdělit na dvě samostatné bytové jednotky 3+kk se společným hlavním vstupem do sdíleného schodiště. Dům se nachází na pozemku o výměře 795 m², samotná zahrada má výměru 610 m². Na zahradě se nachází pergola s krbem a posezením, součástí je také zděný zahradní domek.

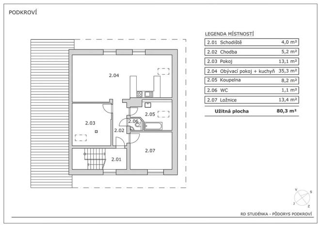
V prvním podlaží se nachází vstupní prostor se schodištěm, prostorná hala, dvě komory, šatna, koupelna, WC, dva pokoje a kuchyň s obývacím pokojem, ze kterého je přístup na terasu. Toto podlaží lze využívat jako samostatnou bytovou jednotku 3+kk o užitné ploše 119 m².

Ve druhém podlaží se nachází obývací pokoj s kuchyní, dva pokoje, koupelna a WC. I toto patro může sloužit jako samostatná bytová jednotka 3+kk o užitné ploše 76 m².

Dům je částečně podsklepený – ze sklepa je přímý výstup na zahradu po schodišti. Užitná plocha podzemního podlaží je 45 m².

Přístup na zahradu je zajištěn průjezdem kolem domu, který zároveň může sloužit jako parkovací stání pro minimálně dvě vozidla. Do domu je vstup jak z uliční strany, tak ze zahrady.

Hlavním zdrojem vytápění je plynový kotel. Ohřev užitkové vody zajišťuje plynový kotel. V domě jsou instalovány deskové radiátory. Energetický štítek (PENB) bude dodán.

Dům je napojen na vodovodní řad, plyn, elektřinu i kanalizaci.

V blízkosti domu se nachází autobusová zastávka se snadným spojením do okolních měst, a především vlakové nádraží na hlavním železničním tahu směrem na Ostravu.

Tento dům je ideální pro klienty, kteří hledají klidné bydlení v lokalitě s minimálním dopravním provozem a prostornou zahradou se vzrostlou zelení.

Máte zájem o prohlídku? Neváhejte nás kontaktovat!

Makléř

Máte zájem o tento dům?

Tímto, v souladu s nařízením Evropského parlamentu a Rady (EU) 2016/679, v platném znění, prohlašuji, že mi je alespoň 16 let a uděluji tak svůj souhlas se zpracováním zadaných údajů (jméno, telefon, e-mail, ip adresa) společnosti B3 Technology, s.r.o., IČ: 07330600, se sídlem Novostavby 126/23, 435 11 Lom (správce dat), za účelem předání dotazu z tohoto formuláře Vámi vybranému inzerentovi a zpětného kontaktování mé osoby. Osobní údaje bude správce zpracovávat manuálně i automaticky přímo prostřednictvím svých zaměstnanců. Informace předané tímto formulářem budou uloženy v databázi správce maximálně po dobu 10 let. Odvolání souhlasu s uložením a zpracováním poskytnutých dat lze e-mailem na info@origo-reality.cz. V případě podezření na neoprávněné použití Vámi poskytnutých údajů máte právo předat podnět k šetření Úřadu pro ochranu osobních údajů. Více informací
Chystáte se prodat nemovitost?
Pomůžeme Vám!

Přihlášení k odběru

Nenechte si ujít nejnovější nabídky prodeje rodinných domů v Studénce.