Prodej bytu 3+1, Lišany, Na vrškách, 115 m2

Na vrškách, Lišany

2 490 000 Kč
/za nemovitost
Hypotéka od 11 129 Kč /měs. Chci hypotéku

Parametry bytu

AdresaNa vrškách, Lišany
ID1012
StavbaSmíšená
Stav objektuPřed rekonstrukcí
Patro1.
VlastnictvíOsobní
Užitná plocha115 m2
Sklep
Parkování

Origo partneři v Lišanech

Popis

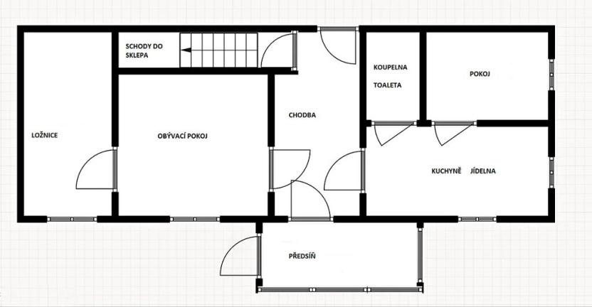
Nabízíme k prodeji bytovou jednotku o dispozici 3+1 v rodinném domě o podlahové ploše cca 115 m2 v obci Lišany 5 km od okresního města Rakovník. K budově sice NEnáleží vlastní zahrada, ale pro potřeby vlastního bydlení jako alternativa na místo bytu v osobním vlastnictví bez přímých sousedů poslouží velmi dobře. S ohledem na nízkou pořizovací cenu je tato nemovitost i vhodným investičním nástrojem s velmi dobrým výnosový procentem z nájmu.

Na cca 115 m2 naleznete 3 pokoje, kuchyň, koupelnu s toaletou, chodbu s předsíní. Obytný prostor je schodištěm propojen se sklepem a půdou, kde lze vytvořit další plnohodnotné obytné patro a stejné podlahové ploše jako přízemí domu. Parkování je možné přímo na pozemku u domu
Částečně podsklepená budova ze smíšeného zdiva je určena ke kompletní rekonstrukci.

Vodorovné konstrukce jsou dřevěné. Okna plastová vyjma zádvěří. Dům je napojen na elektřinu, obecní vodovod, kanalizaci a plynovod. Vytápění je řešeno ústředním plynovým kotlem, případně lze upravit na elektrokotel, krbová kamna či kotel na tuhá paliva.

K nemovitosti není k dispozici projektová dokumentace skutečného stavu. Energetická náročnost budovy: třída G (mimořádně nehospodárná).

Lišany jsou klidná obec ve Středočeském kraji s výbornou dostupností do Rakovníka i okolních měst. Nabízí kompletní občanskou vybavenost – obecní úřad, pošta, škola, školka, obchod, restaurace, autobusová zastávka. Velmi dobrá dostupnost vlakové stanice a nájezd na dálnici D6 směr Praha – Karlovy Vary.

Makléř

Máte zájem o tento byt?

Tímto, v souladu s nařízením Evropského parlamentu a Rady (EU) 2016/679, v platném znění, prohlašuji, že mi je alespoň 16 let a uděluji tak svůj souhlas se zpracováním zadaných údajů (jméno, telefon, e-mail, ip adresa) společnosti B3 Technology, s.r.o., IČ: 07330600, se sídlem Novostavby 126/23, 435 11 Lom (správce dat), za účelem předání dotazu z tohoto formuláře Vámi vybranému inzerentovi a zpětného kontaktování mé osoby. Osobní údaje bude správce zpracovávat manuálně i automaticky přímo prostřednictvím svých zaměstnanců. Informace předané tímto formulářem budou uloženy v databázi správce maximálně po dobu 10 let. Odvolání souhlasu s uložením a zpracováním poskytnutých dat lze e-mailem na info@origo-reality.cz. V případě podezření na neoprávněné použití Vámi poskytnutých údajů máte právo předat podnět k šetření Úřadu pro ochranu osobních údajů. Více informací
Chystáte se prodat nemovitost?
Pomůžeme Vám!

Přihlášení k odběru

Nenechte si ujít nejnovější nabídky prodeje bytů 3+1 v Lišanech (okr. Rakovník).

Podobné nabídky