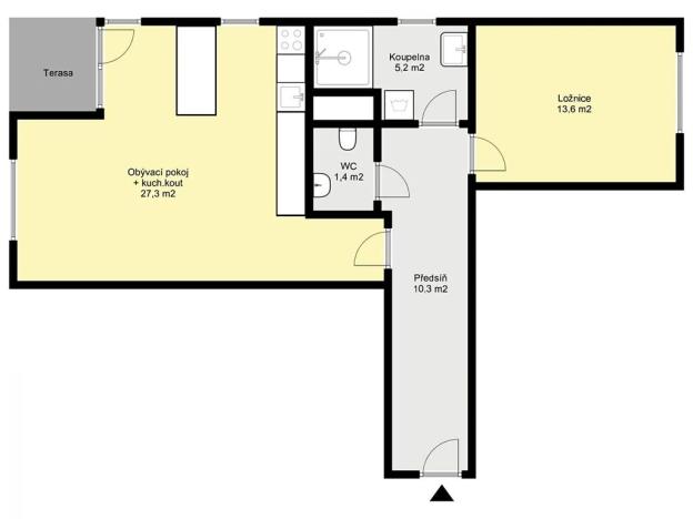
Prodej bytu 2+kk, Kolín, Zásmucká, 63 m2
Zásmucká, Kolín III
/za nemovitost
Cena včetně právního servisu a provize.
Parametry bytu
| Adresa | Zásmucká, Kolín III | 
|---|---|
| ID | 911 | 
| Stavba | Cihlová | 
| Stav objektu | Novostavba | 
| Patro | 1. z 4 | 
| Vybaveno | Částečně | 
| Vlastnictví | Osobní | 
| Užitná plocha | 63 m2 | 
| Podlahová plocha | 63 m2 | 
| Plocha zahrady | 160 m2 | 
| Třída energetické náročnosti | C - Úsporná | 
| Elektřina | 230V | 
| Odpad | Veřejná kanalizace | 
| Topení | Ústřední dálkové | 
| Komunikace | Dlážděná | 
| Doprava | Vlak, Dálnice, Silnice, MHD, Autobus | 
| Voda | Vodovod | 
| Topné těleso | Radiátory | 
| Garáž | |
| Sklep | |
| Terasa | |
| Bezbarierový přístup | 
Popis
Dobrý den.
Nabízím Vám krásný byt o dispozici 2+kk o celkové výměře 63 m2 s předzahrádkou o výměře 169 m2 a garážovým stáním, na adrese Zásmucká 894.
Jedná se o úspěšný  projekt Za Jízdárnou, kde byl kladen důraz na vysoký standart výstavby, tak i na použité materiály.  
Byt je díky velkým oknům s trojskly příjemně prosvětlený a předokenní žaluzie zajišťují soukromí. 
Součástí prodeje je kuchyňská linka s vestavěnými spotřebiči a vestavné skříně v ložnici.
K bytu dále náleží sklepní kóje a garážové stání v suterénu domu.
Nemovitost je bez právních vad a financování je možné pomocí hypotečního úvěru, který Vám rádi vyřídíme.
Přihlášení k odběru
Nenechte si ujít nejnovější nabídky prodeje bytů 2+kk v Kolíně.
 
                                                                                     
                                                                                     
                                                                                     
                                                                                     
                                                                                     
                                                                                     
                                                                                     
                                                                                     
                                                                                     
                                                                                     
                                                                                     
                                                                                     
                                                                                     
                                                                                     
                                                                                     
                                                                                     
                                                                                     
                                                                                     
                                                                                     
                                                                                     
                         
         
         
         
         
         
         
        