Soccer reality

Prodej rodinného domu, Praha, 520 m2 (ID: 1810162)

Praha 9

33 000 000 Kč
Hypotéka od 147 490 Kč /měs. Chci hypotéku

Parametry domu

AdresaPraha 9
ID2363
StavbaCihlová
Stav objektuDobrý
VybavenoČástečně
Druh objektuSamostatný
Lokalita objektuCentrum obce
Užitná plocha520 m2
Zastavěná plocha220 m2
Plocha pozemku772 m2
Třída energetické náročnostiB - Velmi úsporná

Origo partneři v Praze 9

Stěhovací služby

Výkup a prodej starého nábytku

Popis

Dvougenerační rodinný dům se samostatnou kancelářskou budovou.
Předmětem prodeje jsou dva samostatné domy s celkovou užitnou plochou 520 m². Výměra pozemku je 772 m².
Více možností k využití, jako vícegenerační rodinný dům, ubytovací zařízení/penzión, tak i sídlo firmy nebo kanceláře.
Vynikající a pohodlné místo na Praze 9, v Horních Počernicích. Veškeré občanská vybavenost.
Dům je napojen na městský vodovod, kanalizaci a plynovod. Má dva tepelné zdroje, fotovoltaický ohřev vody a vlastní studnu. Díky tomu je velmi úsporný na energii.
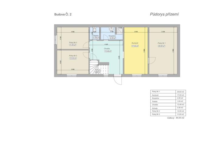
Budova 1 je dvoupodlažní se sklepem. Ve dvou patrech je celkem 9 místností, každé podlaží disponuje samostatnou kompletně zařízenou kuchyní, sprchou a samostatným WC.
Kromě hlavního vchodu je zde přístavba, kde se nachází samostatný, plně zařízený apartmán pro dvě osoby, typu studio s vlastním vchodem a bezpečnostními dveřmi.
Budova 2 je také dvoupodlažní a disponuje celkem 7 místnostmi a je ideální pro využití, jako kancelář. V přízemí se nachází kompletně zařízená kuchyň, sprcha/koupelna se samostatným WC v každém patře.
Dispozice pozemku a rozloha budov umožňuje rozdělení na dvě samostatné parcely, kde by každá měla svůj vlastní vjezd a parkování (viz situační plán).
Pokoje jsou velké a světlé. Společné prostory a sociální zařízení jsou ve velice dobrém, udržovaném stavu. Stávající nájemce jsou zde dlouhodobě, po celou dobu je zajištěn pravidelní úklid a pořádek.

O lokalitě:
Horní Počernice jsou samostatnou městskou částí s plnou občanskou vybaveností a výbornou infrastrukturou. Městská část Praha 20 leží na východním okraji Prahy, v městském obvodu Praha 9.
V blízkosti nemovitosti nalezneme restaurace, kavárny, lékárny, nákupní centra i drobné obchody. Také se na vás těší nepřeberné možnosti sportovního vyžití, výborné spojení s centrem města a množství míst jako stvořených pro poklidné trávení volného času v přírodě.
V blízkosti naleznete zastávku autobusu, ten Vás zaveze k nedalekému metru Černý Most, kterým se pohodlně a rychle dostanete jak do centra, tak do ostatních okresních měst.
Rodiny také ocení výběr několika školek, základních škol. Prostě vše a mnoho dalšího stále neodhaleného přináší bydlení na okraji Prahy, ale přesto tak blízko centra naší metropole.

Základní škola a Mateřská škola 300 m
Autobusová zastávka 1 minuty chůze
Nákupní centrum, pošta, banky 300-700 m
Centrum Prahy 15 minut jízdy autem
SC Xaverov 3 min. pěšky
Sportovní hala / tělocvična 7 min. chůze
Chvalský zámek a zámecký park 10 min. chůze

Cena k jednání.
Majitel počítá před předáním s drobnými opravami na žádost kupujícího. Objekt bude předán v perfektním stavu, "na klíč" pro další užívání.
Zaujala Vás tato nabídka? Máte zájem o prohlídku nebo případně chcete doplnit nějaké údaje o nemovitosti?
V rámci naších služeb jsou kompletní služby špičkového finančního poradce, který Vám zajistí aktuálně nejvýhodnější způsob financování.
Neváhejte kontaktovat makléřku.

Makléř

Máte zájem o tento dům?

Tímto, v souladu s nařízením Evropského parlamentu a Rady (EU) 2016/679, v platném znění, prohlašuji, že mi je alespoň 16 let a uděluji tak svůj souhlas se zpracováním zadaných údajů (jméno, telefon, e-mail, ip adresa) společnosti B3 Technology, s.r.o., IČ: 07330600, se sídlem Novostavby 126/23, 435 11 Lom (správce dat), za účelem předání dotazu z tohoto formuláře Vámi vybranému inzerentovi a zpětného kontaktování mé osoby. Osobní údaje bude správce zpracovávat manuálně i automaticky přímo prostřednictvím svých zaměstnanců. Informace předané tímto formulářem budou uloženy v databázi správce maximálně po dobu 10 let. Odvolání souhlasu s uložením a zpracováním poskytnutých dat lze e-mailem na info@origo-reality.cz. V případě podezření na neoprávněné použití Vámi poskytnutých údajů máte právo předat podnět k šetření Úřadu pro ochranu osobních údajů. Více informací
Chystáte se prodat nemovitost?
Pomůžeme Vám!

Přihlášení k odběru

Nenechte si ujít nejnovější nabídky prodeje rodinných domů v Praze 9.