Pronájem kanceláře, Hradec Králové, Gočárova třída, 21 m2

Gočárova třída, Hradec Králové

4 200 Kč
/za měsíc
Získejte výhodnou HYPOTÉKU Chci hypotéku

Parametry nemovitosti

AdresaGočárova třída, Hradec Králové
IDKA1604
StavbaCihlová
Stav objektuDobrý
Patro2.
VybavenoNe
Lokalita objektuCentrum obce
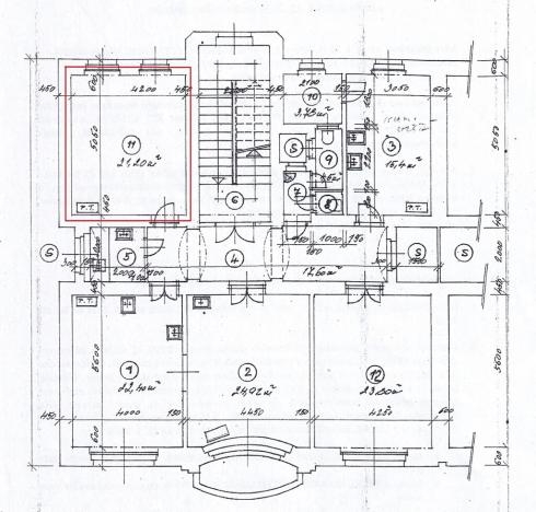
Užitná plocha21 m2
Elektřina230V
PlynPlynovod
OdpadVeřejná kanalizace
KomunikaceAsfaltová
DopravaVlak, Dálnice, Silnice, MHD, Autobus
VodaVodovod
Topné tělesoWAW
Zdroj topeníWAW
Zdroj teplé vodyPrůtokový ohřívač
Výtah
Bezbarierový přístup

Origo partneři v Hradci Králové

Popis

Pronájem nebytových prostorů v centru Hradce Králové. Nabízíme k pronájmu kancelář o ploše 21 m2 v 2. nadzemním podlaží domu v centru města na Gočárově třídě. Okna jsou orientována do klidného dvora za domem, na podlaze jsou renovované parkety, na vytápění jsou plynová kamna. K dispozici je na chodbě kuchyňka a pánské a dámské WC. Prostory jsou určeny k provozování kancelářské činnosti, nejsou určeny pro účely péče o tělo.

Aktuálně je v případě zájmu na patře volná za stejných podmínek ještě jedna kancelář o velikosti 24 m2.

Jedná se o dobrou, dobře dostupnou polohu, zastávky MHD jsou nedaleko. V případě zájmu nás neváhejte kontaktovat.

Nájemné je 4 200,-Kč/měs., zálohy na služby 1 134,-Kč, plyn se přepisuje na nájemce. Peněžitá jistota a provize pro RK za zprostředkování pronájmu jsou ve výši jednoho čistého měsíčního nájmu.

Makléř

Máte zájem o tuto nemovistost?

Tímto, v souladu s nařízením Evropského parlamentu a Rady (EU) 2016/679, v platném znění, prohlašuji, že mi je alespoň 16 let a uděluji tak svůj souhlas se zpracováním zadaných údajů (jméno, telefon, e-mail, ip adresa) společnosti B3 Technology, s.r.o., IČ: 07330600, se sídlem Novostavby 126/23, 435 11 Lom (správce dat), za účelem předání dotazu z tohoto formuláře Vámi vybranému inzerentovi a zpětného kontaktování mé osoby. Osobní údaje bude správce zpracovávat manuálně i automaticky přímo prostřednictvím svých zaměstnanců. Informace předané tímto formulářem budou uloženy v databázi správce maximálně po dobu 10 let. Odvolání souhlasu s uložením a zpracováním poskytnutých dat lze e-mailem na info@origo-reality.cz. V případě podezření na neoprávněné použití Vámi poskytnutých údajů máte právo předat podnět k šetření Úřadu pro ochranu osobních údajů. Více informací
Chystáte se prodat nemovitost?
Pomůžeme Vám!

Přihlášení k odběru

Nenechte si ujít nejnovější nabídky pronájmu kanceláří v Hradci Králové.