Prodej rodinného domu, Týnec nad Sázavou - Brodce, 187 m2

Brodce

14 200 000 Kč
/za nemovitost
Hypotéka od 63 465 Kč /měs. Chci hypotéku

Parametry domu

AdresaBrodce
IDMN38
StavbaCihlová
Stav objektuNovostavba
VybavenoČástečně
Typ objektuPatrový
Druh objektuSamostatný
Užitná plocha187 m2
Zastavěná plocha117 m2
Podlahová plocha187 m2
Plocha pozemku773 m2
Plocha zahrady656 m2
Třída energetické náročnostiG - Mimořádně nehospodárná
Elektřina230V, 400V
PlynPlynovod
OdpadVeřejná kanalizace
TopeníÚstřední plynové
KomunikaceAsfaltová
TelekomunikaceInternet
DopravaVlak, Silnice, Autobus
VodaVodovod
Topné tělesoRadiátory
Zdroj topeníPlynový kondenzační kotel
Zdroj teplé vodyPlynový kondenzační kotel
Terasa
Bezbarierový přístup
Parkování
Bazén

Origo partneři v Týnci nad Sázavou

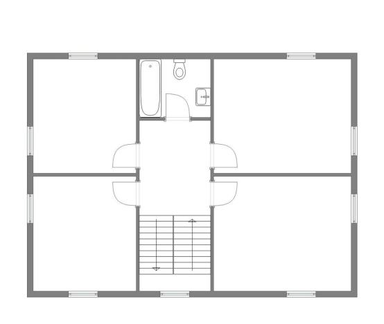
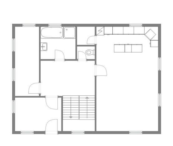
Popis

Exkluzivně nabízíme k prodeji novostavbu rodinného domu, která byla kolaudována na podzim roku 2021. Jedná se o nepodsklepený rodinný dům stojící na základové desce s jedním nadzemním podlažím a obytným podkrovím a půdou. Dům je zděný z tvárnic Ytong (zateplení 5cm a na severní straně 10 cm, strop nad podkrovím je izolován 20 cm), fasáda zakončena perlinkou s lepidlem - připraveno na finální vzhled fasády, dřevěný krov s betonovými taškami KM Beta. Okna dřevěná typu Euro s kalenými skly, střešní okna Velux, vstupní dveře bezpečnostní. Vnitřní provedení je patrné z aktuálních fotografií. Dispoziční řešení domu je patrné z přiložených půdorysů. Z inženýrských sítí je k dispozici elektřina 220/380 V, plyn, vodovodní řád, kanalizace, internet možné zřídit bezdrátově, anténní rozvod do všech místností. Topení zajištěno kombinovaným plynovým turbo kotlem zn. Baxi, který zároveň zajišťuje dodávku TUV ze zásobníku. Příjezdová cesta a terasa jsou vydlážděny, na pozemku se nachází příprava na kryté posezení s možností krbu, ohniště, bazén 3x5 a hloubkou 120 cm a dále zahradní domek na nářadí a skleník. Základní občanská vybavenost v místě, dopravní obslužnost zajištěna autobusovými (nejbližší zastávka 1 minuta chůze od domu) či vlakovými spoji (zastávka ve vzdálenosti 590 m, tj. 10 minut chůze). Se zájmem o prohlídku či další informace nás neváhejte kontaktovat.

Makléř

Máte zájem o tento dům?

Tímto, v souladu s nařízením Evropského parlamentu a Rady (EU) 2016/679, v platném znění, prohlašuji, že mi je alespoň 16 let a uděluji tak svůj souhlas se zpracováním zadaných údajů (jméno, telefon, e-mail, ip adresa) společnosti B3 Technology, s.r.o., IČ: 07330600, se sídlem Novostavby 126/23, 435 11 Lom (správce dat), za účelem předání dotazu z tohoto formuláře Vámi vybranému inzerentovi a zpětného kontaktování mé osoby. Osobní údaje bude správce zpracovávat manuálně i automaticky přímo prostřednictvím svých zaměstnanců. Informace předané tímto formulářem budou uloženy v databázi správce maximálně po dobu 10 let. Odvolání souhlasu s uložením a zpracováním poskytnutých dat lze e-mailem na info@origo-reality.cz. V případě podezření na neoprávněné použití Vámi poskytnutých údajů máte právo předat podnět k šetření Úřadu pro ochranu osobních údajů. Více informací
Chystáte se prodat nemovitost?
Pomůžeme Vám!

Přihlášení k odběru

Nenechte si ujít nejnovější nabídky prodeje rodinných domů v Týnci nad Sázavou.