Prodej bytu 1+kk, Liberec, 40 m2 (ID: 1807074)

Liberec (nečleněné město)

4 100 000 Kč
/za nemovitost
cena je uvedena vč. DPH a před uplatněním slevy
Hypotéka od 18 325 Kč /měs. Chci hypotéku

Parametry bytu

AdresaLiberec (nečleněné město)
IDE103
StavbaCihlová
Stav objektuVe výstavbě
Patro1. z 7
VybavenoČástečně
Lokalita objektuCentrum obce
VlastnictvíOsobní
Užitná plocha40 m2
Zastavěná plocha2248 m2
Podlahová plocha40 m2
Třída energetické náročnostiB - Velmi úsporná
Elektřina120V, 230V, 400V
OdpadVeřejná kanalizace
TopeníÚstřední dálkové
KomunikaceAsfaltová
TelekomunikaceKabelové rozvody
DopravaMHD
Výtah
Bezbarierový přístup

Origo partneři v Liberci

Rekonstrukce

Úklidové služby

Pojištění a finance

Popis

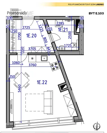
Nabízíme prodej bytu 1+kk o výměře 40,4 m2 v projektu Residence Promenáda.
Byt se bude nacházet v 1. nadzemním podlaží. Byt bude orientovaný na jižní stranu.
Celkem bude v budově E 7. nadzemních podlaží a 3. podzemní podlaží, kde budou garážová stání.
V přízemí a 1. patře budou komerční prostory.

Součástí kupní ceny jsou vinylové podlahy, keramické obklady a dlažby v koupelně a na wc. Prostorný sprchový kout, skříňka s umyvadlem a zrcadlem, topný žebřík, oddělená toaleta s umyvadélkem, Interiérové dveře s obložkami - bílé. Šatna o výměře 2,7 m2.
Součástí každého bytu bude videotelefon.

Nízké provozní náklady garantuje energetický štítek B.

Výstavba zahájena, předpokládaný termín dokončení 1Q 2029.

Byt je možné zakoupit do osobního nebo družstevního vlastnictví.

Celkem bude v tomto novém projektu 247 nových bytů o dispozicích 1+kk, 2+kk a 3+kk, dostatek garážových stání i sklepů.

Aktuálně prodáno přes 100 bytů. Přehled volných bytů naleznete na našich webových stránkách.

V případě bližších informací jsme k dispozici.

Parcelní číslo 4064/3

Makléř

Máte zájem o tento byt?

Tímto, v souladu s nařízením Evropského parlamentu a Rady (EU) 2016/679, v platném znění, prohlašuji, že mi je alespoň 16 let a uděluji tak svůj souhlas se zpracováním zadaných údajů (jméno, telefon, e-mail, ip adresa) společnosti B3 Technology, s.r.o., IČ: 07330600, se sídlem Novostavby 126/23, 435 11 Lom (správce dat), za účelem předání dotazu z tohoto formuláře Vámi vybranému inzerentovi a zpětného kontaktování mé osoby. Osobní údaje bude správce zpracovávat manuálně i automaticky přímo prostřednictvím svých zaměstnanců. Informace předané tímto formulářem budou uloženy v databázi správce maximálně po dobu 10 let. Odvolání souhlasu s uložením a zpracováním poskytnutých dat lze e-mailem na info@origo-reality.cz. V případě podezření na neoprávněné použití Vámi poskytnutých údajů máte právo předat podnět k šetření Úřadu pro ochranu osobních údajů. Více informací
Chystáte se prodat nemovitost?
Pomůžeme Vám!
Theleadway banner

Přihlášení k odběru

Nenechte si ujít nejnovější nabídky prodeje bytů 1+kk v Liberci.