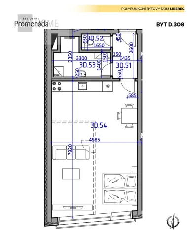
Prodej bytu 1+kk, Liberec, 52 m2 (ID: 1807058)

Liberec

5 350 000 Kč
/za nemovitost
cena je uvedena vč. DPH a před uplatněním slevy
Hypotéka od 23 911 Kč /měs. Chci hypotéku

Parametry bytu

AdresaLiberec
IDD308
StavbaCihlová
Stav objektuVe výstavbě
Patro3. z 7
VybavenoČástečně
Lokalita objektuCentrum obce
VlastnictvíOsobní
Užitná plocha52 m2
Zastavěná plocha2248 m2
Podlahová plocha52 m2
Třída energetické náročnostiB - Velmi úsporná
Elektřina120V, 230V, 400V
OdpadVeřejná kanalizace
TopeníÚstřední dálkové
KomunikaceAsfaltová
TelekomunikaceKabelové rozvody
DopravaMHD
Výtah
Bezbarierový přístup

Origo partneři v Liberci

Rekonstrukce

Úklidové služby

Pojištění a finance

Popis

Nabízíme prodej bytu 1+kk o výměře 52,2 m2 v projektu Residence Promenáda.
Byt se bude nacházet ve 3. nadzemním podlaží. Byt bude orientovaný na jižní stranu.
Celkem bude v budově D 7. nadzemních podlaží a 3. podzemní podlaží, kde budou garážová stání.
V přízemí a 1.nadzemním patře budou komerční prostory.

Byt je možné upravit na 2+kk.

Součástí kupní ceny jsou vinylové podlahy, keramické obklady a dlažby v koupelně a na wc. Prostorný sprchový kout, skříňka s umyvadlem a zrcadlem, topný žebřík, toaleta, Interiérové dveře s obložkami - bílé.
Součástí každého bytu bude videotelefon.

Nízké provozní náklady garantuje energetický štítek B.

Výstavba zahájena, předpokládaný termín dokončení 1Q 2029.

Byt je možné zakoupit do osobního nebo družstevního vlastnictví.

Celkem bude v tomto novém projektu 247 nových bytů o dispozicích 1+kk, 2+kk a 3+kk, dostatek garážových stání i sklepů.

Aktuálně prodáno přes 100 bytů. Přehled volných bytů naleznete na našich webových stránkách.

V případě bližších informací jsme k dispozici.

Parcelní číslo 4064/3

Makléř

Máte zájem o tento byt?

Tímto, v souladu s nařízením Evropského parlamentu a Rady (EU) 2016/679, v platném znění, prohlašuji, že mi je alespoň 16 let a uděluji tak svůj souhlas se zpracováním zadaných údajů (jméno, telefon, e-mail, ip adresa) společnosti B3 Technology, s.r.o., IČ: 07330600, se sídlem Novostavby 126/23, 435 11 Lom (správce dat), za účelem předání dotazu z tohoto formuláře Vámi vybranému inzerentovi a zpětného kontaktování mé osoby. Osobní údaje bude správce zpracovávat manuálně i automaticky přímo prostřednictvím svých zaměstnanců. Informace předané tímto formulářem budou uloženy v databázi správce maximálně po dobu 10 let. Odvolání souhlasu s uložením a zpracováním poskytnutých dat lze e-mailem na info@origo-reality.cz. V případě podezření na neoprávněné použití Vámi poskytnutých údajů máte právo předat podnět k šetření Úřadu pro ochranu osobních údajů. Více informací
Chystáte se prodat nemovitost?
Pomůžeme Vám!
Theleadway banner

Přihlášení k odběru

Nenechte si ujít nejnovější nabídky prodeje bytů 1+kk v Liberci.