Prodej bytu 1+kk, Bublava, 36 m2

Bublava

3 400 000 Kč
/za nemovitost
Hypotéka od 15 196 Kč /měs. Chci hypotéku

Parametry bytu

AdresaBublava
ID4394
StavbaCihlová
Stav objektuNovostavba
Patro1. z 3
VybavenoAno
Lokalita objektuCentrum obce
VlastnictvíOsobní
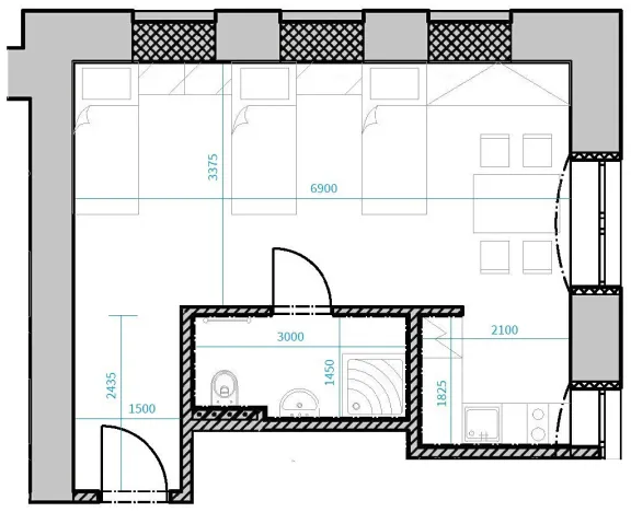
Užitná plocha36 m2
Podlahová plocha36 m2
Třída energetické náročnostiC - Úsporná
Elektřina230V
OdpadVeřejná kanalizace
TopeníJiné
TelekomunikaceInternet
Topné tělesoPodlahové vytápění
Zdroj teplé vodyBojler - elektro

Origo partneři v Bublavě

Pojištění a finance

Popis

Nabízíme k prodeji apartmán 1+KK v novém projektu „Resort Narcis“, který vznikl rekonstrukcí bývalé školy na Bublavě, v srdci Krušných hor. Tento projekt nabízí útulné horské bydlení, které spojuje komfort moderního apartmánu s atmosférou malebného horského prostředí, ideální pro rekreaci, trvalé bydlení nebo jako investici. Budova prošla kompletní přestavbou od základů po střechu a vznikly zde plně vybavené apartmány, připravené k okamžitému užívání.

Tento apartmán o velikosti 36 m2 nabízí praktické a pohodlné uspořádání prostoru. Obytná část je vybavena manželskou postelí, šatní skříní, jídelním stolem se židlemi a dvěma nočními stolky, takže poskytuje vše potřebné pro pohodlný pobyt. Součástí bytu je jednoduchá kuchyňská linka s indukční dvouplotýnkou. Koupelna s toaletou, umyvadlem a sprchovým koutem se zasklenou zástěnou. Teplou vodu zajišťuje vlastní elektrický bojler. Komfortní elektrické podlahové topení přispívá k příjemnému a útulnému prostředí i během chladnějších měsíců.

Každý apartmán nabízí praktické a pohodlné řešení prostoru a zachovává charakter původní budovy. Lokalita je klidná a malebná, přímo v horách, s výbornou dostupností z Česka i Německa. Apartmány se nacházejí jen pár minut od sjezdovek, běžeckých tratí i cyklostezek, což poskytuje ideální podmínky pro horskou turistiku, zimní i letní sporty a relaxaci v čisté přírodě.

V současnosti nabízíme prvních 18 jednotek dokončených v rámci projektu. Koupě každého apartmánu zahrnuje povinné dokoupení parkovacího místa a sklepní kóje, aby byla zajištěna plná funkčnost a komfort objektu. Pro více informací, kompletní nabídku a detaily jednotlivých apartmánů kontaktujte naší kancelář.

Makléř

Máte zájem o tento byt?

Tímto, v souladu s nařízením Evropského parlamentu a Rady (EU) 2016/679, v platném znění, prohlašuji, že mi je alespoň 16 let a uděluji tak svůj souhlas se zpracováním zadaných údajů (jméno, telefon, e-mail, ip adresa) společnosti B3 Technology, s.r.o., IČ: 07330600, se sídlem Novostavby 126/23, 435 11 Lom (správce dat), za účelem předání dotazu z tohoto formuláře Vámi vybranému inzerentovi a zpětného kontaktování mé osoby. Osobní údaje bude správce zpracovávat manuálně i automaticky přímo prostřednictvím svých zaměstnanců. Informace předané tímto formulářem budou uloženy v databázi správce maximálně po dobu 10 let. Odvolání souhlasu s uložením a zpracováním poskytnutých dat lze e-mailem na info@origo-reality.cz. V případě podezření na neoprávněné použití Vámi poskytnutých údajů máte právo předat podnět k šetření Úřadu pro ochranu osobních údajů. Více informací
Chystáte se prodat nemovitost?
Pomůžeme Vám!
Theleadway banner

Přihlášení k odběru

Nenechte si ujít nejnovější nabídky prodeje bytů 1+kk v Bublavě.