Prodej bytu 4+1, Pardubice - Zelené Předměstí, Sokolovská, 113 m2

Sokolovská, Pardubice, Zelené Předměstí

9 200 000 Kč
/za nemovitost
Hypotéka od 41 118 Kč /měs. Chci hypotéku

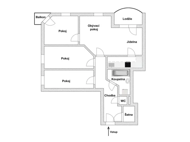
Parametry bytu

AdresaSokolovská, Pardubice, Zelené Předměstí
ID2025-08-21
StavbaCihlová
Stav objektuVelmi dobrý
Patro3.
Typ objektuPatrový
Lokalita objektuKlidná část obce
VlastnictvíOsobní
Užitná plocha113 m2
Podlahová plocha113 m2
Třída energetické náročnostiC - Úsporná
Balkon
Sklep
Lodžie
Výtah
Bezbarierový přístup
Parkování

Origo partneři v Pardubicích

Pojištění a finance

Popis

Hledáte prostorné a pohodlné bydlení pro sebe i svou rodinu? Máme pro vás byt, který vás nadchne!
V exkluzivním zastoupení majitelů nabízím výjimečnou nemovitost, nacházející se ve třetím patře domu s výtahem na adrese Sokolovská 2720 v Pardubicích. Kromě velkorysé podlahové plochy (celkem včetně příslušenství 133 m²) nabízí toto bydlení i větší balkon (3,5 m²), prostornou lodžii (7,8m²) s pěkným výhledem, kde si můžete vychutnat ranní kávu nebo večerní posezení. Nechybí ani desetimetrový sklep a možnost vlastního garážové stání v suterénu domu 2,5x5 m².
Byt je moderně dispozičně řešený a poskytuje dostatek místa pro pohodlný rodinný život. Najdete zde vzdušnou vstupní chodbu, velkou kuchyni, obývací pokoj s jídelnou, který se stane srdcem domova. Dále tři samostatné pokoje, koupelnu, samostatné WC, a praktickou šatnu.
I když se nejedná o novostavbu, byt je velmi dobře udržovaný, ve skvělém technickém stavu a připravený k okamžitému nastěhování.
Lokalita je ideální pro rodiny s dětmi. V okolí najdete školky, školy, hřiště, obchody, lékaře i kulturní a sportovní vyžití. Okrajová část sídliště nabízí dostatek zeleně a klid, a přitom zůstává skvěle dostupná. V blízkosti domu je rychlostní komunikace s napojením na dálnici D11, díky čemuž se pohodlně dostanete do Prahy, Hradce Králové i Chrudimi.
Tento byt je skvělou příležitostí pro ty, kteří hledají prostorné a komfortní bydlení v žádané části Pardubic s perfektní dostupností a výborným zázemím pro rodinný život.
Byt je vymalovaný, precizně uklizený a připravený k okamžitému nastěhování. Díky nezatíženému listu vlastnictví může být celý proces prodeje velmi rychlý a hladký. S financováním rád pomůže náš zkušený hypoteční specialista.

Makléř

Máte zájem o tento byt?

Tímto, v souladu s nařízením Evropského parlamentu a Rady (EU) 2016/679, v platném znění, prohlašuji, že mi je alespoň 16 let a uděluji tak svůj souhlas se zpracováním zadaných údajů (jméno, telefon, e-mail, ip adresa) společnosti B3 Technology, s.r.o., IČ: 07330600, se sídlem Novostavby 126/23, 435 11 Lom (správce dat), za účelem předání dotazu z tohoto formuláře Vámi vybranému inzerentovi a zpětného kontaktování mé osoby. Osobní údaje bude správce zpracovávat manuálně i automaticky přímo prostřednictvím svých zaměstnanců. Informace předané tímto formulářem budou uloženy v databázi správce maximálně po dobu 10 let. Odvolání souhlasu s uložením a zpracováním poskytnutých dat lze e-mailem na info@origo-reality.cz. V případě podezření na neoprávněné použití Vámi poskytnutých údajů máte právo předat podnět k šetření Úřadu pro ochranu osobních údajů. Více informací
Chystáte se prodat nemovitost?
Pomůžeme Vám!
Theleadway banner

Přihlášení k odběru

Nenechte si ujít nejnovější nabídky prodeje bytů 4+1 v Pardubicích.