Pronájem bytu 2+kk, Brno, Placzkova, 47 m2

Placzkova, Trnitá

18 900 Kč
/za měsíc
nájemné bez záloha za energie a služby + cena za parkovací místo
Získejte výhodnou HYPOTÉKU Chci hypotéku

Parametry bytu

AdresaPlaczkova, Trnitá
ID24397
StavbaSkeletová
Stav objektuDobrý
Patro4. z 7
VybavenoNe
Typ objektuPatrový
VlastnictvíOsobní
Užitná plocha47 m2
Podlahová plocha47 m2
Třída energetické náročnostiB - Velmi úsporná
Elektřina230V
OdpadVeřejná kanalizace
TopeníÚstřední dálkové
KomunikaceAsfaltová
TelekomunikaceInternet
DopravaSilnice, MHD
VodaVodovod
Balkon
Sklep
Výtah
Bezbarierový přístup
Parkování

Origo partneři v Brně

Popis

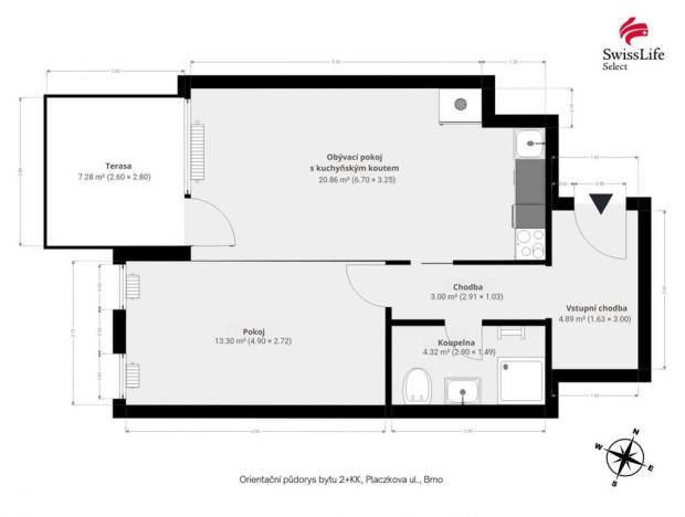
Hledáte bydlení v centru Brna? Připravil jsme pro vás nájem bytu o velikosti 2+KK o užitné ploše 47 m2 s terasou 7 m2 a vlastním parkovacím místě přímo v domě. Byt najdete ve 4. nadzemním podlaží nového bytového domu v centru Brna, hned vedle Galerie Vaňkovka.

Měsíční nájemné 18.900 Kč, měsíční nájemné za garážové parkovací stání 1.600 Kč, měsíční záloha za energie a služby 4.200 Kč, elektřina 1.500 Kč, zálohy pro parkovací stání 750 Kč. Jistota (kauce) ve výši 40.000 Kč + odměna realitní kanceláře.

Prohlídky budou možné od 15.09. 2025.

Bytový komplex byl kolaudovaný v roce 2022 a umožňuje kvalitní bydlení v centru města. Byt je složen ze vstupní chodby, obývacího pokoje s velkou terasou, kuchyňského koutu, samostatné ložnice a koupelny se sprchou a toaletou.

Kuchyně je vybavena moderní kuchyňskou linkou se všemi potřebnými spotřebiči. Najdete zde indukční varnou desku, horkovzdušnou troubu, myčku nádobí a kombinovanou chladničku. V obou pokojích i chodbě je položena plovoucí podlaha. Z větší části krytá terasa umožňuje užívat si třeba podvečerní kávu se zapadajícím sluncem.

Hezky provedená a účelně zařízená koupelna je vybavena zařizovací Villeroy and Boch, baterie Grohe.

Do domu se vstupuje s použitím bezpečnostního čipu. Zvýšenou bezpečnost nabízí také byt. Má instalované bezpečnostní dveře s více bodovým uzamykacím systémem.

Díky tomu, že se byt nachází v centru města máte k dispozici veškerou občanskou vybavenost. Součástí komplexu je příjemný odpočinkový vnitroblok, který je přístupný pouze uživatelům bytů.

Neváhejte zavolat, domluvíme se na všech detailech a prohlídce. Nejlépe udělá, když se přijdete přesvědčit na vlastní oči. Radim Macháček

Makléř

Máte zájem o tento byt?

Tímto, v souladu s nařízením Evropského parlamentu a Rady (EU) 2016/679, v platném znění, prohlašuji, že mi je alespoň 16 let a uděluji tak svůj souhlas se zpracováním zadaných údajů (jméno, telefon, e-mail, ip adresa) společnosti B3 Technology, s.r.o., IČ: 07330600, se sídlem Novostavby 126/23, 435 11 Lom (správce dat), za účelem předání dotazu z tohoto formuláře Vámi vybranému inzerentovi a zpětného kontaktování mé osoby. Osobní údaje bude správce zpracovávat manuálně i automaticky přímo prostřednictvím svých zaměstnanců. Informace předané tímto formulářem budou uloženy v databázi správce maximálně po dobu 10 let. Odvolání souhlasu s uložením a zpracováním poskytnutých dat lze e-mailem na info@origo-reality.cz. V případě podezření na neoprávněné použití Vámi poskytnutých údajů máte právo předat podnět k šetření Úřadu pro ochranu osobních údajů. Více informací
Chystáte se prodat nemovitost?
Pomůžeme Vám!

Přihlášení k odběru

Nenechte si ujít nejnovější nabídky pronájmu bytů 2+kk v Brně.