Pronájem bytu 3+kk, Praha - Holešovice, Na Maninách, 146 m2

Na Maninách, Praha 7, Holešovice

67 900 Kč
/za měsíc
Získejte výhodnou HYPOTÉKU Chci hypotéku

Parametry bytu

AdresaNa Maninách, Praha 7, Holešovice
IDANK0167-0001
StavbaCihlová
Stav objektuPo rekonstrukci
Patro2.
VybavenoAno
Typ objektuPřízemní
VlastnictvíOsobní
Užitná plocha146 m2
Podlahová plocha146 m2
Třída energetické náročnostiG - Mimořádně nehospodárná
TopeníÚstřední plynové
Garáž
Sklep
Výtah
Bezbarierový přístup
Parkování

Origo partneři v Praze 7

Stěhovací služby

Výkup a prodej starého nábytku

Popis

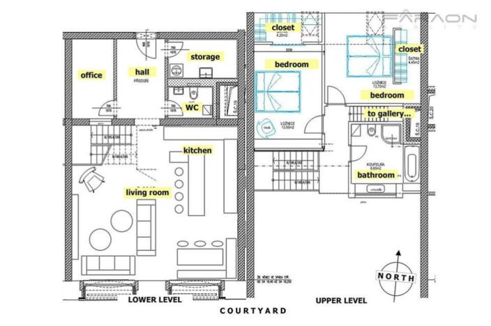
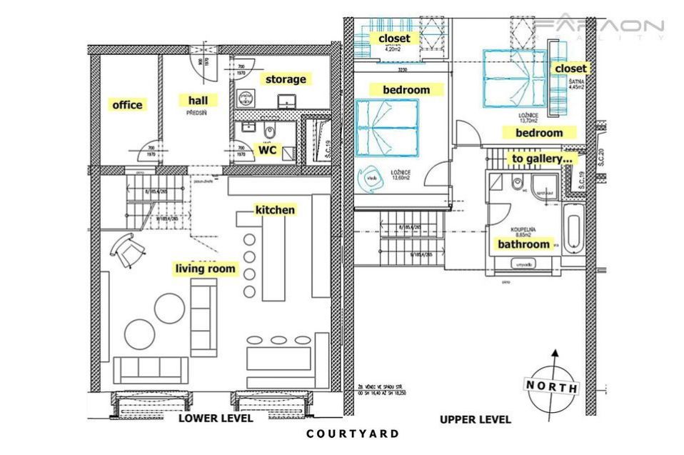
K pronájmu luxusní loftový, celkově zařízený a plně klimatizovaný byt 3+kk, 146 m2, v industriálním duchu kompletně zrekonstruované původní budovy Prvního pražského měšťanského pivovaru z roku 1895 se 40 apartmány, 5 m vysokými stropy a zachovanými původními industriálními prvky, s výtahem, sklepem, garáží v rezidenčním projektu A7 Holešovický pivovar, v klidném areálu kancelářského/obchodního parku lemovaného stromy přímo v srdci nově vyhlášené pražské umělecké čtvrti, Holešovice, Praha 7.

Dispozice třípatrového loftu tvoří:
Velký obývací pokoj s moderní kuchyňskou linkou, jídelnou a barem, pracovní místnost, vstupní chodba, úložný prostor, prádelna, toaleta pro hosty v prvním patře;
2 ložnice se šatnami (jedna s velkým panoramatickým oknem), koupelna s vanou a samostatným sprchovým koutem ve druhém patře;
sky-gallery ve třetím patře.

Vybavení zahrnuje pračku a samostatnou sušičku, indukční varnou desku, troubu, digestoř, myčku nádobí, lednicí s mrazákem, mikrovlnku. V bytě jsou přípojky na vysokorychlostní internet, satelitní a kabelovou televizi [O2, UPC].

Byt se nachází v křídle budovy s pouhými 6 apartmány, což zajišťuje klid a soukromí, dále má několik unikátních industriálních prvků - klenutý strop, ocelové nosníky, odhalené cihlové zdi z původního pivovaru, odhalené betonové stropy, skleněné cihly, průmyslový stropní ventilátor atd.

Projekt je doplněn zelenými plochami a poskytuje všem svým obyvatelům klidné bydlení v nadstandardním provedení nedaleko centra hlavního města, v dosahu s veškerou občanskou vybaveností, na křižovatce ulic Komunardů a U Průhonu, 3 minuty chůze od čtyř tramvajových zastávek: Maniny, U Průhonu, Dělnická, Ortenovo náměstí. Součástí komplexu je supermarket Albert a DM drogerie, dále restaurace a kavárna. Krátkodobé parkování pro hosty je k dispozici přímo před budovou, stejně jako dlouhodobé parkování v podzemních garážích.

Služby včetně energie a internetu činí 12.000 Kč měsíčně (údržba budovy, úklid, osvětlení, odvoz odpadků, elektřina v bytě, topení, voda) a jsou zúčtovány dle skutečných nákladů.
K dispozici je sklep (7 m2) za 2.000 Kč měsíčně (volitelně).
V případě potřeby je možné pronajímat garážové stání v suterénu budovy za 3.200 Kč měsíčně.

K nastěhování ihned.

Energetická náročnost budovy: G (nebyla sdělena vlastníkem nemovitosti) ID nemovitosti ANK0167-0001.

Makléř

Máte zájem o tento byt?

Tímto, v souladu s nařízením Evropského parlamentu a Rady (EU) 2016/679, v platném znění, prohlašuji, že mi je alespoň 16 let a uděluji tak svůj souhlas se zpracováním zadaných údajů (jméno, telefon, e-mail, ip adresa) společnosti B3 Technology, s.r.o., IČ: 07330600, se sídlem Novostavby 126/23, 435 11 Lom (správce dat), za účelem předání dotazu z tohoto formuláře Vámi vybranému inzerentovi a zpětného kontaktování mé osoby. Osobní údaje bude správce zpracovávat manuálně i automaticky přímo prostřednictvím svých zaměstnanců. Informace předané tímto formulářem budou uloženy v databázi správce maximálně po dobu 10 let. Odvolání souhlasu s uložením a zpracováním poskytnutých dat lze e-mailem na info@origo-reality.cz. V případě podezření na neoprávněné použití Vámi poskytnutých údajů máte právo předat podnět k šetření Úřadu pro ochranu osobních údajů. Více informací
Chystáte se prodat nemovitost?
Pomůžeme Vám!