Prodej rodinného domu, Ostrava, 177 m2 (ID: 1802899)

Ostrava, Bartovice

12 490 000 Kč
/za nemovitost
včetně provize, včetně právního servisu
Hypotéka od 55 823 Kč /měs. Chci hypotéku

Parametry domu

AdresaOstrava, Bartovice
ID00576
StavbaCihlová
Stav objektuVe výstavbě
VybavenoČástečně
Druh objektuSamostatný
Lokalita objektuKlidná část obce
Užitná plocha177 m2
Plocha pozemku739 m2
Plocha zahrady562 m2
Třída energetické náročnostiA - Mimořádně úsporná
Ukazatel energetické náročnosti40 kWh/m2 za rok
Elektřina230V, 400V
OdpadČOV pro celý objekt
TelekomunikaceSatelit
DopravaSilnice, MHD, Autobus
VodaVodovod
Bezbarierový přístup

Origo partneři v Ostravě

Popis

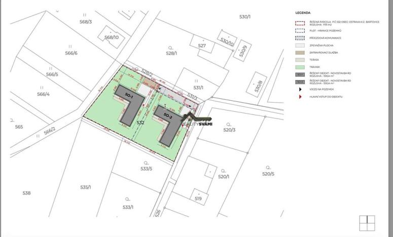
Poslední dům v lokalitě.

Nabízíme k prodeji novostavbu rodinného domu, ve fázi výstavby, před dokončením, umístěnou v klidné části Ostravy Bartovic. Dům disponuje 177m2 užitné plochy, kdy obytnou část tvoří 126m2 a 51m2 terasy, která je otočená na jihozápad, což zajišťuje dostatek slunečního svitu i v pozdějších odpoledních hodinách. Zahrada a umístění terasy nabízí možnost k vybudování bazénu, což sice není součástí projektu, ale je možné po dohodě stavbu bazénu realizovat

Samotný dům je zděný, s dispozicí 4+kk, technickou místností, šatnou, koupelnou s WC a samostatným WC, spojeným obývacím pokojem s kuchyní, kde je umístěný vstup na terasu. Ten je také možný z obou menších pokojů.

Dům ve fázi výstavby, kdy je hotová střecha, fasáda, příprava pro venkovní žaluzie a mnoho dalšího, ale i tak se zde nabízí možnost ovlivnit použité materiály, či změnit barevnost použitých materiálů, nebo rozložení kuchyňské linky. Nelze zasahovat do rozložení domu. V domě je dále použito vodní podlahové topení s tepelným čerpadlem, klimatizace v každém pokoji. Stavba je napojena na elektřinu, vodu a kanalizace bude řešena pomocí ČOV. Obec má v plánu rozšíření kanalizace, což bude možné do budoucna použít pro napojení domu.

Stavba je naceněna s kompletním dokončením, včetně terénních úprav. Oplocení je věcí dohody, ale bude komplet mimo přední části pozemku, zde zůstává prostor pro použití okrasných plotů, apod.

Ulice je průjezdná, nicméně zajíždí zde pouze obyvatelé, jelikož se vrací opět na hlavní komunikaci, což zaručuje dostatek klidu a soukromí. Jedná se o 2 stejné stavby vedle sebe, kdy jedna je již prodaná, které jsou ovšem řešeny tak, ať obyvatelům zajistí dostatek soukromí a klidu. Pro více informací nás neváhejte kontaktovat. Projekt je samozřejmě k nahlédnutí, při osobní schůzce.

V okolí nalezneme dopravní spojení do okolních měst a na své si přijdou i rodiny s dětmi, díky otevření nedalekého Kouparku v Radvanicích, dostupného cca 2 zastávky autobusem.

Makléř

Máte zájem o tento dům?

Tímto, v souladu s nařízením Evropského parlamentu a Rady (EU) 2016/679, v platném znění, prohlašuji, že mi je alespoň 16 let a uděluji tak svůj souhlas se zpracováním zadaných údajů (jméno, telefon, e-mail, ip adresa) společnosti B3 Technology, s.r.o., IČ: 07330600, se sídlem Novostavby 126/23, 435 11 Lom (správce dat), za účelem předání dotazu z tohoto formuláře Vámi vybranému inzerentovi a zpětného kontaktování mé osoby. Osobní údaje bude správce zpracovávat manuálně i automaticky přímo prostřednictvím svých zaměstnanců. Informace předané tímto formulářem budou uloženy v databázi správce maximálně po dobu 10 let. Odvolání souhlasu s uložením a zpracováním poskytnutých dat lze e-mailem na info@origo-reality.cz. V případě podezření na neoprávněné použití Vámi poskytnutých údajů máte právo předat podnět k šetření Úřadu pro ochranu osobních údajů. Více informací
Chystáte se prodat nemovitost?
Pomůžeme Vám!

Přihlášení k odběru

Nenechte si ujít nejnovější nabídky prodeje rodinných domů v Ostravě.