Prodej zemědělské usedlosti, Veliš, 335 m2

Veliš

5 900 000 Kč
/za nemovitost
včetně poplatků, včetně provize, včetně právního servisu
Hypotéka od 26 369 Kč /měs. Chci hypotéku

Parametry domu

AdresaVeliš
ID00181
StavbaSmíšená
Stav objektuProjekt
Druh objektuSamostatný
Lokalita objektuKlidná část obce
Užitná plocha335 m2
Zastavěná plocha335 m2
Plocha pozemku2763 m2
Třída energetické náročnostiG - Mimořádně nehospodárná
Elektřina230V, 400V
PlynPlynovod
OdpadVeřejná kanalizace
DopravaSilnice, Autobus
VodaVodovod

Origo partneři v Veliši

Popis

Zemědělská usedlost s velkým potenciálem – Veliš u Jičína.

Pozemek 2 763 m² | Zastavěná plocha 335 m² | Projekt a architektonická studie součástí nabídky

V exkluzivním zastoupení majitele nabízíme k prodeji zemědělskou usedlost na úpatí kopce Veliš, pouhých 10 minut od centra Jičína. Nemovitost je určena ke kompletní rekonstrukci, a právě to vytváří prostor pro vznik výjimečného projektu s jasně definovanou vizí.

Na pozemku o rozloze 2 763 m² se nachází:
• hlavní obytná budova,
• chlévy,
• menší přidružené budovy
• pískovcové sloupy, které zůstaly po demolici druhé stodoly v zadní části zahrady.

Dále je součástí pozemku ovocný sad a potůček na jeho hranici, kde architektonická studie uvažuje o přírodním koupacím biotopu.

Nemovitost je přístupná z obecní komunikace, ze zadní strany pak vede další přístupová cesta, na níž je součástí prodeje spoluvlastnický podíl.

Technické informace:
• Celková plocha pozemku: 2 763 m²
• Zastavěná plocha: 335 m²
• Stavby na pozemku: hlavní obytná budova, chlévy, další menší budovy
• Zachovalé pískovcové sloupy po zrušené stodole
• Obytný dům: částečně podsklepený, s pískovcovou podezdívkou, půdou a kopanou studnou (15 m hluboká, vydatný zdroj vody)
• Inženýrské sítě: nové přípojky vody, kanalizace a elektřiny – vše na pozemku
• Plynová přípojka: přímo před domem
• Přístup: z obecní komunikace + podíl na přístupové cestě ze zadní strany

Součást nabídky:
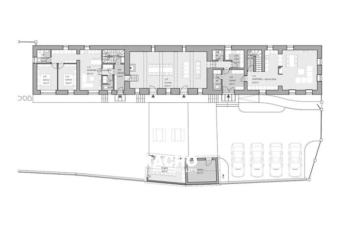
• Projektová dokumentace
• Architektonická studie – návrh přeměny na luxusní venkovský areál s několika apartmány, společenskou konobou, wellness zónou (bazén, sauna, ochlazovna), relaxačními místy a zázemím pro hosty

Usedlost je ideální jak pro podnikatelský záměr v oblasti venkovské turistiky, tak pro vznik stylového rodinného sídla s klidem, soukromím a velkorysým prostorem.

Obec Veliš nabízí obecní úřad, školu, školku, knihovnu, sportoviště, cyklostezky i autobusovou zastávku jen pár kroků od domu. Kompletní občanská vybavenost je v blízkém Jičíně – 4km.

Prodávající si vyhrazuje právo vybrat kupujícího na základě jím zvolených kritérií, a to bez povinnosti přijmout nejvyšší nabídku.

Makléř

Máte zájem o tento dům?

Tímto, v souladu s nařízením Evropského parlamentu a Rady (EU) 2016/679, v platném znění, prohlašuji, že mi je alespoň 16 let a uděluji tak svůj souhlas se zpracováním zadaných údajů (jméno, telefon, e-mail, ip adresa) společnosti B3 Technology, s.r.o., IČ: 07330600, se sídlem Novostavby 126/23, 435 11 Lom (správce dat), za účelem předání dotazu z tohoto formuláře Vámi vybranému inzerentovi a zpětného kontaktování mé osoby. Osobní údaje bude správce zpracovávat manuálně i automaticky přímo prostřednictvím svých zaměstnanců. Informace předané tímto formulářem budou uloženy v databázi správce maximálně po dobu 10 let. Odvolání souhlasu s uložením a zpracováním poskytnutých dat lze e-mailem na info@origo-reality.cz. V případě podezření na neoprávněné použití Vámi poskytnutých údajů máte právo předat podnět k šetření Úřadu pro ochranu osobních údajů. Více informací
Chystáte se prodat nemovitost?
Pomůžeme Vám!

Přihlášení k odběru

Nenechte si ujít nejnovější nabídky prodeje zemědělských usedlostí v Veliši (okr. Jičín).