Pronájem bytu 3+1, Praha - Žižkov, Lucemburská, 76 m2

Lucemburská, Žižkov - Praha 3

23 900 Kč
/za měsíc
vratná jistota, náklady na bydlení 5 264 Kč, poplatek za podnájem
Získejte výhodnou HYPOTÉKU Chci hypotéku

Parametry bytu

AdresaLucemburská, Žižkov - Praha 3
IDN6599
StavbaCihlová
Stav objektuVelmi dobrý
Patro2. z 7
VybavenoNe
Typ objektuPatrový
Lokalita objektuCentrum obce
VlastnictvíOsobní
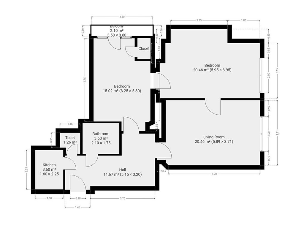
Užitná plocha76 m2
Podlahová plocha76 m2
Třída energetické náročnostiG - Mimořádně nehospodárná
Elektřina230V
PlynPlynovod
TopeníÚstřední dálkové
DopravaVlak, Dálnice, Silnice, MHD, Autobus
VodaVodovod
Balkon
Sklep
Výtah

Origo partneři v Praze 3

Stěhovací služby

Výkup a prodej starého nábytku

Popis

K dlouhodobému podnájmu nabízíme světlý byt 3+1 v oblíbené lokalitě pražského Žižkova. Byt o výměře 76 m² se nachází v 1. patře zděného domu s výtahem. K bytu náleží sklep a balkon s příjemným výhledem do ulice lemované zelení.

Byt je nabízen nezařízený, což umožňuje přizpůsobit si interiér dle vlastního stylu. Kuchyně je vybavena lednicí a kombinovaným sporákem. Obývací pokoj poskytuje dostatek prostoru i pro jídelní část. K dispozici jsou také dva samostatné pokoje, vhodné jako ložnice, dětský pokoj či pracovna. Součástí bytu je praktická komora. Koupelna je vybavena vanou, umyvadlem a pračkou, toaleta je samostatná.

V okolí domu se nachází široká občanská vybavenost – restaurace, kavárny, OC Flora, farmářské trhy na Jiřáku či školy. Pro volný čas je ideální park Parukářka, vzdálený pár minut minut chůze. Výbornou dopravní dostupnost zajišťuje blízká tramvajová zastávka a stanice metra Flora.

Byt je volný k nastěhování ihned.

Energetická třída: G (průkaz nedodán).

Makléř

Máte zájem o tento byt?

Tímto, v souladu s nařízením Evropského parlamentu a Rady (EU) 2016/679, v platném znění, prohlašuji, že mi je alespoň 16 let a uděluji tak svůj souhlas se zpracováním zadaných údajů (jméno, telefon, e-mail, ip adresa) společnosti B3 Technology, s.r.o., IČ: 07330600, se sídlem Novostavby 126/23, 435 11 Lom (správce dat), za účelem předání dotazu z tohoto formuláře Vámi vybranému inzerentovi a zpětného kontaktování mé osoby. Osobní údaje bude správce zpracovávat manuálně i automaticky přímo prostřednictvím svých zaměstnanců. Informace předané tímto formulářem budou uloženy v databázi správce maximálně po dobu 10 let. Odvolání souhlasu s uložením a zpracováním poskytnutých dat lze e-mailem na info@origo-reality.cz. V případě podezření na neoprávněné použití Vámi poskytnutých údajů máte právo předat podnět k šetření Úřadu pro ochranu osobních údajů. Více informací
Chystáte se prodat nemovitost?
Pomůžeme Vám!

Přihlášení k odběru

Nenechte si ujít nejnovější nabídky pronájmu bytů 3+1 v Praze 3.