Prodej rodinného domu, Šenov, Větrná, 164 m2

Větrná, Šenov

12 200 000 Kč
/za nemovitost
Hypotéka od 54 527 Kč /měs. Chci hypotéku

Parametry domu

AdresaVětrná, Šenov
ID917674
StavbaCihlová
Stav objektuVelmi dobrý
VybavenoČástečně
Druh objektuSamostatný
Lokalita objektuKlidná část obce
VlastnictvíOsobní
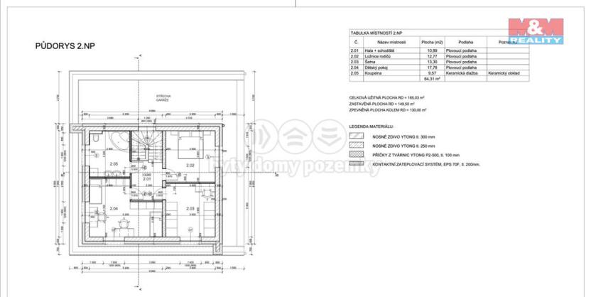
Užitná plocha164 m2
Plocha pozemku1008 m2

Origo partneři v Šenově

Popis

Nabízíme vám k prodeji rodinný dům zkolaudovaný v roce 2019 v Šenově, na ulici Větrná. Nadstandardně vybavený rodinný dům stojí ve slepé ulici, což zajišťuje klid a soukromí. V domě najdete veškeré moderní vybavení jako je Jablotron zabezpečení, kamerový systém, elektrické rolety, bazén a mnohem víc. V 1. podlaží se nachází garáž pro 1 auto s technickou místností, dále po vstupu do domu najdete menší předsíň, koupelnu se sprchovým koutem a WC, velmi prostorný obývací pokoj s kuchyní a jídelnou. Ve 2. podlaží se nachází 3 pokoje a koupelna s vanou, sprchovým koutem a wc. V ložnici je možnost dostavění balkonu. O teplo se stará tepelné čerpadlo a podlahové topení, zároveň je dům napojen na veřejný vodovod a kanalizaci. U domu je parkovací stání až pro 4 auta. V roce 2024 byl vybudován bazén s přístřeškem. Doporučujeme prohlídku. Pro více informací volejte makléře.

Makléř

Máte zájem o tento dům?

Tímto, v souladu s nařízením Evropského parlamentu a Rady (EU) 2016/679, v platném znění, prohlašuji, že mi je alespoň 16 let a uděluji tak svůj souhlas se zpracováním zadaných údajů (jméno, telefon, e-mail, ip adresa) společnosti B3 Technology, s.r.o., IČ: 07330600, se sídlem Novostavby 126/23, 435 11 Lom (správce dat), za účelem předání dotazu z tohoto formuláře Vámi vybranému inzerentovi a zpětného kontaktování mé osoby. Osobní údaje bude správce zpracovávat manuálně i automaticky přímo prostřednictvím svých zaměstnanců. Informace předané tímto formulářem budou uloženy v databázi správce maximálně po dobu 10 let. Odvolání souhlasu s uložením a zpracováním poskytnutých dat lze e-mailem na info@origo-reality.cz. V případě podezření na neoprávněné použití Vámi poskytnutých údajů máte právo předat podnět k šetření Úřadu pro ochranu osobních údajů. Více informací
Chystáte se prodat nemovitost?
Pomůžeme Vám!

Přihlášení k odběru

Nenechte si ujít nejnovější nabídky prodeje rodinných domů v Šenově.