Pronájem kanceláře, Praha - Nové Město, Národní, 137 m2

Národní, Praha 1

68 500 Kč
/za měsíc
+popl. 60, Cena pronájmu je 68 500,-Kč + 21%DPH + poplatky 8 200,-Kč
Získejte výhodnou HYPOTÉKU Chci hypotéku

Parametry nemovitosti

AdresaNárodní, Praha 1
ID652776
StavbaCihlová
Stav objektuVe výstavbě
Typ objektuPatrový
Lokalita objektuCentrum obce
Užitná plocha137 m2
Třída energetické náročnostiB - Velmi úsporná
Ukazatel energetické náročnosti92 kWh/m2 za rok
TopeníÚstřední dálkové
Parkování

Origo partneři v Praze 1

Stěhovací služby

Výkup a prodej starého nábytku

Popis

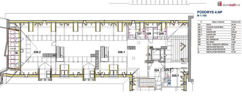
Nabízíme Vám pronájem nově budované moderní reprezentativní kanceláře v prostoru historického prestižním objektu, klášteře sester Voršilek, přímo na ul. Národní, u zastávky tramvaje "Národní" navazující na Novou scénu Národního divadla. Jedná se v tuto chvíli o otevřený prostor, který se nachází ve 4.NP s výtahem. Jedná se o variabilní prostor, kdy dispozice kanceláří lze postavit podle Vašich představ, nebo mít velký open space, rozdělený dělícími stěnami a měnit dle aktuální potřeby. Jedná se o nejsvětlejší kancelářské prostory o celkové výměře 137m², ke kterým je i pro ostatní kanceláře na patře společná kuchyň s jídelnou, toalety, sprcha, technická místnost. Součástí služeb celého objektu je i recepce, s možností přenechání např. dokumentů, pošty atd., která se nachází v přízemí objektu. Náklady na vybudování jdou za pronajímatelem. Orientace kanceláře je primárně na jih do klidného klášterního parku, který není určen pro širokou veřejnost, tudíž klid a ticho zde jsou zaručeny. Prostory budou klimatizované, připojení na internet je samozřejmostí. Dokončení rekonstrukce je do cca 3 měsíců od podepsání rezervace na kanceláře. Ke kanceláři patří i věžička, jejíž výměra není započítána do výměr kanceláře, z této věžičky je i krásný výhled. V objektu je k dispozici možnost pronajmutí reprezentativních ozvučených sálů, na Vaše uzavřené konference, prezentace, jednání či večírky. Sály jsou dva, s kapacitou 100 a 30 osob. K pronájmu je možnost i parkovacího místa v ul.: Voršilská za cenu 3.500,-Kč/měsíc, nebo ve vnitrobloku za 6.000,-Kč+ DPH. V objektu se dále nachází dvě kavárny s občerstvením, velmi kvalitní velká restaurace se zahrádkou a pokud budete chtít mimo objekt, tak naproti je Kavárna Slavie. Zálohové služby za měsíc jsou ve výši 8 200,-Kč/m² za předmětný prostor. Jedná se o poslední volné kanceláře v celém objektu. Ev. číslo: 652162.

Makléř

Máte zájem o tuto nemovistost?

Tímto, v souladu s nařízením Evropského parlamentu a Rady (EU) 2016/679, v platném znění, prohlašuji, že mi je alespoň 16 let a uděluji tak svůj souhlas se zpracováním zadaných údajů (jméno, telefon, e-mail, ip adresa) společnosti B3 Technology, s.r.o., IČ: 07330600, se sídlem Novostavby 126/23, 435 11 Lom (správce dat), za účelem předání dotazu z tohoto formuláře Vámi vybranému inzerentovi a zpětného kontaktování mé osoby. Osobní údaje bude správce zpracovávat manuálně i automaticky přímo prostřednictvím svých zaměstnanců. Informace předané tímto formulářem budou uloženy v databázi správce maximálně po dobu 10 let. Odvolání souhlasu s uložením a zpracováním poskytnutých dat lze e-mailem na info@origo-reality.cz. V případě podezření na neoprávněné použití Vámi poskytnutých údajů máte právo předat podnět k šetření Úřadu pro ochranu osobních údajů. Více informací
Chystáte se prodat nemovitost?
Pomůžeme Vám!