Prodej bytu 5+kk, Praha - Žižkov, Vlkova, 146 m2
Vlkova, Praha, Žižkov
/za nemovitost
Parametry bytu
| Adresa | Vlkova, Praha, Žižkov | 
|---|---|
| ID | 531787 | 
| Stavba | Smíšená | 
| Stav objektu | Velmi dobrý | 
| Patro | 2. z 3 | 
| Vlastnictví | Osobní | 
| Užitná plocha | 146 m2 | 
| Plocha zahrady | 219 m2 | 
| Třída energetické náročnosti | D - Méně úsporná | 
| Terasa | |
| Výtah | |
| Parkování | 
Popis
Nabízíme ojedinělou příležitost bytu o dispozici 5+kk s obytnou galerií a soukromou zahradou, téměř v centru města. Byt o celkové ploše 146 m² vznikl ve vnitrobloku historické budovy z přelomu 19. a 20. století a nabízí oázu klidu v podobě soukromé, téměř bezúdržbové zahrady o rozloze 219 m², osázené vzrostlými stromy a keři. Lokalita je jen pár desítek metrů od Riegrových sadů a příjemnou procházkou se dostanete až na Náměstí Republiky.
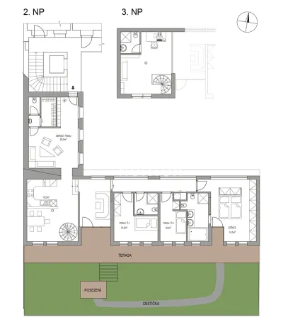
Vstupní část tvoří obytná hala s vestavěnými úložnými prostory, dále pracovna, šatna a samostatná toaleta. Navazuje plně vybavená kuchyň s jídelnou s biokrbem a vstupem na galerii, která může sloužit jako další pokoj nebo pracovna. O dva schody výše se nachází obývací pokoj se vstupem na terasu a zahradu. Jednotlivé části bytu jsou rozvrženy do několika výškových úrovní a většina prostor má výhodu přímého propojení se zahradou.
V samostatné části bytu se nachází tři ložnice, všechny s okny orientovanými do zahrady. Dominantou je hlavní ložnice s vlastní koupelnou vybavenou vanou i sprchovým koutem a uzavřenou toaletou. Z ložnice vedou francouzské dveře přímo na terasu a do zahrady. Další ložnice je přístupná ze spojovací chodby, odkud se vstupuje i do druhé koupelny se sprchou a toaletou. Třetí pokoj je menší a vhodný například jako dětský pokoj či pracovna. Z chodby je také přístup do technického výklenku pro pračku s úložným prostorem.
Zahrada obdélníkového tvaru zahrnuje terasovou část, prostor pro venkovní jídelní stůl i okrasnou zeleň.
Interiér bytu i zahrady byl navržen s důrazem na funkčnost a estetické zpracování jednotlivých detailů. Byt je plně klimatizovaný (Mitsubishi), vytápění zajišťuje plynový kotel Junkers. Zahrada je opatřena automatickým zavlažovacím systémem a venkovním osvětlením. Součástí vybavení je plně zařízená kuchyň, vestavěné skříně a další zakázkový nábytek na míru.
K bytu lze zakoupit parkovací stání přímo ve vnitrobloku domu, cena za jedno stání 1,3 mil. Kč.
Jen pár kroků od bytu se nacházejí Riegrovy sady – oblíbený zelený prostor ideální k odpočinku, sportu i výhledům na Pražský hrad. Pokud zatoužíte po živější atmosféře, stačí se vydat směrem k náměstí Jiřího z Poděbrad, kde na vás čeká řada kaváren, galerií, kulturních akcí a autentický městský život.
Tramvajová zastávka je vzdálena přibližně 3 minuty chůze, stanice metra Hlavní nádraží (linka C) a Flora (linka A) jsou dostupné do 10 minut jízdy tramvají. Vlaková stanice Praha hlavní nádraží je rovněž poblíž, ideální pro časté cestování mimo město.
Přihlášení k odběru
Nenechte si ujít nejnovější nabídky prodeje bytů 5+kk v Praze 3.
 
                                                                                     
                                                                                     
                                                                                     
                                                                                     
                                                                                     
                                                                                     
                                                                                     
                                                                                     
                                                                                     
                                                                                     
                                                                                     
                                                                                     
                                                                                     
                                                                                     
                                                                                     
                                                                                     
                                                                                     
                                                                                     
                                                                                     
                                                             
                         
         
         
         
         
         
         
         
        