Prodej rodinného domu, Vlkaneč, 244 m2

Vlkaneč, Přibyslavice

4 999 000 Kč
/za nemovitost
Hypotéka od 22 343 Kč /měs. Chci hypotéku

Parametry domu

AdresaVlkaneč, Přibyslavice
IDN03596
StavbaCihlová
Stav objektuDobrý
Druh objektuSamostatný
Lokalita objektuCentrum obce
Užitná plocha244 m2
Zastavěná plocha300 m2
Plocha pozemku2375 m2
Třída energetické náročnostiG - Mimořádně nehospodárná
TopeníLokální tuhá paliva, Lokální elektrické
DopravaVlak, Dálnice, Silnice, MHD, Autobus
VodaMístní zdroj vody, Vodovod
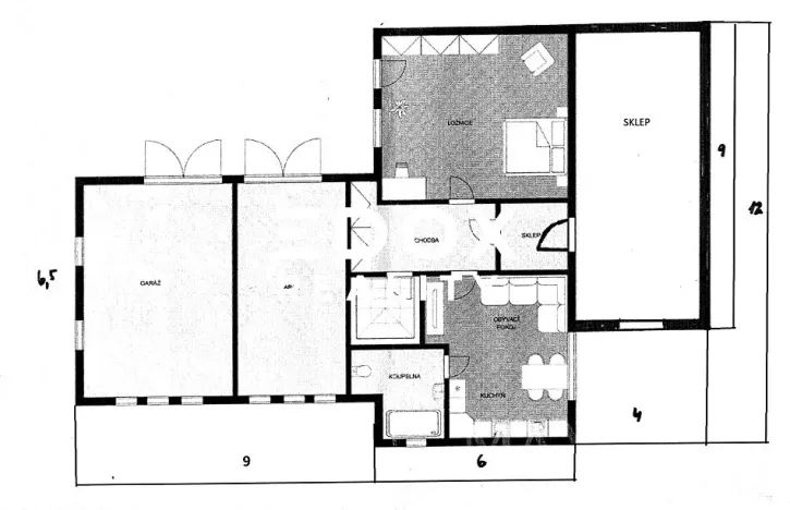
Garáž
Sklep

Origo partneři v Vlkanči

Popis

Exkluzivně nabízíme ke koupi prostorný dvoupodlažní rodinný dům s užitnou plochou 244m² a krásným pozemkem o velikosti 2 375m2, na němž se nachází menší zemědělská stavení. Tato nemovitost je ideální variantou pro rodinné bydlení, dvougenerační soužití nebo rekonstrukci dle vlastních představ.

Dům je v prvním podlaží řešen jako bytová jednotka o dispozici 2 + kk a velikosti 61,25m2 a dvě garáže o velikosti 43m2. Bytová jednotka je řešena jako kuchyně s jídelnou, pokoj a koupelna se sprchovým koutem. Z chodby bytové jednotky je vstup do sklepa.

V druhém podlaží se nachází bytová jednotka 3 + 1 o velikosti 104,25m2. Tato jednotka je dispozičně řešena jako kuchyně s jídelnou, pokoj, dva průchozí pokoje a koupelna. Z této jednotky je vstup také na terasu a zahradu.

Plastová okna s dvojskly v celém domě.
Na pozemku jsou dvě stavení a stodola.
Dům je částečně podsklepen.

Vytápění pomocí kotle na pevná paliva a akumulačních kamen.
Voda obecní + studna napojena přímo do domu.
Plyn je k napojení na hranici pozemku.

V obci Přibyslavice se nachází částečná občanská vybavenost jako je knihovna, hasičská zbrojnice, obchod s potravinami a hostinec, dokončena byla výstavba vodovodu a plynofikace. Obec se nachází v klidném prostředí, obklopena přírodou a četnými lesy.

V případě zájmu o prohlídku kontaktujte přímo makléře.

Průkaz energetické náročnosti nebyl předložen, proto je uvedeno G.
Nejedná se o návrh na uzavření smlouvy (nabídku) ve smyslu § 1731 a §1732 zákona č. 89/2012 Sb., Občanského zákoníku. Společnost Edox reality s.r.o. si vyhrazuje právo uzavření všech smluvních vztahů písemně. Uvedené informace mají pouze informativní charakter a mohou se v průběhu inzerce změnit. V případě zájmu o více informací, kontaktujte přímo makléře.

Makléř

Máte zájem o tento dům?

Tímto, v souladu s nařízením Evropského parlamentu a Rady (EU) 2016/679, v platném znění, prohlašuji, že mi je alespoň 16 let a uděluji tak svůj souhlas se zpracováním zadaných údajů (jméno, telefon, e-mail, ip adresa) společnosti B3 Technology, s.r.o., IČ: 07330600, se sídlem Novostavby 126/23, 435 11 Lom (správce dat), za účelem předání dotazu z tohoto formuláře Vámi vybranému inzerentovi a zpětného kontaktování mé osoby. Osobní údaje bude správce zpracovávat manuálně i automaticky přímo prostřednictvím svých zaměstnanců. Informace předané tímto formulářem budou uloženy v databázi správce maximálně po dobu 10 let. Odvolání souhlasu s uložením a zpracováním poskytnutých dat lze e-mailem na info@origo-reality.cz. V případě podezření na neoprávněné použití Vámi poskytnutých údajů máte právo předat podnět k šetření Úřadu pro ochranu osobních údajů. Více informací
Chystáte se prodat nemovitost?
Pomůžeme Vám!

Přihlášení k odběru

Nenechte si ujít nejnovější nabídky prodeje rodinných domů v Vlkanči.