Prodej atypického bytu, Dolní Podluží, 246 m2 (ID: 1795352)

Dolní Podluží

900 000 Kč
/za nemovitost
včetně provize, včetně právního servisu, cena k jednání
Hypotéka od 4 022 Kč /měs. Chci hypotéku

Parametry bytu

AdresaDolní Podluží
ID100957
StavbaCihlová
Stav objektuDobrý
Patro3. z 4
VybavenoNe
Lokalita objektuCentrum obce
VlastnictvíOsobní
Užitná plocha246 m2
Třída energetické náročnostiG - Mimořádně nehospodárná
Elektřina230V, 400V
OdpadVeřejná kanalizace
DopravaVlak
VodaMístní zdroj vody
Výtah
Parkování

Origo partneři v Dolním Podluží

Okna a dveře

Rekonstrukce

Zámečnické práce

Popis

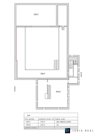
Nabízíme k prodeji atypickou jednotku o výměře 246 m2. Jednotka se nachází v několika podlažích a je vhodná pro vestavbu několika bytových jednotek(3-5 bytů). Jde vyloženě o hrubou stavbu, vše je potřeba vybudovat. Objekt je napojen na vodovod a kanalizaci, v ulici se nachází i přípojka plynu. V areálu je možné přikoupit skladovací prostory, restauraci, kanceláře, sklep nebo garáž. Zajistíme financování, nákup možný i na splátky. Cena k jednání. Je možná také výměna za jinou nemovitost.

Makléř

Máte zájem o tento byt?

Tímto, v souladu s nařízením Evropského parlamentu a Rady (EU) 2016/679, v platném znění, prohlašuji, že mi je alespoň 16 let a uděluji tak svůj souhlas se zpracováním zadaných údajů (jméno, telefon, e-mail, ip adresa) společnosti B3 Technology, s.r.o., IČ: 07330600, se sídlem Novostavby 126/23, 435 11 Lom (správce dat), za účelem předání dotazu z tohoto formuláře Vámi vybranému inzerentovi a zpětného kontaktování mé osoby. Osobní údaje bude správce zpracovávat manuálně i automaticky přímo prostřednictvím svých zaměstnanců. Informace předané tímto formulářem budou uloženy v databázi správce maximálně po dobu 10 let. Odvolání souhlasu s uložením a zpracováním poskytnutých dat lze e-mailem na info@origo-reality.cz. V případě podezření na neoprávněné použití Vámi poskytnutých údajů máte právo předat podnět k šetření Úřadu pro ochranu osobních údajů. Více informací
Chystáte se prodat nemovitost?
Pomůžeme Vám!

Přihlášení k odběru

Nenechte si ujít nejnovější nabídky prodeje atypických bytů v Dolním Podluží.