Prodej bytu 5+1, Praha - Radlice, Na Farkáně III, 143 m2 (ID: 1794428)

Na Farkáně III, Praha 5

18 990 000 Kč
/za nemovitost
Hypotéka od 84 874 Kč /měs. Chci hypotéku

Parametry bytu

AdresaNa Farkáně III, Praha 5
ID914369
StavbaCihlová
Stav objektuDobrý
VybavenoČástečně
Lokalita objektuKlidná část obce
VlastnictvíOsobní
Užitná plocha143 m2
Balkon

Origo partneři v Praze 5

Stěhovací služby

Výkup a prodej starého nábytku

Popis

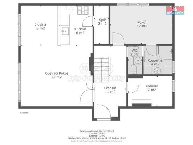
Hledáte prostorný a moderní byt pro velkou rodinu v klidném prostředí a při tom se skvělou dostupností centra Prahy? Nabízíme prostorný mezonetový byt 6+KK o celkové užitné ploše 143 m² + terasa 9 m2, nacházející se nedaleko krásného Prokopského údolí v lokalitě Na Farkáně, v Praze – Radlicích v 5. a 6. nadzemním podlaží cihlového bytového domu s výtahem. Dům prošel velmi zdařilou a citlivou rekonstrukcí. Vlastní byt sestává z velkého obývacího pokoje s kuchyňským a jídelním koutem, ložnice s koupelnou se sprchovým koutem a samostatného WC. Dále je zde komora, která Vám může posloužit i jako šatna nebo pracovna, spíž a prostorná vstupní chodba. V podkroví naleznete 4 prostorné pokoje, velkou koupelnu s vanou a komoru, kterou opět můžete využít i jako šatnu. O teplo a pohodu je postaráno podlahovým vytápěním s plynovým kotlem se samostatnými okruhy pro jednotlivé místnosti, což Vám zaručuje komfortní teplo. Podkroví je vytápěno radiátory. K bytu náleží jedno parkovací místo u domu.

Makléř

Máte zájem o tento byt?

Tímto, v souladu s nařízením Evropského parlamentu a Rady (EU) 2016/679, v platném znění, prohlašuji, že mi je alespoň 16 let a uděluji tak svůj souhlas se zpracováním zadaných údajů (jméno, telefon, e-mail, ip adresa) společnosti B3 Technology, s.r.o., IČ: 07330600, se sídlem Novostavby 126/23, 435 11 Lom (správce dat), za účelem předání dotazu z tohoto formuláře Vámi vybranému inzerentovi a zpětného kontaktování mé osoby. Osobní údaje bude správce zpracovávat manuálně i automaticky přímo prostřednictvím svých zaměstnanců. Informace předané tímto formulářem budou uloženy v databázi správce maximálně po dobu 10 let. Odvolání souhlasu s uložením a zpracováním poskytnutých dat lze e-mailem na info@origo-reality.cz. V případě podezření na neoprávněné použití Vámi poskytnutých údajů máte právo předat podnět k šetření Úřadu pro ochranu osobních údajů. Více informací
Chystáte se prodat nemovitost?
Pomůžeme Vám!

Přihlášení k odběru

Nenechte si ujít nejnovější nabídky prodeje bytů 5+1 v Praze 5.