Prodej bytu 3+1, Praha - Vršovice, Kavkazská, 64 m2
Kavkazská, Praha 10
/za nemovitost
Parametry bytu
| Stav | Rezervováno | 
|---|---|
| Adresa | Kavkazská, Praha 10 | 
| ID | 007 | 
| Stavba | Cihlová | 
| Stav objektu | Velmi dobrý | 
| Patro | 5. z 7 | 
| Vlastnictví | Osobní | 
| Užitná plocha | 64 m2 | 
| Zastavěná plocha | 215 m2 | 
| Podlahová plocha | 64 m2 | 
| Třída energetické náročnosti | D - Méně úsporná | 
| Plyn | Plynovod | 
| Odpad | Veřejná kanalizace | 
| Balkon | |
| Sklep | |
| Výtah | 
Popis
Jsou byty, které chtějí být hotové. A pak jsou ty, které chtějí být vaše.
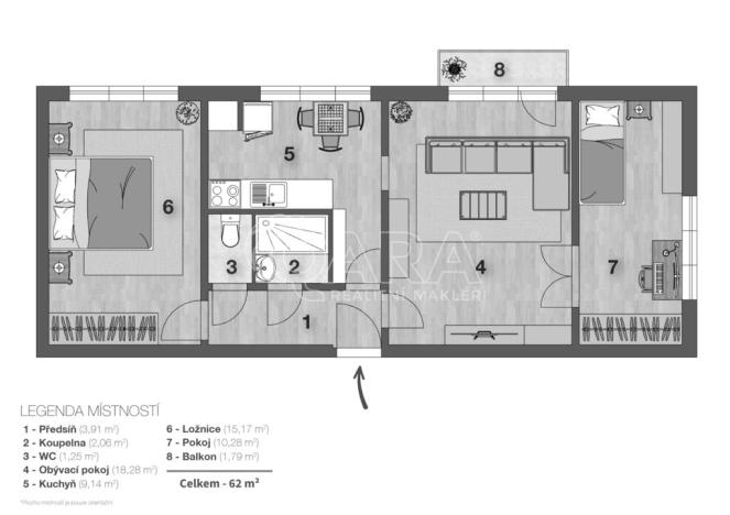
Tento rohový 3+1 s balkonem ve čtvrtém patře udržovaného domu s výtahem si žádá člověka s vizí.
Nabízí 64 m² prostoru včetně balkonu a sklepa a dispozičně dvě průchozí a jednu neprůchozí místnost – ideální třeba jako ložnice, pracovna, nebo pokoj snů.
Stav bytu? Autentický. Čeká na to, až mu dodáte vlastní styl a novou energii. Kuchyňskou linku a jádro si klidně můžete změnit tak, aby světlo proudilo i do chodby – roh domu tomu hraje do karet.
A kde se to všechno odehrává?
Kavkazská ulice ve Vršovicích. Tramvaj pár minut pěšky, kavárny, bistra, parky, atmosféra.
Místo, kde můžete žít klidně i naplno.
Pro investory i pro ty, kdo nechtějí bydlet v katalogu, ale v prostoru, který si sami vytvoří.
Jestli cítíte, že by to mohl být ten váš prostor, pojďme se tam spolu podívat.
Přihlášení k odběru
Nenechte si ujít nejnovější nabídky prodeje bytů 3+1 v Praze 10.
 
                                                                                     
                                                                                     
                                                                                     
                                                                                     
                                                                                     
                                                                                     
                                                                                     
                                                                                     
                                                                                     
                                                                                     
                                                                                     
                                                                                     
                                                                                     
                                                                                     
                                                                                     
                                                                                     
                                                                                     
                                                                                     
                                                                                     
                                                             
                         
         
         
         
         
         
         
         
        