Prodej rodinného domu, Nechanice, Palackého, 135 m2

Palackého, Nechanice

4 600 000 Kč
/za nemovitost
Hypotéka od 20 559 Kč /měs. Chci hypotéku

Parametry domu

AdresaPalackého, Nechanice
ID305-NP00754
StavbaCihlová
Stav objektuDobrý
VybavenoČástečně
Typ objektuPatrový
Druh objektuŘadový
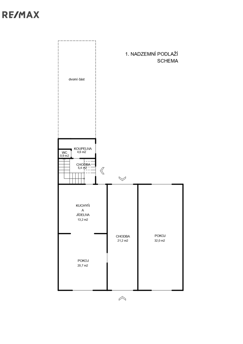
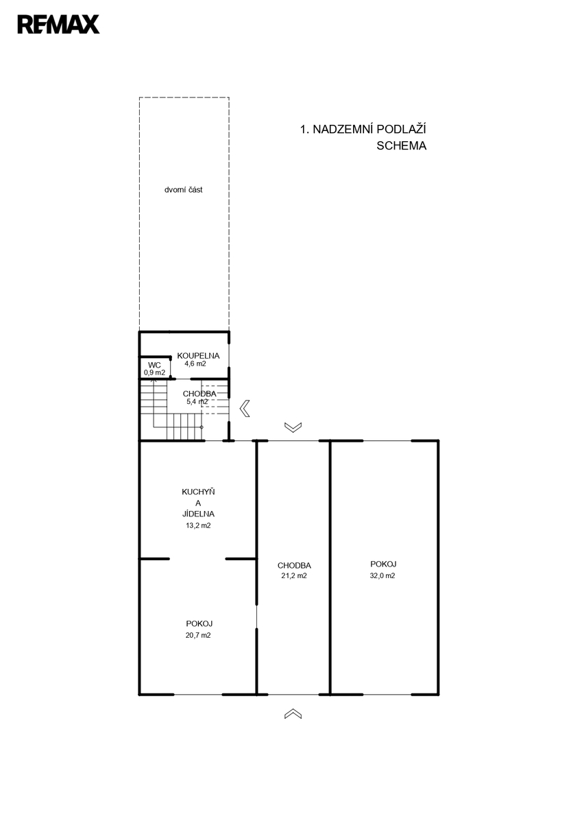
Užitná plocha135 m2
Podlahová plocha194 m2
Plocha pozemku1127 m2
Třída energetické náročnostiG - Mimořádně nehospodárná
Elektřina230V, 400V
OdpadVeřejná kanalizace, Jímka
KomunikaceAsfaltová
DopravaSilnice, Autobus
VodaStudna
Garáž
Bezbarierový přístup
Převod do OV

Origo partneři v Nechanicích

Pojištění a finance

Popis

Hledáte rodinný dům se zahradou, kde si postupně vytvoříte domov přesně podle svých představ? Právě jeden takový pro vás máme v Nechanicích.

Tento rodinný dům stojí v klidné části obce na krásném, prostorném pozemku o velikosti 1 127 m² a nabízí dostatek prostoru pro rodinný život, zahradu i vaše koníčky. Velkou výhodou je také přístup na zahradu nejen od domu, ale i z vedlejšího obecního pozemku, což oceníte například při údržbě zahrady, parkování nebo plánování budoucích úprav.

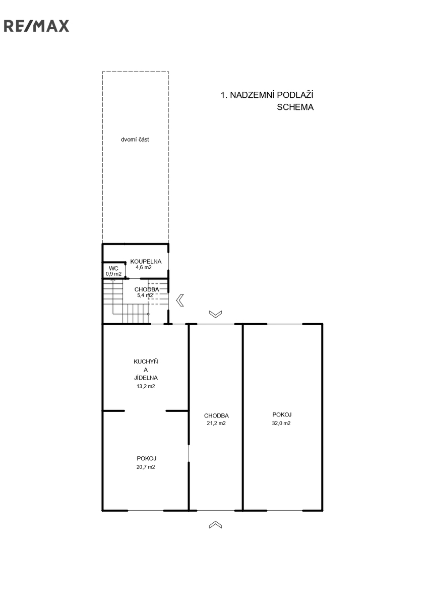
Kromě samotného domu zde najdete také garáž, dílnu a menší zahradní domek, takže místa je tu opravdu dost – ať už pro práci, odpočinek nebo uskladnění všeho potřebného.

Dalším benefitem je, že v domě lze ihned normálně bydlet a případnou rekonstrukci řešit postupně, podle vašich možností a představ. Nemusíte tedy vše řešit najednou – dům si můžete upravovat krok za krokem a přizpůsobovat ho přesně svému stylu a potřebám.

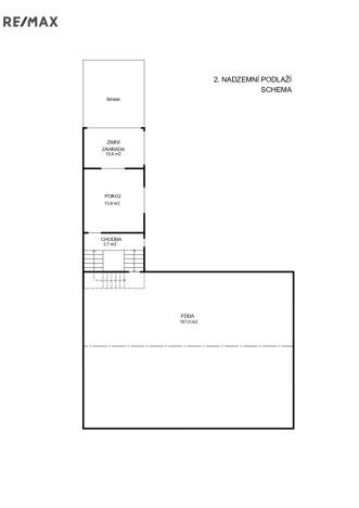
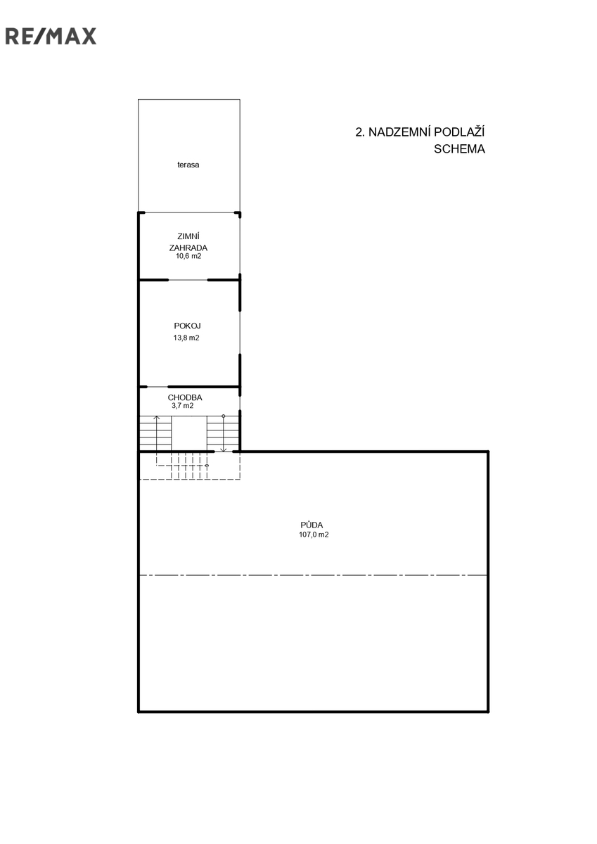
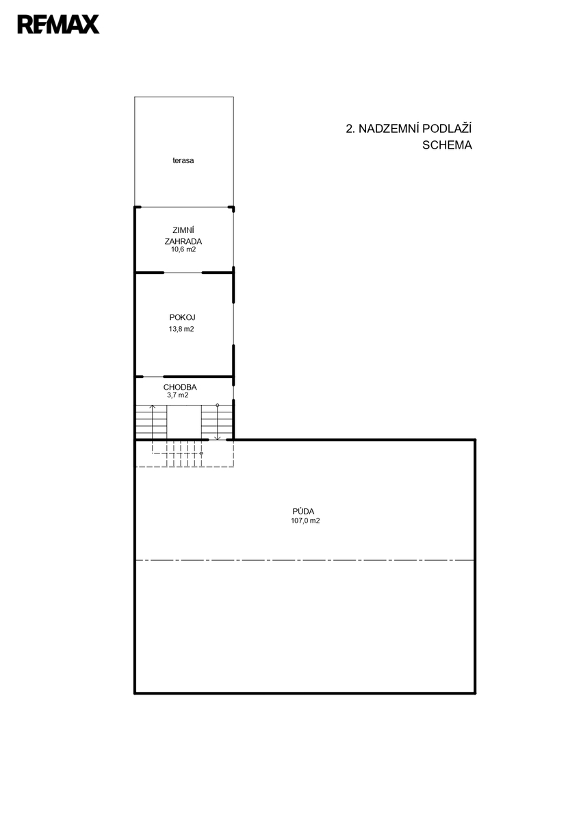
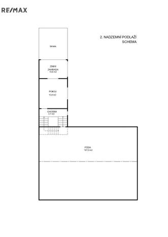
Velký potenciál nabízí také půdní prostor o výměře přibližně 107 m², který přímo vybízí k půdní vestavbě. Díky tomu může dům výrazně zvětšit obytnou plochu a přizpůsobit se i vícegeneračnímu bydlení.

Nemovitost tak může být nejen skvělým rodinným domovem, ale také zajímavou investiční příležitostí. Dispozice i velikost domu umožňují uvažovat o vybudování více bytových jednotek – například pro pronájem nebo kombinaci vlastního bydlení a investice.

Nechanice nabízí kompletní občanskou vybavenost – najdete zde školu, školku, lékaře, obchody, restaurace i další služby pro pohodlný každodenní život. Do Hradce Králové se navíc dostanete během pár minut autem nebo autobusem, takže máte město na dosah a přitom klidné bydlení mimo jeho ruch.

Pokud budete potřebovat pomoc s financováním koupě i následných úprav, rádi vám zajistíme výhodné řešení na míru.

Zaujala vás představa domu, který nabízí prostor, klid a velký potenciál? Ozvěte se a domluvme si osobní prohlídku. Rád vám dům ukážu.
Prodávající si vyhrazuje právo vybrat kupujícího na základě jím zvolených kritérií.

Makléř

Máte zájem o tento dům?

Tímto, v souladu s nařízením Evropského parlamentu a Rady (EU) 2016/679, v platném znění, prohlašuji, že mi je alespoň 16 let a uděluji tak svůj souhlas se zpracováním zadaných údajů (jméno, telefon, e-mail, ip adresa) společnosti B3 Technology, s.r.o., IČ: 07330600, se sídlem Novostavby 126/23, 435 11 Lom (správce dat), za účelem předání dotazu z tohoto formuláře Vámi vybranému inzerentovi a zpětného kontaktování mé osoby. Osobní údaje bude správce zpracovávat manuálně i automaticky přímo prostřednictvím svých zaměstnanců. Informace předané tímto formulářem budou uloženy v databázi správce maximálně po dobu 10 let. Odvolání souhlasu s uložením a zpracováním poskytnutých dat lze e-mailem na info@origo-reality.cz. V případě podezření na neoprávněné použití Vámi poskytnutých údajů máte právo předat podnět k šetření Úřadu pro ochranu osobních údajů. Více informací
Chystáte se prodat nemovitost?
Pomůžeme Vám!
Theleadway banner

Přihlášení k odběru

Nenechte si ujít nejnovější nabídky prodeje rodinných domů v Nechanicích.