Prodej rodinného domu, Praha - Libuš, K hájovně, 270 m2

K hájovně, Praha, Libuš

25 800 000 Kč
/za nemovitost
Hypotéka od 115 310 Kč /měs. Chci hypotéku

Parametry domu

AdresaK hájovně, Praha, Libuš
ID531785
StavbaCihlová
Stav objektuVelmi dobrý
Užitná plocha270 m2
Plocha pozemku281 m2
Plocha zahrady156 m2
Třída energetické náročnostiD - Méně úsporná
Garáž
Sklep
Výtah
Parkování

Origo partneři v Praze 4

Stěhovací služby

Výkup a prodej starého nábytku

Popis

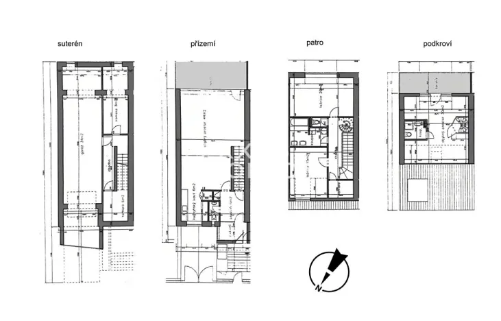
Vítejte ve světlém a prostorném domě o dispozici 4+kk s užitnou plochou 270 m², který díky promyšlenému uspořádání čtyř podlaží poskytuje komfortní a variabilní zázemí pro rodinné bydlení. Dům se nachází v žádané lokalitě Praha 4 – Libuš, v klidné ulici obklopené zelení, a zároveň s výbornou dostupností k občanské vybavenosti.

Hlavní obytné podlaží tvoří otevřený prostor o výměře 50 m², který spojuje obývací pokoj, jídelní část a kuchyňský kout se samostatným oknem. Díky velkoformátovým oknům orientovaným na jihovýchod je tento prostor přirozeně prosvětlený a vytváří velmi příjemnou atmosféru doplněnou otevřeným výhledem. Po vstupu na prostornou terasu můžete schodištěm pokračovat do zahrady – ideální místo pro odpočinek či letní posezení s přáteli. Na stejném podlaží najdete také vstupní halu se schodištěm do suterénu a samostatnou toaletu.

V dalším podlaží jsou dvě příjemně světlé ložnice a velká koupelna vybavená jak sprchovým koutem, tak i vanou a toaletou. V posledním podlaží je třetí ložnice o rozloze 30 m². Prostor je dostatečně velký a umožňuje vytvořit dvě místnosti. Nechybí zde vlastní koupelna se sprchou a toaletou a balkon s příjemným výhledem do okolí.

V suterénu je místnost s francouzským oknem na terasu, kterou můžete využít jako pracovnu nebo další pokoj. Suterén je dále prakticky rozčleněný na technické zázemí, prostor pro domácí práce, koupelnu se sprchou a toaletou a garáž o velikosti 34 m² s propojením do zahrady.


Dům byl postavený v roce 2003 a od té doby prošel citlivými úpravami, v roce 2017 bylo nově vybudované schodiště do zahrady a opravená terasa. Kuchyňská linka je vybavena spotřebiči Siemens, podlahy laminátové, okna plastová, vytápěný plynovým kotel (2015). Garáž pro dva vozy (za sebou).


Dům se nachází v klidné rezidenční čtvrti, jen pár desítek kroků od lesoparku Kamýk, který je jako stvořený pro rodinné procházky, sport i odpočinek v přírodě. V blízkém okolí je výběrová škola Prague British International School pro nižší i vyšší stupeň.

Tramvajová zastávka Observatoř Libuš je vzdálená 10 minut chůzí, odkud se dostanete do centra Prahy bez přestupu přibližně za 30 minut. Komfort cestování navíc brzy ještě vzroste díky nové stanici metra D – Nové Dvory, která bude pouhých 600 metrů od domu. Autobusová zastávka Nové Dvory je zhruba 500 metrů od domu, v blízkosti sportovního areálu Domyno Sportovní Akademie, který nabízí širokou škálu aktivit. Oblíbená je i přilehlá restaurace Novodvorka, známá svými burgery. Přibližně stejnou vzdálenost opačným směrem (500 metrů) najdete také autobusovou zastávku Cílkova, směřující ke komerční zóně s obchodem Albert a dalšími službami.

Makléř

Máte zájem o tento dům?

Tímto, v souladu s nařízením Evropského parlamentu a Rady (EU) 2016/679, v platném znění, prohlašuji, že mi je alespoň 16 let a uděluji tak svůj souhlas se zpracováním zadaných údajů (jméno, telefon, e-mail, ip adresa) společnosti B3 Technology, s.r.o., IČ: 07330600, se sídlem Novostavby 126/23, 435 11 Lom (správce dat), za účelem předání dotazu z tohoto formuláře Vámi vybranému inzerentovi a zpětného kontaktování mé osoby. Osobní údaje bude správce zpracovávat manuálně i automaticky přímo prostřednictvím svých zaměstnanců. Informace předané tímto formulářem budou uloženy v databázi správce maximálně po dobu 10 let. Odvolání souhlasu s uložením a zpracováním poskytnutých dat lze e-mailem na info@origo-reality.cz. V případě podezření na neoprávněné použití Vámi poskytnutých údajů máte právo předat podnět k šetření Úřadu pro ochranu osobních údajů. Více informací
Chystáte se prodat nemovitost?
Pomůžeme Vám!

Přihlášení k odběru

Nenechte si ujít nejnovější nabídky prodeje rodinných domů v Praze 4.