Prodej rodinného domu, Kroměříž, Raisova, 89 m2

Raisova, Kroměříž

4 950 000 Kč
/za nemovitost
včetně poplatků, včetně provize, včetně právního servisu
Hypotéka od 22 124 Kč /měs. Chci hypotéku

Parametry domu

AdresaRaisova, Kroměříž
ID845
StavbaCihlová
Stav objektuDobrý
VybavenoNe
Druh objektuŘadový
Lokalita objektuOkraj obce
Užitná plocha89 m2
Zastavěná plocha56 m2
Plocha pozemku139 m2
Plocha zahrady83 m2
Třída energetické náročnostiE - Nehospodárná
Elektřina230V
PlynPlynovod
OdpadVeřejná kanalizace
KomunikaceAsfaltová
TelekomunikaceInternet
DopravaVlak, Dálnice, Silnice, MHD, Autobus
VodaVodovod
Sklep
Výtah
Bezbarierový přístup

Origo partneři v Kroměříži

Popis

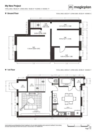
Nabízíme k prodeji řadový podsklepený rodinný dům o dispozici 4+1 v Kroměříži.

Dům disponuje předzahrádkou a malou zahradou za domem, celková plocha pozemku a zastavěná plochy včetně nádvoří je 139 m2.

Dům prochází postupnou rekonstrukcí.

V přízemí je umístěn obývací pokoj, kuchyně, koupelna s vanou, samostatné wc, komora a z kuchyně je vstup na zahradu. Prostor se dá v případě rekonstrukce propojit, kuchyni lze spojit s obývacím prostorem, případně lze zvětšit koupelnu a zrušit komoru. Variabilita je možná.

V patře se nachází ložnice s balkonem, dětský pokoj a třetí pokoj, který není dokončen, zde je vstup pod střechu. Pokoj se dá využívat např. jako pracovna.

Dům je celý podsklepený. Ve sklepě je kotelna, sušárna, prostor na kola a dílnu.
Do zahrádky za domem se vstupuje z kuchyně i ze sklepa, případně z boční uličky zadní brankou.

Plastová okna jsou opatřeny trojskly, balkonové dveře na zahradu dvojskly, dům je zateplený 20 cm vaty, sklep je suchý, elektrika v mědi, na zahrádce je pergola pro klidné posezení, střecha je nová sedlová, ohřev vody řešen bojlerem 120l.

Energetický štítek E, prodiskutujeme kroky k další úspoře.

Výhody domu: Výhody domu: 4+1 možnost variabilně si vyřešit vstupy do pokojů, umístění ve slepé uličce, tudíž minimální provoz, parkování u domu, nebo lze vybudovat stání a vydláždění před brankou, řadový dům, nízké náklady na topení, v blízkosti je dětské hřiště, supermarket Penny, benzinka OMV, dům je blízko centra Kroměříže, Podzámecké zahrady, která je nádherná a na čas s dětmi nenahraditelná, dostupnost na D1 je do 2 minut autem. Další výhodou je malý měsíční náklad do 3000,- měsíčně za plyn, elektřinu, vodu a internet, dále příznivá cena nemovitosti. Další výhody jsou nová sedlová střecha (3 roky), balkón, pergola, malá zahrada pro drobné hospodaření a posezení, dům je zateplený, vytápěný kondenzačním plynovým kotlem.

Dům je potřeba dokončit fásádní omítkou a dokončit třetí pokoj v patře.

Město Kroměříž je multikulturní město nazývané také Hanácké Athény. Arcibiskupský zámek s Podzámeckou zahradou a Květnou zahradou jsou zapsány na listinu světového kulturního dědictví UNESCO.

Ve městě je vlakové a autobusové nádraží, doprava MHD, cyklostezky, dálnice. V Kroměříži je několik základních škol, mateřských škol, základní umělecká škola, několik gymnázií, a i několik středních škol s různým zaměřením.
V Kroměříži je plnohodnotná zdravotnická péče, poliklinika a nemocnice.

Kroměříž má velmi bohatý celoroční kulturní program, je zde také spoustu restaurací a kaváren.
Najdeme tu bohaté sportovní vyžití, v centru Kroměříže je atletický stadion, zimní stadion, fotbalový stadion, krytý bazén i letní koupaliště. Je zde několik obchodních řetězců a nákupní centrum. Výstaviště Floria, které nabízí celoroční akce různého žánru a vyžití od výstav až po festivaly a jeho součástí je i zábavní centrum pro děti „Dětský svět“.

Kroměříž si prostě zamilujete. Tento domeček nabízí klidné a levné bydlení v Kroměříži.

Makléř

Máte zájem o tento dům?

Tímto, v souladu s nařízením Evropského parlamentu a Rady (EU) 2016/679, v platném znění, prohlašuji, že mi je alespoň 16 let a uděluji tak svůj souhlas se zpracováním zadaných údajů (jméno, telefon, e-mail, ip adresa) společnosti B3 Technology, s.r.o., IČ: 07330600, se sídlem Novostavby 126/23, 435 11 Lom (správce dat), za účelem předání dotazu z tohoto formuláře Vámi vybranému inzerentovi a zpětného kontaktování mé osoby. Osobní údaje bude správce zpracovávat manuálně i automaticky přímo prostřednictvím svých zaměstnanců. Informace předané tímto formulářem budou uloženy v databázi správce maximálně po dobu 10 let. Odvolání souhlasu s uložením a zpracováním poskytnutých dat lze e-mailem na info@origo-reality.cz. V případě podezření na neoprávněné použití Vámi poskytnutých údajů máte právo předat podnět k šetření Úřadu pro ochranu osobních údajů. Více informací
Chystáte se prodat nemovitost?
Pomůžeme Vám!

Přihlášení k odběru

Nenechte si ujít nejnovější nabídky prodeje rodinných domů v Kroměříži.