Prodej rodinného domu, Horní Krupá, 180 m2

Horní Krupá

4 650 000 Kč
/za nemovitost
Hypotéka od 20 783 Kč /měs. Chci hypotéku

Parametry domu

AdresaHorní Krupá
ID24335
StavbaCihlová
Stav objektuDobrý
VybavenoČástečně
Typ objektuPatrový
Druh objektuSamostatný
Užitná plocha180 m2
Zastavěná plocha143 m2
Podlahová plocha270 m2
Plocha pozemku1042 m2
Třída energetické náročnostiG - Mimořádně nehospodárná
PlynPlynovod
OdpadVeřejná kanalizace, Septik
TopeníÚstřední tuhá paliva
VodaMístní zdroj vody, Vodovod
Garáž
Sklep
Bezbarierový přístup
Parkování

Origo partneři v Horní Krupé

Popis

Přináším prodej opravdu velkého rodinného domu v malebné obci Horní Krupá. Tento patrový dům s dispozicí 9+1 nabízí dostatek prostoru a pohodlí pro větší rodinu či rovnou dvě generace...

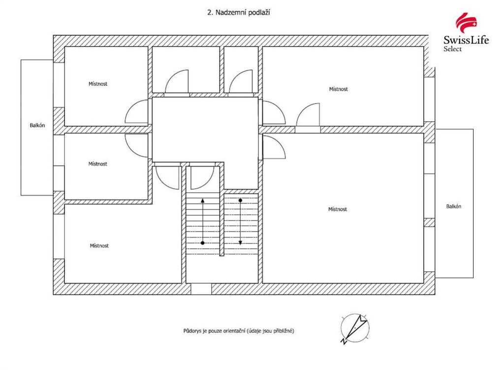
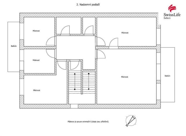
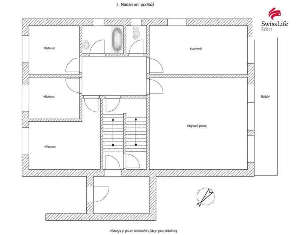
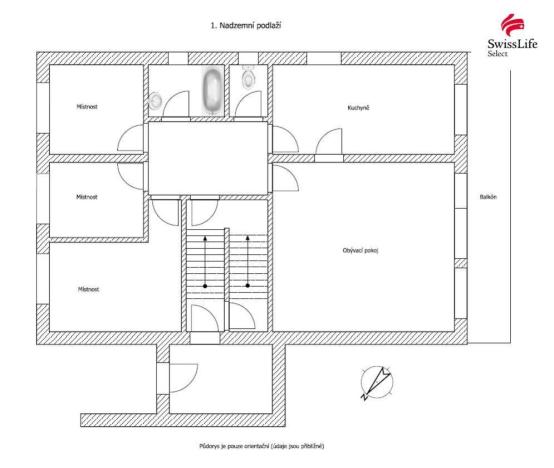
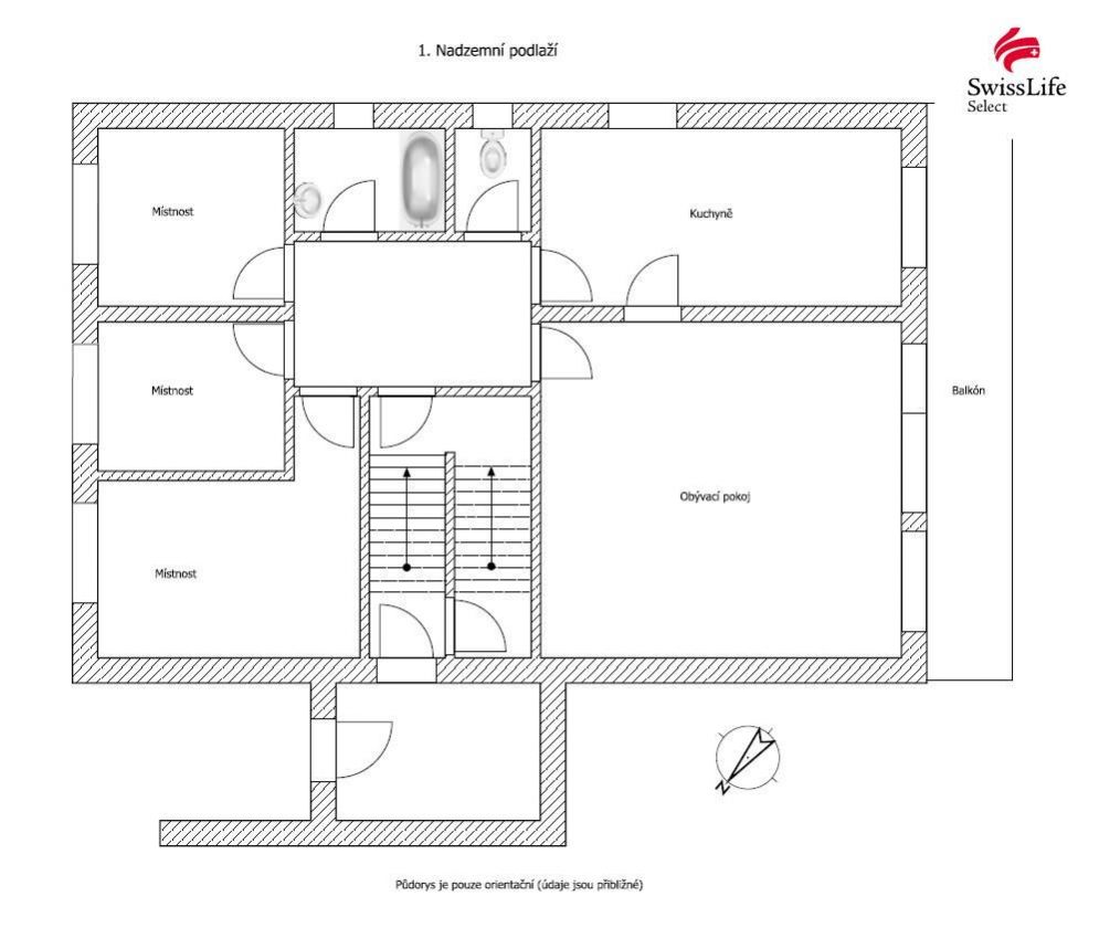
Dvě půdorysně téměř totožná podlaží dávají dohromady cca 180 m užitné plochy pro bydlení. V obou podlažích jsou dohromady 3 balkóny (k finalizaci). Celková podlahová plocha domu činí přibližně 270 m (2 obytná podlaží + suterén s garáží). Je zde také velký půdní prostor. Zastavěná plocha činí 143 m a dům se nachází na prostorném pozemku o rozloze celkem 1042 m.

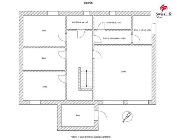
Dům byl kolaudován v roce 1992 a je ve stavu, který umožňuje úpravy a finalizaci dle vlastních představ. Součástí suterénu je několik sklepních místností a také prostorná garáž pro dvě auta o ploše 30 m s montážní jámou pro kutily. Nachází se zde také kotelna s kotlem na tuhá paliva 3. generace, který zajišťuje ohřev vody do radiátorů. Do domu je i zaveden plyn, nicméně není využíván. Ohřev užitkové vody je zajišťován bojlerem. Je také možnost přepnout vodu do domu z vlastní studny.

Obec Horní Krupá se nachází jen 10 km od města Havlíčkův Brod a stejně tak od města Chotěboř. Nabízí základní občanskou vybavenost jako např. obecní úřad, mateřská školka, hřiště, kulturní dům atd.

Pro domluvení prohlídky mne neváhejte kontaktovat.

Makléř

Máte zájem o tento dům?

Tímto, v souladu s nařízením Evropského parlamentu a Rady (EU) 2016/679, v platném znění, prohlašuji, že mi je alespoň 16 let a uděluji tak svůj souhlas se zpracováním zadaných údajů (jméno, telefon, e-mail, ip adresa) společnosti B3 Technology, s.r.o., IČ: 07330600, se sídlem Novostavby 126/23, 435 11 Lom (správce dat), za účelem předání dotazu z tohoto formuláře Vámi vybranému inzerentovi a zpětného kontaktování mé osoby. Osobní údaje bude správce zpracovávat manuálně i automaticky přímo prostřednictvím svých zaměstnanců. Informace předané tímto formulářem budou uloženy v databázi správce maximálně po dobu 10 let. Odvolání souhlasu s uložením a zpracováním poskytnutých dat lze e-mailem na info@origo-reality.cz. V případě podezření na neoprávněné použití Vámi poskytnutých údajů máte právo předat podnět k šetření Úřadu pro ochranu osobních údajů. Více informací
Chystáte se prodat nemovitost?
Pomůžeme Vám!

Přihlášení k odběru

Nenechte si ujít nejnovější nabídky prodeje rodinných domů v Horní Krupé.