Prodej pozemku, Ostrava, 46126 m2 (ID: 1785351)
Ostrava
Cena je uvedena včetně provize RK a právního servisu
Parametry pozemku
| Adresa | Ostrava | 
|---|---|
| ID | 344-NP00383 | 
| Lokalita objektu | Okraj obce | 
| Plocha pozemku | 46126 m2 | 
Popis
Nabízíme rozsáhlý stavební pozemek o celkové výměře 36.624 m² určený dle územního plánu k „bydlení v rodinných domech“. Pozemek se nachází v katastrálním území Hrušov (LV 58) a je součástí většího souboru pozemků včetně navazujících pozemků, dle územního plánu „louky“, v katastrálním území Heřmanice (LV 819) o rozloze dalších 9.502 m².
Součástí nabídky jsou tyto pozemky:
 • k. ú. Hrušov: parc. č. 1219, 1220/1, 1223/1, 1223/17 (část LV 58)
 • k. ú. Heřmanice: parc. č. 452/8, 452/14 (LV 819)
Cena: 25 636 800 Kč (700 Kč/m² – stavební)
Lokalita: ulice Technická, Ostrava – Hrušov
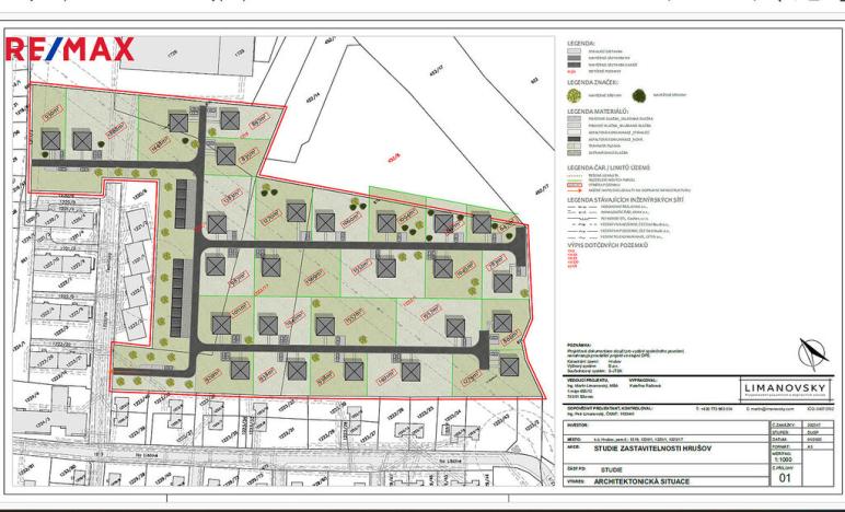
Dle architektonické studie, kterou mám k dispozici, je na pozemcích možné realizovat výstavbu až 26 rodinných domů, což představuje atraktivní investiční příležitost zejména pro developery nebo investory se zájmem o rezidenční výstavbu v Ostravě. Další možností je rozparcelování a postupná výstavba.
Nabízený pozemek se nachází v městské části Ostrava-Hrušov a navazující pozemky Ostrava-Heřmanice. Na sousedících pozemcích se nacházejí rodinné domy - ul. Na Liščině, bytové domy na ul. Technická a z další strany oplocený areál společnosti Transexpress – mezinárodní a vnitrostátní doprava – ul. Orlovská, Ostrava-Heřmanice.
Hrušov je součástí městského obvodu Slezská Ostrava a leží na severním okraji krajského města. v posledních letech se zde opakovaně objevují snahy vlastníků nemovitostí i městského obvodu o revitalizaci a rozvoj bydlení či služeb.
Výhody:
 • Dobrá dopravní dostupnost: Blízkost centra Ostravy (4 km) i dálničních tahů (nájezd na D1 - 2 km), v přilehlé ulici zastávka
 MHD,
 • Kompletní právní stav: Připraveno k okamžitému převodu vlastnictví
 • Územní plán: Výstavba rodinných domů
 • Investiční potenciál: Možnost rozparcelování a postupné výstavby
 • Oblíbená místa: ZOO Ostrava - 2,5 km, Halda Ema - 3 km, centrum Ostravy – 4 km.
 • Lokalita s rozvojovým potenciálem: CONTERA Park Ostrava D1, spousta pracovních míst a příležitostí.
Přibližně 2,5 km od nabízených pozemků, se nachází CONTERA Park Ostrava D1, kde společnost Contera a TPG Real Estate vybudovali a dále budují průmyslové haly určené pro skladování a lehkou výrobu, dále „flexispace objekty“, které kombinují skladovací prostory s administrativou nebo obchodní částí, a také prostory určené pro vědeckotechnologické účely. Mezi významné nájemce v parku patří společnosti Sportisimo, AT Computers nebo Plzeňský Prazdroj. Součástí projektu bude také technologický park. Velké průmyslové plochy jsou kombinovány s menšími flexi objekty, které poskytují zázemí také nájemcům z oblasti drobné výroby a služeb.  Park předpokládá vytvoření minimálně 700 nových pracovních míst k 31.12.2028, přičemž alespoň 280 budou tvořit místa s vysokou odborností.
 Pro více informací nebo osobní prohlídku mě neváhejte kontaktovat.
Přihlášení k odběru
Nenechte si ujít nejnovější nabídky prodeje pozemků v Ostravě.
 
                                                                                     
                                                                                     
                                                                                     
                                                                                     
                                                                                     
                                                                                     
                                                                                     
                                                                                     
                                                                                     
                                                                                     
                                                                                     
                                                                                     
                                                                                     
                                                                                     
                                                                                     
                                                                                     
                                                                                     
                                                                                     
                                                                                     
                         
         
         
         
         
         
         
        