Prodej bytu 2+kk, Kvilda, 39 m2 (ID: 1783850)

Kvilda, okres Prachatice

5 100 000 Kč

REZERVACE
Hypotéka od 22 794 Kč /měs. Chci hypotéku

Parametry bytu

AdresaKvilda, okres Prachatice
ID2025022
StavbaCihlová
Stav objektuDobrý
VlastnictvíOsobní
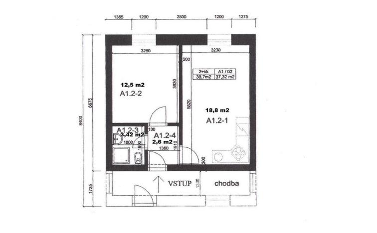
Užitná plocha39 m2
Třída energetické náročnostiB - Velmi úsporná

Origo partneři v Kvildě

Popis

REZERVACE
Nabízíme k prodeji útulný byt o dispozici 2+kk o velikosti 39 m², situovaný v malebné lokalitě Kvilda, přímo v srdci Národního parku Šumava. Bytový dům, v kterém se nabízený byt nachází, byl zkolaudován v roce 2006. Je ideální volbou pro ty, kteří hledají klidné a pohodlné bydlení v přírodě s výborným přístupem k turistickým a sportovním aktivitám. Kvilda je místem pro milovníky přírody a aktivního odpočinku – v blízkosti cyklostezky, běžkařské trasy a turistické chodníky. Klidná a žádaná lokalita, s výbornou dostupností do okolních míst a přírodních krás.
Popis bytu: Nachází se v přízemí a má dispozici 2+kk, která nabízí praktické a pohodlné uspořádání prostoru. Byt je nabízen včetně vybavení, což znamená okamžitou možnost k nastěhování nebo pronájmu. Dřevěná euro okna zajišťují skvělou tepelnou a zvukovou izolaci. Centrální vytápění pomocí elektrokotle, včetně přípravy teplé vody (TUV), poskytuje komfortní a efektivní způsob vytápění. K bytu náleží venkovní parkovací místo, které je zajištěno pomocí parkovací karty. K dispozici je společná kolárna/lyžárna, což je skvělé pro milovníky cyklistiky a zimních sportů. Dům, ve kterém se byt nachází, má celkem 17 bytových jednotek, přičemž na patře jsou pouze tři byty, což zajišťuje klidné a příjemné prostředí. Elektřina je dodávána společností E. ON, voda a teplo jsou měřitelné a rozpočítávají se dle spotřeby. V domě je zajištěn společný úklid, včetně odklízení sněhu v zimních měsících. Nízké měsíční náklady na bydlení, díky efektivnímu vytápění a měřitelnosti nákladů na vodu a teplo. Tento byt je ideální pro ty, kteří hledají komfortní bydlení v oblasti s bohatými přírodními a sportovními možnostmi, nebo jako investiční příležitost v oblasti, která přitahuje turisty po celý rok. Platba do fondu oprav: 3321,-Kč + energie/ měs.

Makléř

Máte zájem o tento byt?

Tímto, v souladu s nařízením Evropského parlamentu a Rady (EU) 2016/679, v platném znění, prohlašuji, že mi je alespoň 16 let a uděluji tak svůj souhlas se zpracováním zadaných údajů (jméno, telefon, e-mail, ip adresa) společnosti B3 Technology, s.r.o., IČ: 07330600, se sídlem Novostavby 126/23, 435 11 Lom (správce dat), za účelem předání dotazu z tohoto formuláře Vámi vybranému inzerentovi a zpětného kontaktování mé osoby. Osobní údaje bude správce zpracovávat manuálně i automaticky přímo prostřednictvím svých zaměstnanců. Informace předané tímto formulářem budou uloženy v databázi správce maximálně po dobu 10 let. Odvolání souhlasu s uložením a zpracováním poskytnutých dat lze e-mailem na info@origo-reality.cz. V případě podezření na neoprávněné použití Vámi poskytnutých údajů máte právo předat podnět k šetření Úřadu pro ochranu osobních údajů. Více informací
Chystáte se prodat nemovitost?
Pomůžeme Vám!

Přihlášení k odběru

Nenechte si ujít nejnovější nabídky prodeje bytů 2+kk v Kvildě.