Prodej rodinného domu, Nymburk, 161 m2

Nymburk

9 998 000 Kč
/za nemovitost
včetně DPH
Hypotéka od 44 685 Kč /měs. Chci hypotéku

Parametry domu

AdresaNymburk
ID01492
StavbaCihlová
Stav objektuProjekt
Druh objektuSamostatný
Užitná plocha161 m2
Plocha pozemku848 m2
Třída energetické náročnostiB - Velmi úsporná
Ukazatel energetické náročnosti102 kWh/m2 za rok

Origo partneři v Nymburku

Popis

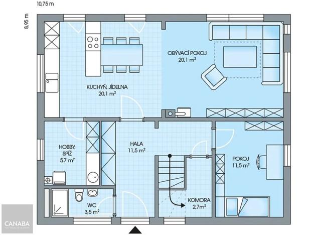
Prodám nízkoenergetický rodinný dům v Nymburce o dispozici 6+1 s podlahovou plochou 160,6 m².

Bohatý vnitřní prostor zahrnuje v přízemí obývací pokoj s prakticky odděleným kuchyňským koutem, pokoj pro hosty a v patře ložnici, dva dětské pokoje a šatnu. Součástí rodinného domu bude také technická místnost, samostatné WC a samostatná koupelna.

Za uvedenou cenu bude dům kompletně stavebně dokončen včetně vytápění, obkladů, sanitárního vybavení, podlahových krytin, krbového komínu a vnitřních dveří.

Pozemek je plně zasíťovaný – připravený ihned k výstavbě rodinného domu. V celkové ceně není zahrnuta spodní stavba a domovní přípojky inženýrských sítí.

Uvedená cena je včetně pozemku a DPH. Doba výstavby je 4 - 5 měsíců.

Rovinatý stavební pozemek o výměře 848 m² se nachází v atraktivní a klidné městské rezidenční čtvrti Drahelice města Nymburk. Lokalita nabízí ideální kombinaci klidného bydlení a výborné dostupnosti do centra města Nymburk. Komplexní občanská vybavenost a výborná dostupnost do Prahy je samozřejmostí.

Makléř

Máte zájem o tento dům?

Tímto, v souladu s nařízením Evropského parlamentu a Rady (EU) 2016/679, v platném znění, prohlašuji, že mi je alespoň 16 let a uděluji tak svůj souhlas se zpracováním zadaných údajů (jméno, telefon, e-mail, ip adresa) společnosti B3 Technology, s.r.o., IČ: 07330600, se sídlem Novostavby 126/23, 435 11 Lom (správce dat), za účelem předání dotazu z tohoto formuláře Vámi vybranému inzerentovi a zpětného kontaktování mé osoby. Osobní údaje bude správce zpracovávat manuálně i automaticky přímo prostřednictvím svých zaměstnanců. Informace předané tímto formulářem budou uloženy v databázi správce maximálně po dobu 10 let. Odvolání souhlasu s uložením a zpracováním poskytnutých dat lze e-mailem na info@origo-reality.cz. V případě podezření na neoprávněné použití Vámi poskytnutých údajů máte právo předat podnět k šetření Úřadu pro ochranu osobních údajů. Více informací
Chystáte se prodat nemovitost?
Pomůžeme Vám!

Přihlášení k odběru

Nenechte si ujít nejnovější nabídky prodeje rodinných domů v Nymburku.