Prodej bytu 5+kk, Praha - Modřany, Kolmanova, 136 m2

Kolmanova, Praha, Modřany

25 180 000 Kč
/za nemovitost
Zvýhodněná letní nabídka
Hypotéka od 112 539 Kč /měs. Chci hypotéku

Parametry bytu

AdresaKolmanova, Praha, Modřany
IDMOCU_BA_24401
StavbaSmíšená
Stav objektuNovostavba
Patro4.
VlastnictvíOsobní
Užitná plocha136 m2
Třída energetické náročnostiB - Velmi úsporná
Ukazatel energetické náročnosti69.4 kWh/m2 za rok
PlynPlynovod
OdpadTrativod
KomunikaceAsfaltová
TelekomunikaceInternet
DopravaVlak, Silnice, Autobus
VodaVodovod
Terasa
Parkování

Origo partneři v Praze 4

Stěhovací služby

Výkup a prodej starého nábytku

Popis

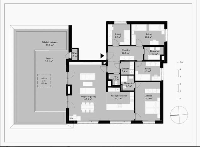
BJ 5+kk 135,9 m2 s terasou a střešní zahradou se nachází v 4. NP, v obytném bloku A.
Navíc s garážovým stáním a sklepem v ceně.

Dispozice bytu:
Kuchyňský kout 10,7 m2
Obývací pokoj 47 m2
Ložnice 18,5 m2
Pokoj 8,9 m2 / Pokoj 13,1 m2 / Pokoj 9,2 m2
Chodba 13,4 m2
Střešní zahrada 59,9 m2 /
Komora 3,4 m2 / Sklad 1,5 m2
Koupelna 4,5 m2 / Koupelna 3,7 m2 / WC 2 m2

Bytový dům v kostce:
112 bytových jednotek
Průkaz energetické náročnosti budovy PEN B - velmi úsporná.
Vysoký standard výbavy (vyšší dveře, prémiové zařizovací předměty a prémiové dřevěné podlahy)
Snížené parapety byty provzdušní a prosvětlí.
Chytrý videotelefon, který umožní otevírání vstupních dveří čipem, lze si nastavit face ID a pokud přijde návštěva, je možné vytvořit přístupový QR kód.
Rekuperace, která kromě tepelného komfortu zajišťuje čerstvý vzduch.
Nadstandardní zdravé a udržitelné materiály s certifikáty EPD, FSC a PEF.
24 fototermických panelů

Makléř

Máte zájem o tento byt?

Tímto, v souladu s nařízením Evropského parlamentu a Rady (EU) 2016/679, v platném znění, prohlašuji, že mi je alespoň 16 let a uděluji tak svůj souhlas se zpracováním zadaných údajů (jméno, telefon, e-mail, ip adresa) společnosti B3 Technology, s.r.o., IČ: 07330600, se sídlem Novostavby 126/23, 435 11 Lom (správce dat), za účelem předání dotazu z tohoto formuláře Vámi vybranému inzerentovi a zpětného kontaktování mé osoby. Osobní údaje bude správce zpracovávat manuálně i automaticky přímo prostřednictvím svých zaměstnanců. Informace předané tímto formulářem budou uloženy v databázi správce maximálně po dobu 10 let. Odvolání souhlasu s uložením a zpracováním poskytnutých dat lze e-mailem na info@origo-reality.cz. V případě podezření na neoprávněné použití Vámi poskytnutých údajů máte právo předat podnět k šetření Úřadu pro ochranu osobních údajů. Více informací
Chystáte se prodat nemovitost?
Pomůžeme Vám!

Přihlášení k odběru

Nenechte si ujít nejnovější nabídky prodeje bytů 5+kk v Praze 4.