Prodej bytu 2+kk, Dolní Branná, 52 m2

Dolní Branná, okres trutnov

3 998 000 Kč
/za nemovitost
Parkovací stání lze koupit za 150 000, Kč
Hypotéka od 17 869 Kč /měs. Chci hypotéku

Parametry bytu

AdresaDolní Branná, okres trutnov
ID964317
StavbaCihlová
Stav objektuNovostavba
Patro3. z 4
VlastnictvíOsobní
Užitná plocha52 m2
Podlahová plocha52 m2
Třída energetické náročnostiC - Úsporná
Elektřina230V
PlynPlynovod
OdpadČOV pro celý objekt
TopeníLokální plynové
DopravaVlak, Silnice
VodaVodovod
Sklep
Lodžie
Výtah
Parkování

Origo partneři v Dolní Branné

Popis

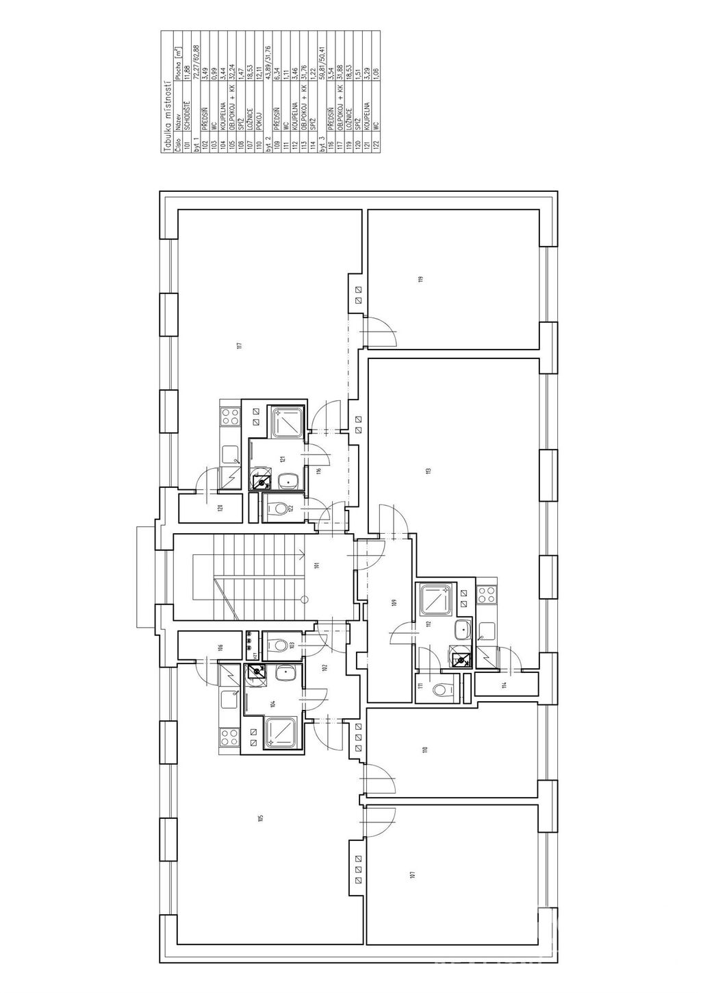
Prodej bytu 2+kk s lodžií v Podkrkonošší – Dolní Branná

Hledáte stylové a úsporné bydlení v klidné lokalitě s výbornou dostupností do města? Pak vás jistě zaujme tento byt v novém projektu Byty v Dolní Branné, pouhých 5 minut jízdy od Vrchlabí!

Byt o dispozici 2+kk a výměře 52 m² se nachází ve zcela zrekonstruovaném cihlovém domě se třemi nadzemními podlažími. Tento byt se nachází v podkroví domu. Projekt je navržen s důrazem na kvalitu, moderní design a energetickou efektivitu (třída PENB B).

Co vám tento byt nabízí:

Světlý obývací pokoj s přípravou na kuchyňskou linku

Pohodlnou ložnici s dostatkem prostoru pro skříně i postel

Stylovou koupelnu s moderním vybavením

Lodžie výhled do okolí

Velký sklep – ideální pro úložné prostory, hobby nebo dílnu

Vyhrazené parkovací místo přímo u domu

Možnost využití zahrady – pro relax, grilování nebo pěstování

Perfektní lokalita pro aktivní i klidný život:

Dolní Branná nabízí harmonii přírody a občanské vybavenosti – mateřská a základní škola, obchod, pošta, autobus i vlak jsou v docházkové vzdálenosti. Města Vrchlabí a Jilemnice pak doplňují vše ostatní – lékaři, restaurace, sportoviště i pracovní příležitosti.
Milovníci sportu a přírody ocení bohaté možnosti turistiky, cyklistiky, běžek, lyžování i relaxace.
Termín dokončení: září 2025

Byt je vhodný jak pro vlastní bydlení, tak jako investice na pronájem.

Zajistěte si svůj nový domov v podhůří Krkonoš – spojení přírody, komfortu a dostupnosti, které jen tak nenajdete.

Kontaktujte nás pro více informací nebo domluvení prohlídky!

Makléř

Máte zájem o tento byt?

Tímto, v souladu s nařízením Evropského parlamentu a Rady (EU) 2016/679, v platném znění, prohlašuji, že mi je alespoň 16 let a uděluji tak svůj souhlas se zpracováním zadaných údajů (jméno, telefon, e-mail, ip adresa) společnosti B3 Technology, s.r.o., IČ: 07330600, se sídlem Novostavby 126/23, 435 11 Lom (správce dat), za účelem předání dotazu z tohoto formuláře Vámi vybranému inzerentovi a zpětného kontaktování mé osoby. Osobní údaje bude správce zpracovávat manuálně i automaticky přímo prostřednictvím svých zaměstnanců. Informace předané tímto formulářem budou uloženy v databázi správce maximálně po dobu 10 let. Odvolání souhlasu s uložením a zpracováním poskytnutých dat lze e-mailem na info@origo-reality.cz. V případě podezření na neoprávněné použití Vámi poskytnutých údajů máte právo předat podnět k šetření Úřadu pro ochranu osobních údajů. Více informací
Chystáte se prodat nemovitost?
Pomůžeme Vám!

Přihlášení k odběru

Nenechte si ujít nejnovější nabídky prodeje bytů 2+kk v Dolní Branné.