Prodej rodinného domu, Moravany, Na Vyhlídce, 107 m2

Na Vyhlídce, Moravany

10 950 000 Kč
/za nemovitost
Hypotéka od 48 940 Kč /měs. Chci hypotéku

Parametry domu

AdresaNa Vyhlídce, Moravany
IDN6519
StavbaCihlová
Stav objektuVelmi dobrý
VybavenoAno
Typ objektuPatrový
Druh objektuV bloku
Lokalita objektuKlidná část obce
Užitná plocha107 m2
Zastavěná plocha59 m2
Podlahová plocha107 m2
Plocha pozemku152 m2
Třída energetické náročnostiC - Úsporná
Elektřina230V
TopeníÚstřední dálkové
Výtah
Parkování

Origo partneři v Moravanech

Popis

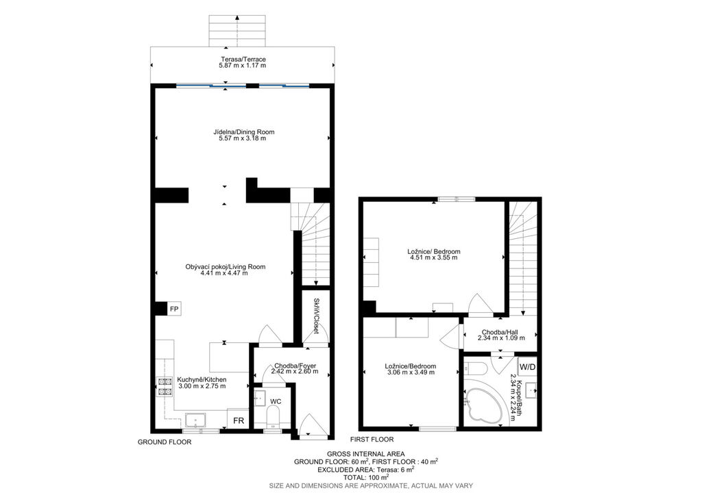
Nabízíme k prodeji velmi dobře udržovaný řadový rodinný dům o dispozici 3+kk s možností úpravy na plnohodnotné 4+kk. Celková užitná plocha domu činí cca 107 m² (včetně vedlejších a krytých ploch), čistá obytná plocha je přibližně 97 m². Dům se nachází v klidné ulici Na Vyhlídce v žádané lokalitě Moravany u Brna. Celková výměra pozemku činí 152 m², zastavěná plocha domu je 59 m².

Součástí pozemku jsou dvě parkovací stání, z nichž jedno je zastřešené. Na dvoře se nachází praktický zahradní domek na nářadí. Dům má dvě nadzemní podlaží a je napojen na všechny inženýrské sítě – voda, kanalizace, elektřina a plyn. Vytápění zajišťuje plynový kotel značky Baxi, doplněný o kvalitní krbová kamna značky HASE s akumulačními cihlami, které výrazně zvyšují tepelný komfort a energetickou úsporu.

V přízemí je umístěn kuchyňský kout s linkou osazenou spotřebiči značky Mora – elektrickou troubou, plynovou varnou deskou, digestoří a mikrovlnnou troubou. Lednice s mrazákem jsou značky Gorenje. Na kuchyňský kout navazuje obývací část s krbem, pohovkou, konferenčním stolkem, televizí a dalšími prvky vybavení. Dále plynule přecházíme do jídelní části s pohodlnými křesílky, odkud je přímý vstup na dvůr vhodný pro venkovní posezení a grilování. Mezi obývací a jídelní částí je konstrukčně připravena možnost vybudování příčky, čímž lze vytvořit další menší pokoj a změnit dispozici domu na 4+kk.

V patře se nachází hlavní ložnice s manželskou postelí a vestavěnými skříněmi. Druhý pokoj může sloužit jako dětský pokoj nebo pracovna. Koupelna je vybavena rohovou vanou, umyvadlem, přípojkou na pračku, sušičkou a druhou toaletou.

Dům se nachází v lokalitě s velmi dobrou dostupností do Brna a zároveň v klidném rezidenčním prostředí. V pěší vzdálenosti je základní i mateřská škola, obchody, dětská hřiště, restaurace a nákupní centrum Futurum je vzdálené pouhých pár minut jízdy autem.

Nový vlastník tak může převzít existující nájemní vztah a využít nemovitost jako investiční s okamžitým výnosem, nebo si ji po skončení smlouvy přizpůsobit k vlastnímu bydlení.

Současné měsíční zálohy na energie a služby (stav k 1. 11. 2025):

– Voda: 890 Kč
– Elektřina: 1 830 Kč
– Plyn: 1 470 Kč

Dle doloženého průkazu energetické náročnosti spadá nemovitost do třídy C – úsporná.

Makléř

Máte zájem o tento dům?

Tímto, v souladu s nařízením Evropského parlamentu a Rady (EU) 2016/679, v platném znění, prohlašuji, že mi je alespoň 16 let a uděluji tak svůj souhlas se zpracováním zadaných údajů (jméno, telefon, e-mail, ip adresa) společnosti B3 Technology, s.r.o., IČ: 07330600, se sídlem Novostavby 126/23, 435 11 Lom (správce dat), za účelem předání dotazu z tohoto formuláře Vámi vybranému inzerentovi a zpětného kontaktování mé osoby. Osobní údaje bude správce zpracovávat manuálně i automaticky přímo prostřednictvím svých zaměstnanců. Informace předané tímto formulářem budou uloženy v databázi správce maximálně po dobu 10 let. Odvolání souhlasu s uložením a zpracováním poskytnutých dat lze e-mailem na info@origo-reality.cz. V případě podezření na neoprávněné použití Vámi poskytnutých údajů máte právo předat podnět k šetření Úřadu pro ochranu osobních údajů. Více informací
Chystáte se prodat nemovitost?
Pomůžeme Vám!

Přihlášení k odběru

Nenechte si ujít nejnovější nabídky prodeje rodinných domů v Moravanech (okr. Brno-venkov).