Prodej rodinného domu, Moravany - Turov, 550 m2

Turov

9 500 000 Kč
/za nemovitost
Hypotéka od 42 459 Kč /měs. Chci hypotéku

Parametry domu

AdresaTurov
ID24316
StavbaCihlová
Stav objektuDobrý
VybavenoAno
Typ objektuPatrový
Druh objektuSamostatný
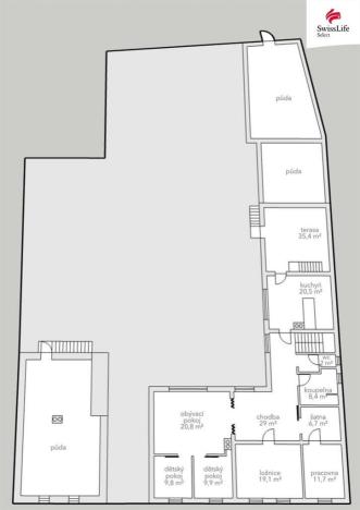
Užitná plocha550 m2
Zastavěná plocha600 m2
Podlahová plocha550 m2
Plocha pozemku2537 m2
Elektřina230V, 400V
PlynIndividuální
OdpadSeptik
TopeníLokální plynové
KomunikaceDlážděná
TelekomunikaceInternet
DopravaDálnice, Silnice, Autobus
VodaVodovod
Garáž
Sklep
Bezbarierový přístup
Parkování

Origo partneři v Moravanech

Popis

Nabízíme k prodeji rodinný dům s 2 prostornými bytovými jednotkami a spoustou vedlejších staveb vhodných pro práci, parkování a uložení vetších movitých věcí i trávení volného času s rodinou a přáteli.
Dům se nachází v obci Turov, která spadá pod obec Moravany v dojezdové vzdálenosti 5 minut od nájezdu na D35.
V občanské vybavenosti obce je základní i mateřská škola v Moravanech, prodejny potravin, sportovní a zájmové kluby, pošta, praktický lékař, zubní péče, přírodní koupaliště se zázemím, prodejna stavebnin a pracovní příležitosti.
K domu patří i pozemky, které jso uv územním plánu určené k zástavbě vesnického typu a částečně jako zeleň.
Dům bude k nastěhování po převodu na nového majitele.

Makléř

Máte zájem o tento dům?

Tímto, v souladu s nařízením Evropského parlamentu a Rady (EU) 2016/679, v platném znění, prohlašuji, že mi je alespoň 16 let a uděluji tak svůj souhlas se zpracováním zadaných údajů (jméno, telefon, e-mail, ip adresa) společnosti B3 Technology, s.r.o., IČ: 07330600, se sídlem Novostavby 126/23, 435 11 Lom (správce dat), za účelem předání dotazu z tohoto formuláře Vámi vybranému inzerentovi a zpětného kontaktování mé osoby. Osobní údaje bude správce zpracovávat manuálně i automaticky přímo prostřednictvím svých zaměstnanců. Informace předané tímto formulářem budou uloženy v databázi správce maximálně po dobu 10 let. Odvolání souhlasu s uložením a zpracováním poskytnutých dat lze e-mailem na info@origo-reality.cz. V případě podezření na neoprávněné použití Vámi poskytnutých údajů máte právo předat podnět k šetření Úřadu pro ochranu osobních údajů. Více informací
Chystáte se prodat nemovitost?
Pomůžeme Vám!

Přihlášení k odběru

Nenechte si ujít nejnovější nabídky prodeje rodinných domů v Moravanech (okr. Pardubice).