Prodej pozemku pro bydlení, Říčany, Buková, 589 m2 (ID: 1778261)

Buková, Říčany

9 400 Kč
/za metr čtvereční
Hypotéka od 42 Kč /měs. Chci hypotéku

Parametry pozemku

AdresaBuková, Říčany
ID4
Plocha pozemku589 m2
Elektřina230V, 400V
DopravaVlak, Dálnice, Silnice, MHD, Autobus
VodaStudna

Origo partneři v Říčanech

Popis

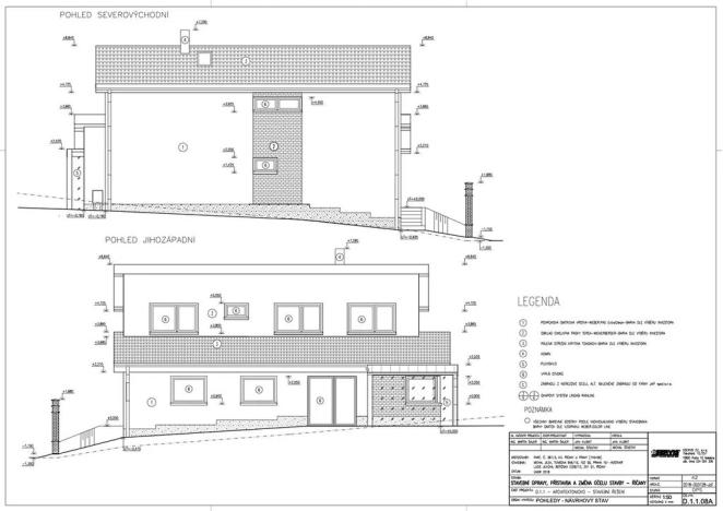
Jedná se o prodej stavebního pozemku o rozloze 589 m2, na kterém se nachází ruina rekreační chaty. V minulosti již bylo vydáno stavební povolení na stavbu rodinného domu se základnou 121 m2 a dispozicí 4+1. Tento projekt současně s veškerými povoleními a žádostmi je součástí kupní ceny. Pozemek je umístěn v naprosto klidné a atraktivní lokalitě ul. Buková, obec Říčany u Prahy. Tato nabídka jistě osloví ty zájemce, kteří hledají klidnou lokalitu v blízkosti přírody a lesa a přitom chtějí čerpat výhody velkoměsta. Bližší informace na tel.

Makléř

Máte zájem o tento pozemek?

Tímto, v souladu s nařízením Evropského parlamentu a Rady (EU) 2016/679, v platném znění, prohlašuji, že mi je alespoň 16 let a uděluji tak svůj souhlas se zpracováním zadaných údajů (jméno, telefon, e-mail, ip adresa) společnosti B3 Technology, s.r.o., IČ: 07330600, se sídlem Novostavby 126/23, 435 11 Lom (správce dat), za účelem předání dotazu z tohoto formuláře Vámi vybranému inzerentovi a zpětného kontaktování mé osoby. Osobní údaje bude správce zpracovávat manuálně i automaticky přímo prostřednictvím svých zaměstnanců. Informace předané tímto formulářem budou uloženy v databázi správce maximálně po dobu 10 let. Odvolání souhlasu s uložením a zpracováním poskytnutých dat lze e-mailem na info@origo-reality.cz. V případě podezření na neoprávněné použití Vámi poskytnutých údajů máte právo předat podnět k šetření Úřadu pro ochranu osobních údajů. Více informací
Chystáte se prodat nemovitost?
Pomůžeme Vám!