Prodej rodinného domu, Praha - Hostivař, Hornoměcholupská, 537 m2

Hornoměcholupská, Praha, Hostivař

Rezervováno
Cena na vyžádání
/za nemovitost
Získejte výhodnou HYPOTÉKU Chci hypotéku

Parametry domu

StavRezervováno
AdresaHornoměcholupská, Praha, Hostivař
StavbaCihlová
Stav objektuPo rekonstrukci
Druh objektuŘadový
Lokalita objektuKlidná část obce
Užitná plocha537 m2
Plocha pozemku366 m2
Třída energetické náročnostiG - Mimořádně nehospodárná
Elektřina230V
PlynPlynovod
OdpadVeřejná kanalizace
KomunikaceAsfaltová
TelekomunikaceTelefon, Internet, Kabelová televize
DopravaVlak, Dálnice, Silnice, MHD
VodaVodovod
Topné tělesoRadiátory
Zdroj topeníPlynový kotel
Zdroj teplé vodyPlynový kotel
Garáž
Výtah
Bezbarierový přístup

Origo partneři v Praze 10

Stěhovací služby

Výkup a prodej starého nábytku

Popis

REZERVOVÁNO! Ať už hledáte velký rodinný dům, kombinaci vlastního bydlení a podnikání, prostory pro sídlo vlastní firmy, nebo obrovskou investiční příležitost, která je již řadu let zavedená, zbystřete!

Tento rodinný dům zahrnuje:

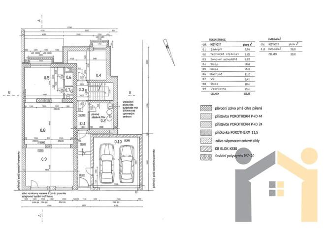
- nebytový prostor o velikosti 74,46 m2 (1.NP, přístup z ulice),
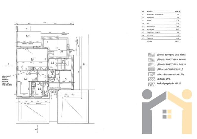
- byt 3+kk o velikosti 79,95 m2 s terasou 14,00 m2 a zahradou 366 m2 (2.NP),
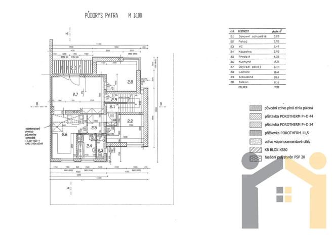
- byt 3+kk o velikosti 76,32 m2 s balkonem 8,10 m2 (3.NP),
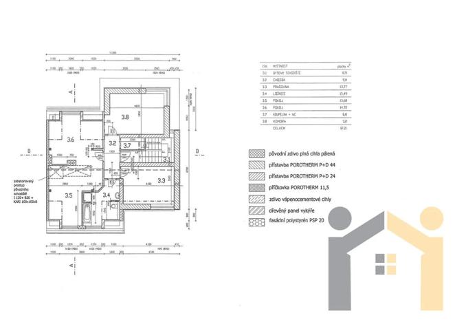
- byt 3+kk o velikosti 78,42 m2 (4.NP, podkroví),
- dvojgaráž o velikosti 33 m2 a
- technické zázemí a sklad.
Celková užitná plocha domu včetně vnitřního schodišťového prostoru, zádveří, technického zázemí, atd. je 536,67 m2.
Aktuálně jsou všechny prostory pronajaty dlouhodobým a seriózním nájemníkům s dobrou platební morálkou.
Dům byl kompletně a nadstandardně zrekonstruován, přístavba byla realizována v roce 2007. Objekt je připojen na veškeré inženýrské sítě a na střeše jsou nainstalované solární panely. Celý objekt je zabezpečen EZS-Jablotron.

Nestandardní a multifunkční rodinný (bytový) dům se nachází v ulici Hornoměcholupská, Praha 15 – Hostivař. Poloha domu je skvělá jak z hlediska občanské vybavenosti, tak i z hlediska dopravní dostupnosti. A orientace zahrady domu do klidné a málo frekventované ulice je vyloženě „třešničkou na dortu“. V rámci pár minut chůze je k dispozici autobusová zastávka „K Lesoparku“, „Gercenova“, „Řepčická“. Stejně tak i MŠ, ZŠ, Albert, Lidl, lékárna, dětská hřiště, sportoviště, plavecký bazén, lesopark Hostivař, vodní nádrž Hostivař s koupalištěm, Galerie Golf Hostivař, restaurace, cukrárny, kavárny. O něco dále, ne však daleko, se nachází tramvajová zastávka „Hostivařská“ a „Nádraží Hostivař“, vlakové nádraží Praha-Hostivař a OC VIVO! Hostivař. Nájezd na Jižní spojku 8min., metro „A“ 12min. autobusem. Kompletní občanská vybavenost, skvělá dopravní dostupnost a nadstandardní zeleň v blízkosti domu.

Cena: 33.000.000,- Kč (včetně provize RK, právních služeb a advokátní úschovy kupní ceny). Nemovitost je v osobním vlastnictví a lze ji bez problému financovat hypotečním úvěrem. V případě více zájemců o koupi si majitel nemovitosti vyhrazuje právo učinit výběr kupujících dle svých priorit. PENB: „G“ – není vypracován, ale objekt není energeticky náročný. Nicméně informace o energetické náročnosti předkládáme prostřednictvím vyúčtování za předchozí tři roky. Pro dotazy či domluvení prohlídky jsem kdykoli k dispozici. Budu se těšit na osobní setkání při prohlídce této netradiční, ale velmi lukrativní nemovitosti.

Makléř

Máte zájem o tento dům?

Tímto, v souladu s nařízením Evropského parlamentu a Rady (EU) 2016/679, v platném znění, prohlašuji, že mi je alespoň 16 let a uděluji tak svůj souhlas se zpracováním zadaných údajů (jméno, telefon, e-mail, ip adresa) společnosti B3 Technology, s.r.o., IČ: 07330600, se sídlem Novostavby 126/23, 435 11 Lom (správce dat), za účelem předání dotazu z tohoto formuláře Vámi vybranému inzerentovi a zpětného kontaktování mé osoby. Osobní údaje bude správce zpracovávat manuálně i automaticky přímo prostřednictvím svých zaměstnanců. Informace předané tímto formulářem budou uloženy v databázi správce maximálně po dobu 10 let. Odvolání souhlasu s uložením a zpracováním poskytnutých dat lze e-mailem na info@origo-reality.cz. V případě podezření na neoprávněné použití Vámi poskytnutých údajů máte právo předat podnět k šetření Úřadu pro ochranu osobních údajů. Více informací
Chystáte se prodat nemovitost?
Pomůžeme Vám!

Přihlášení k odběru

Nenechte si ujít nejnovější nabídky prodeje rodinných domů v Praze 10.