Pronájem skladu, Lišov, Hůrecká, 1768 m2 (ID: 1776855)

Hůrecká, Lišov

147 000 Kč
/za měsíc
včetně právního servisu
Získejte výhodnou HYPOTÉKU Chci hypotéku

Parametry nemovitosti

AdresaHůrecká, Lišov
ID954 Lišov B sklad
StavbaCihlová
Stav objektuVelmi dobrý
Lokalita objektuOkraj obce
Užitná plocha1768 m2
Třída energetické náročnostiG - Mimořádně nehospodárná
Elektřina230V, 400V
OdpadVeřejná kanalizace
KomunikaceAsfaltová
TelekomunikaceTelefon, Internet
DopravaDálnice, Silnice, Autobus
VodaVodovod
Topné tělesoJiné
Zdroj topeníCentrální dálkové
Zdroj teplé vodyCentrální dálkový ohřev
Parkování

Origo partneři v Lišově

Popis

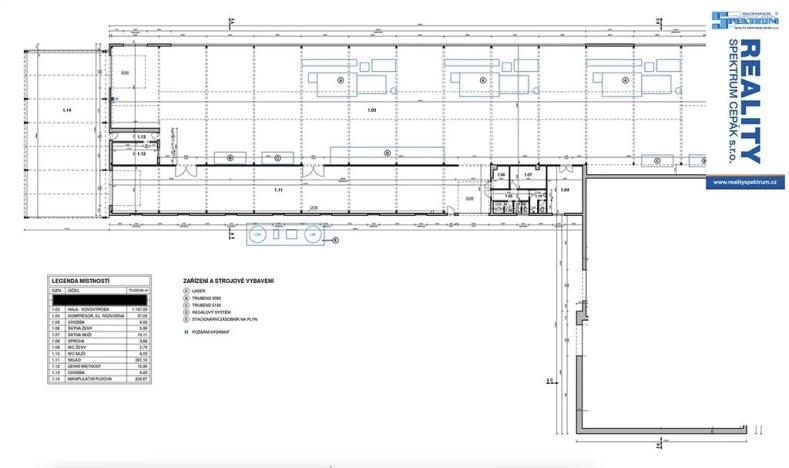
Pronájem vytápěné provozní haly vhodné pro skladování. Celková využitelná výměra budovy je 1.543m2. Součástí budovy je denní místnosti pro zaměstnance a sociální zařízení. Samostatný sklad a kompresorovna. Hlavní provozní hala o výměře 1.167m2 s betonovou podlahou o nosnosti 2.000kg/m2 má rozměry 78m x 15m. Provozní výška 6,5m. Vjezdová vrata do budovy mají rozměr 4,1m šířka x 4,3m výška. V současné době je hala využita pro těžkou kovovýrobu. Rozměry jednotlivých částí vč. plánu současného využití viz. fotografie. Elektrický příkon 420kW (600A), je možné i navýšení. Vytápění moderními plynovými topidly ROBUR s možností lokálního nastavování. K dispozici je krytý nákladový prostor o výměře 225m2 a další venkovní manipulační plochy. Přístup do areálu je 24/7. Areál má stálou ostrahu a vrátnici. Možnost pronájmu dalších prostorů v areálu (administrativa, výroba, manipulační plochy) .

Makléř

Máte zájem o tuto nemovistost?

Tímto, v souladu s nařízením Evropského parlamentu a Rady (EU) 2016/679, v platném znění, prohlašuji, že mi je alespoň 16 let a uděluji tak svůj souhlas se zpracováním zadaných údajů (jméno, telefon, e-mail, ip adresa) společnosti B3 Technology, s.r.o., IČ: 07330600, se sídlem Novostavby 126/23, 435 11 Lom (správce dat), za účelem předání dotazu z tohoto formuláře Vámi vybranému inzerentovi a zpětného kontaktování mé osoby. Osobní údaje bude správce zpracovávat manuálně i automaticky přímo prostřednictvím svých zaměstnanců. Informace předané tímto formulářem budou uloženy v databázi správce maximálně po dobu 10 let. Odvolání souhlasu s uložením a zpracováním poskytnutých dat lze e-mailem na info@origo-reality.cz. V případě podezření na neoprávněné použití Vámi poskytnutých údajů máte právo předat podnět k šetření Úřadu pro ochranu osobních údajů. Více informací
Chystáte se prodat nemovitost?
Pomůžeme Vám!

Přihlášení k odběru

Nenechte si ujít nejnovější nabídky pronájmu skladů v Lišově (okr. České Budějovice).