Pronájem výrobních prostor, Lišov, Hůrecká, 2357 m2 (ID: 1776854)

Hůrecká, Lišov

216 000 Kč
/za měsíc
včetně právního servisu
Získejte výhodnou HYPOTÉKU Chci hypotéku

Parametry nemovitosti

AdresaHůrecká, Lišov
ID953 Lišov S výroba
StavbaCihlová
Stav objektuVelmi dobrý
Lokalita objektuOkraj obce
Užitná plocha2357 m2
Třída energetické náročnostiC - Úsporná
Ukazatel energetické náročnosti702 kWh/m2 za rok
Elektřina230V, 400V
OdpadVeřejná kanalizace
KomunikaceAsfaltová
TelekomunikaceTelefon, Internet
DopravaDálnice, Silnice, Autobus
VodaVodovod
Topné tělesoJiné
Zdroj topeníCentrální dálkové
Zdroj teplé vodyCentrální dálkový ohřev
Parkování

Origo partneři v Lišově

Popis

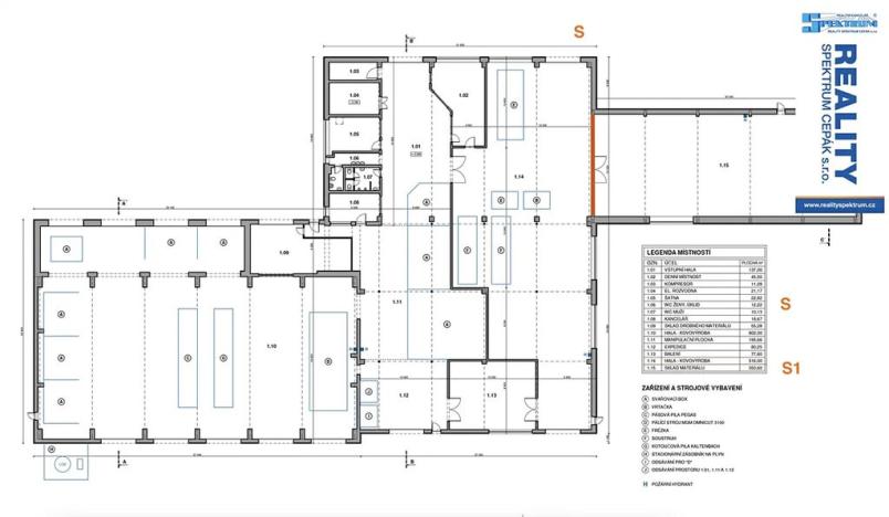
Pronájem moderní provozní budovy vhodné pro výrobu, skladování, opravárenské služby a další v komerčním areálu na okraji města. Budova je rozdělena na čtyři samostatné provozní celky. Celková využitelná výměra budovy je 2.357m2. Součástí budovy jsou kanceláře, denní místnosti pro zaměstnance a sociální zařízení. Samostatný sklad nebezpečných látek a kompresorovna. V hlavní provozní hale o výměře 802m2 je mostový jeřáb s nosností 5t. Hala má 6 samostatných vjezdových i výjezdových vrat. K dispozici jsou i montážní jámy. Provozní výška haly je 7,5m. Ostatní prostory mají provozní výšku 6m. Všechny vjezdová vrata do budovy mají rozměr 4m šířka x 4,5m výška. Budova sloužila dříve jako servis nákladních automobilů. V současné době je využita pro těžkou kovovýrobu. Rozměry jednotlivých částí vč. plánu současného využití viz. fotografie. Celá budova je vytápěná (možnost regulace jednotlivých sekcí). Elektrický příkon 140kW (200A), je možné i navýšení. Vytápění moderními plynovými topidly ROBUR s možností lokálního nastavování. K dispozici jsou velké venkovní manipulační plochy a parkovací plochy pro zaměstnance i návštěvy. Přístup do areálu je 24/7. Areál má stálou ostrahu a vrátnici. Možnost pronájmu dalších prostorů v areálu (administrativa, sklady, manipulační plochy) viz. objekt A a B.

Makléř

Máte zájem o tuto nemovistost?

Tímto, v souladu s nařízením Evropského parlamentu a Rady (EU) 2016/679, v platném znění, prohlašuji, že mi je alespoň 16 let a uděluji tak svůj souhlas se zpracováním zadaných údajů (jméno, telefon, e-mail, ip adresa) společnosti B3 Technology, s.r.o., IČ: 07330600, se sídlem Novostavby 126/23, 435 11 Lom (správce dat), za účelem předání dotazu z tohoto formuláře Vámi vybranému inzerentovi a zpětného kontaktování mé osoby. Osobní údaje bude správce zpracovávat manuálně i automaticky přímo prostřednictvím svých zaměstnanců. Informace předané tímto formulářem budou uloženy v databázi správce maximálně po dobu 10 let. Odvolání souhlasu s uložením a zpracováním poskytnutých dat lze e-mailem na info@origo-reality.cz. V případě podezření na neoprávněné použití Vámi poskytnutých údajů máte právo předat podnět k šetření Úřadu pro ochranu osobních údajů. Více informací
Chystáte se prodat nemovitost?
Pomůžeme Vám!

Přihlášení k odběru

Nenechte si ujít nejnovější nabídky pronájmu výrobních prostor v Lišově (okr. České Budějovice).