Pronájem kanceláře, Praha - Nové Město, náměstí Republiky, 1722 m2 (ID: 1774750)

náměstí Republiky, Praha, Nové Město

25 €
/za metr čtvereční / měsíc
Poplatky za služby 150 Kč/m2/měsíc + spotřeba elektřiny + DPH. Nájemné parkování 250 EUR/místo/měsíc + DPH
Získejte výhodnou HYPOTÉKU Chci hypotéku

Parametry nemovitosti

Adresanáměstí Republiky, Praha, Nové Město
ID00023-4
StavbaSkeletová
Stav objektuNovostavba
Patro4.
Užitná plocha1722 m2
Třída energetické náročnostiC - Úsporná
Ukazatel energetické náročnosti192 kWh/m2 za rok
DopravaMHD
Garáž
Výtah
Bezbarierový přístup

Origo partneři v Praze 1

Stěhovací služby

Výkup a prodej starého nábytku

Pojištění a finance

Popis

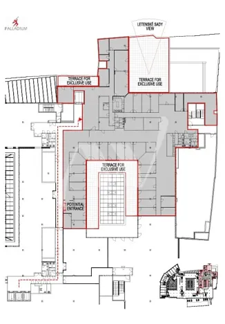
Nabízíme k pronájmu flexibilní klimatizovanou kancelář s privátními terasami s nádhernými výhledy v budově PALLADIUM.

Velikost prostoru je 1722 m2 a nachází se ve 3.patře budovy.

Ke kanceláří je možné si pronajmout parkovací místa v podzemní garáži.

• dispozice kanceláře je flexibilní a bude upravena na míru pro budoucího nájemce
• součástí jsou privátní terasy s výhledy
• toalety jsou sdílené
• kuchyňka je součástí prostoru
• kancelář bude nově vymalovaná, s novým kvalitním kobercem, LED osvětlením a SDK příčkami (vše v ceně)
• vstup do kanceláře je přes recepci budovy z ulice Na poříčí
• kancelář je možné spojit se sousedící jednotkou 653 m2 a vytvořit tak plochu až 2375 m2

Budova PALLADIUM nabízí moderní kanceláře v centru Prahy spolu s podzemním parkováním a 24-hodinovým přístupem. 

PALLADIUM nabízí nájemcům společnou terasu, kolárnu a sprchy.

Díky přímému vstupu do nákupního centra PALLADIUM budete mít po ruce řadu restaurací, obchodů i služby.

Technická specifikace budovy:
• čtyř-trubkový fan-coil systém vytápění, větrání a klimatizace
• individuálně nastavitelná teplota
• otevíratelná okna
• automatické vnější žaluzie
• zdvojené podlahy a podlahové krabice
• vysoce kvalitní koberec
• stropy s čistou výškou 3 m
• LED osvětlení
• připojovací bod pro optický kabel
• detektory kouře a sprinklery
• moderní přístupový a bezpečnostní systém

Parkování je zajištěno v podzemní garáži. Nájemné je 250 EUR/stání/měsíc + DPH.

Poplatky za služby (kancelář): 150 CZK/m2/měsíc + spotřeba elektřiny + DPH.

K dispozici dohodou.

NÁJEMCE NEHRADÍ PROVIZI.

Makléř

Máte zájem o tuto nemovistost?

Tímto, v souladu s nařízením Evropského parlamentu a Rady (EU) 2016/679, v platném znění, prohlašuji, že mi je alespoň 16 let a uděluji tak svůj souhlas se zpracováním zadaných údajů (jméno, telefon, e-mail, ip adresa) společnosti B3 Technology, s.r.o., IČ: 07330600, se sídlem Novostavby 126/23, 435 11 Lom (správce dat), za účelem předání dotazu z tohoto formuláře Vámi vybranému inzerentovi a zpětného kontaktování mé osoby. Osobní údaje bude správce zpracovávat manuálně i automaticky přímo prostřednictvím svých zaměstnanců. Informace předané tímto formulářem budou uloženy v databázi správce maximálně po dobu 10 let. Odvolání souhlasu s uložením a zpracováním poskytnutých dat lze e-mailem na info@origo-reality.cz. V případě podezření na neoprávněné použití Vámi poskytnutých údajů máte právo předat podnět k šetření Úřadu pro ochranu osobních údajů. Více informací
Chystáte se prodat nemovitost?
Pomůžeme Vám!
Theleadway banner