Prodej bytu 3+kk, Povljana, Chorvatsko, 76 m2
Povljana
/za nemovitost
31.1.25 cena sníž. z 264 800 na 253 800, 7.5.25 cena sníž. na 240 100
Parametry bytu
| Adresa | Povljana | 
|---|---|
| ID | CHSM24-088N-S5 | 
| Stavba | Smíšená | 
| Stav objektu | Ve výstavbě | 
| Patro | 3. z 3 | 
| Vybaveno | Ne | 
| Vlastnictví | Osobní | 
| Užitná plocha | 76 m2 | 
| Podlahová plocha | 76 m2 | 
| Třída energetické náročnosti | G - Mimořádně nehospodárná | 
| Elektřina | 230V | 
| Balkon | |
| Parkování | 
Popis
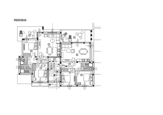
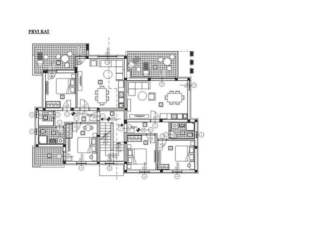
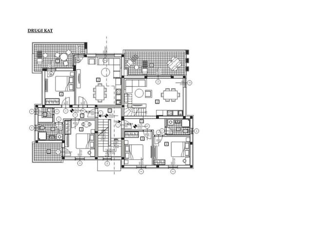
Dovolujeme si Vám nabídnout na prodej nový apartmán s 2 ložnicemi v obci Povljana na ostrově Pag, jenž je spojen s pevninou mostem, v Zadarské oblasti v Chorvatsku. Apartmán se nachází v rezidenční budově ve výstavbě a možné nastěhování je naplánováno na léto 2024. Budova sestává z přízemí a dvou pater a celkem z 6 apartmánů s výhledem na moře. 
Nabízený apartmán S5 o ploše 76,23 m2 je situovaný ve 2. patře a sestává z chodby, 1 koupelny, 2 ložnic, komory, kuchyně s obývacím pokojem a 2 balkonů na východní a západní straně. Náleží k němu 1 venkovní parkovací stání. 
Budova má železobetonovou konstrukci a tepelnou a zvukovou izolaci. Interiér bytů má prvotřídní obklady podlah a stěn, okna mají hliníkové žaluzie a moskytiéry, koupelny jsou vybaveny špičkovou sanitární technikou, vstupní dveře jsou bezpečnostní a každý z bytů má napojení na komín. V ložnicích a obývacím pokoji je klimatizace a terasy či balkony mají skleněné zábradlí. 
Apartmány v přízemí jsou vybaveny kamerovým systémem a mají samostatné oplocené zahrádky upravené ve středomořském stylu. V zahradách je instalace elektřiny a vody a příprava na vířivku nebo bazén. Vzdálenost nemovitosti od moře je asi 360 m. Další apartmány v budově ke koupi naleznete na našich webových stránkách pod ID: CHSM24088N.
Přihlášení k odběru
Nenechte si ujít nejnovější nabídky prodeje bytů 3+kk.
 
                                                                                     
                                                                                     
                                                                                     
                                                                                     
                                                                                     
                                                                                     
                                                                                     
                                                                                     
                                                                                     
                                                                                     
                                                                                     
                                                                                     
                                                                                     
                                                                                     
                                                                                     
                                                                                     
                                                                                     
                         
         
         
         
         
         
         
         
        