Prodej bytu 3+kk, Zadar, Chorvatsko, 74 m2
Zadar
/za nemovitost
Parametry bytu
| Adresa | Zadar | 
|---|---|
| ID | CHSM25-061-S3 | 
| Stavba | Smíšená | 
| Stav objektu | Novostavba | 
| Patro | 2. z 3 | 
| Vlastnictví | Osobní | 
| Užitná plocha | 74 m2 | 
| Podlahová plocha | 74 m2 | 
| Třída energetické náročnosti | G - Mimořádně nehospodárná | 
| Odpad | Veřejná kanalizace | 
| Voda | Vodovod | 
| Garáž | |
| Terasa | |
| Parkování | 
Popis
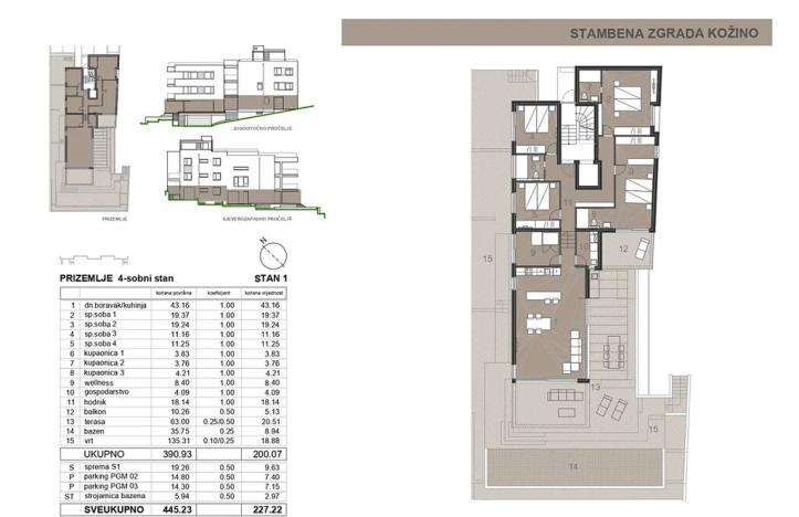
Dovolujeme si Vám nabídnout na prodej hezký apartmán se 2 ložnicemi v novostavbě s částečným výhledem na moře v ZadaruKožino v Zadarské oblasti v Chorvatsku.
Apartmán S3 o ploše 74,36 m2 je umístěný v 1. patře třípodlažní budovy a sestává z chodby, 2 ložnic, koupelny, obývacího pokoje s kuchyní a jídelnou se vstupem na prostornou terasu s výhledem na moře. V každé místnosti je klimatizace na chlazení i vytápění a v koupelně je elektrické podlahové vytápění, na oknech jsou elektrické rolety. Apartmán je vybaven vysoce kvalitní italskou keramikou, sanitou značky Grohe a Laufen,  a dům je zateplený. K apartmánu náleží jedno parkovací stání v garáži a jedno před budovou a také úložný prostor. 
Dům je napojený na vodovodní a kanalizační řád a od moře je vzdálený 80 m.
Letovisko Kožino se nachází  cca 5 km severozápadně od města Zadar. Město Zadar se kvůli velkému množství kostelů a římským památkám (např. Zadarské Foru, na němž vyrostl kostel sv. Donáta, nazývá „Malým chorvatským Římem“.  V Zadaru se dále nachází dvě světové unikátní atrakce, Mořské varhany (Morske orgulje) a Pozdrav Slunci (Pozdrav Suncu). Na Riviéře Zadar se nachází i  další historická místa s překrásnými památkami.
Přihlášení k odběru
Nenechte si ujít nejnovější nabídky prodeje bytů 3+kk.
 
                                                                                     
                                                                                     
                                                                                     
                                                                                     
                                                                                     
                                                                                     
                                                                                     
                                                                                     
                                                                                     
                                                                                     
                                                                                     
                                                                                     
                                                                                     
                                                                                     
                                                                                     
                                                                                     
                                                                                     
                                                                                     
                                                                                     
                                                                                     
                                                                                     
                                                                                     
                                                                                     
                                                                                     
                                                                                     
                                                                                     
                         
         
         
         
         
         
         
         
        