Prodej bytu 2+1, Brno, náměstí SNP, 55 m2

náměstí SNP, Brno, Černá Pole

6 242 000 Kč
/za nemovitost
VČETNÉ provize RK, včetně právního servisu, včetně poplatků
Hypotéka od 27 898 Kč /měs. Chci hypotéku

Parametry bytu

Adresanáměstí SNP, Brno, Černá Pole
ID03490
StavbaPanelová
Stav objektuVelmi dobrý
Patro8. z 8
VybavenoČástečně
Lokalita objektuKlidná část obce
VlastnictvíOsobní
Užitná plocha55 m2
Podlahová plocha57 m2
Třída energetické náročnostiC - Úsporná
Ukazatel energetické náročnosti73 kWh/m2 za rok
Elektřina230V
OdpadVeřejná kanalizace
TelekomunikaceInternet, Kabelové rozvody
VodaVodovod
Zdroj topeníÚstřední dálkové
Zdroj teplé vodyCentrální dálkový ohřev
Balkon
Sklep
Výtah

Origo partneři v Brně

Popis

Hledáte byt na skvělé adrese, který byste si zrekonstruovali podle svých potřeb a vyšperkovali podle svého vkusu? Jeden takový, volný a vyklizený, čeká na nové majitele v Brně - Černých Polích, přímo u parku na náměstí SNP.
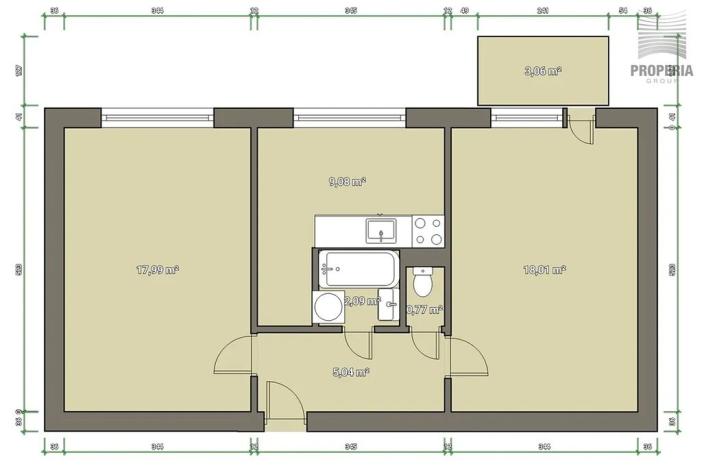
Má dispozici 2+1 s balkonem, je v původním stavu (s umakartovým jádrem), přesto má i nyní svoje kouzlo... Mezi fotografiemi najdete i orientační plánek bytu.
Byt se nachází v posledním (8.) podlaží , takže nehrozí, že by Vás shora rušilo dupání dětských nožiček..., z balkonu i všech oken nabízí krásný výhled na okolí plné zeleně, orientován je na jihovýchod. Bytový dům je po revitalizaci, výtah je samozřejmostí, v přízemí domu je sklepní kóje, k dispozici je i společná kolárna a kočárkárna.
Při koupi nemovitostí je nejdůležitější lokalita a troufám si říct, že v Brně těžko najdete lepší místo pro bydlení, než jsou Černá Pole, sama bydlím nedaleko. Černá Pole jsou z velké části tvořena zástavbou rodinnými domy, tyto klidné ulice spolu se spoustou zeleně a několika parky lákají k procházkám a sportovním aktivitám, třeba v krásném parku Schreberovy zahrádky a v okolí vily Tugendhat. No a pokud někdo dává přednost klidnému odpočinku, stačí sjet výtahem a posedět třeba na lavičce v parku přímo u domu.
Co se týče občanské vybavenosti, přímo na Náměstí SNP najdete vše potřebné. Pár metrů od domu jsou MŠ a ZŠ, dětská hřiště, restaurace, posilovna, wellness, knihovna, sportoviště, obchůdky, zubní ordinace, lékárna, také Mendelova univerzita s arboretem,.., a co nenajdete tady, najdete o kousek dál, třeba na Lesné (supermarkety, polikliniku na Halasově nám., krytý bazén Tesla..).
Do centra se dostanete tramvají za 10 minut, já jsem si to dávala s kočárkem přes nedaleké Lužánky i pěšky, je to skvělá procházka. Výborná je i dostupnost do všech brněnských nemocnic, středních i vysokých škol, divadel, nákupních center..
Parkování je možné v okolí domu v modrých zónách. S majiteli budeme nabízet k prodeji i garáž v parkovacím domě na ulici Loosova. I když to není zrovna u domu, třeba by se také hodila..
Měsíční náklady vychází na 3.898,- Kč (z toho fond oprav 1.103,- Kč) + elektřina a plyn (pouze sporák).
Pokud Vás tato nabídka zaujala, volejte, pište, ráda sdělím více informací a domluvíme se na prohlídku. Budu se na Vás těšit!

Makléř

Máte zájem o tento byt?

Tímto, v souladu s nařízením Evropského parlamentu a Rady (EU) 2016/679, v platném znění, prohlašuji, že mi je alespoň 16 let a uděluji tak svůj souhlas se zpracováním zadaných údajů (jméno, telefon, e-mail, ip adresa) společnosti B3 Technology, s.r.o., IČ: 07330600, se sídlem Novostavby 126/23, 435 11 Lom (správce dat), za účelem předání dotazu z tohoto formuláře Vámi vybranému inzerentovi a zpětného kontaktování mé osoby. Osobní údaje bude správce zpracovávat manuálně i automaticky přímo prostřednictvím svých zaměstnanců. Informace předané tímto formulářem budou uloženy v databázi správce maximálně po dobu 10 let. Odvolání souhlasu s uložením a zpracováním poskytnutých dat lze e-mailem na info@origo-reality.cz. V případě podezření na neoprávněné použití Vámi poskytnutých údajů máte právo předat podnět k šetření Úřadu pro ochranu osobních údajů. Více informací
Chystáte se prodat nemovitost?
Pomůžeme Vám!

Přihlášení k odběru

Nenechte si ujít nejnovější nabídky prodeje bytů 2+1 v Brně.