Prodej činžovního domu, Velké Meziříčí - Mostiště, 380 m2 (ID: 1770819)

Velké Meziříčí, Mostiště

10 300 000 Kč
/za nemovitost
Za nemovitost.
Hypotéka od 46 035 Kč /měs. Chci hypotéku

Parametry nemovitosti

AdresaVelké Meziříčí, Mostiště
ID870004
StavbaCihlová
Stav objektuDobrý
VybavenoAno
Lokalita objektuPolosamota
VlastnictvíOsobní
Užitná plocha380 m2
Plocha pozemku868 m2

Origo partneři v Velkém Meziříčí

Popis

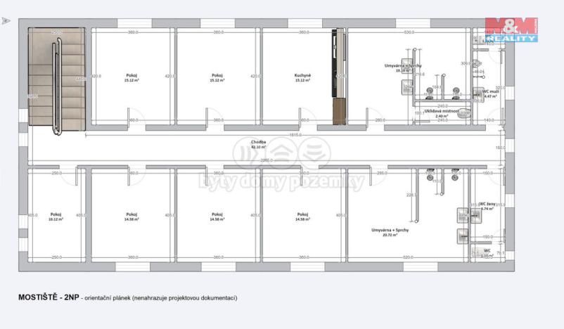
Nabízíme k prodeji ubytovací dům v klidné části Mostiště, v bezprostřední blízkosti Velkého Meziříčí. Tento zděný dům s dvěma NP a jedním PP představuje vynikající příležitost pro investici do ubytovacího zařízení. Dům disponuje celkem 10 dvoulůžkovými pokoji, které byly nedávno zrekonstruovány, dvěmi vybavenými kuchyněmi, dvěma koupelnami se sprchovým koutem a umyvadly a dvěma místnostmi s toaletami. K dispozici je také parkování ve 4 garážích přímo u objektu, což zajišťuje pohodlné parkování pro hosty. Celý objekt je ve velmi dobrém technickém stavu a průběžně je udržován a modernizován. Poslední rekonstrukce proběhla v roce 2021. Pro vytápění a ohřev vody je využívána vlastní kotelna, kde nalezneme plynový kotel, tepelné čerpadlo, bojler. Dům je napojen na inženýrské sítě. Kromě toho je k dispozici vyhrazené parkovací stání zdarma. Ubytovna je momentálně plně pronajmuta. Tento dobře udržovaný dům nabízí potenciál pro stabilní výnosy z pronájmu.

Makléř

Máte zájem o tuto nemovistost?

Tímto, v souladu s nařízením Evropského parlamentu a Rady (EU) 2016/679, v platném znění, prohlašuji, že mi je alespoň 16 let a uděluji tak svůj souhlas se zpracováním zadaných údajů (jméno, telefon, e-mail, ip adresa) společnosti B3 Technology, s.r.o., IČ: 07330600, se sídlem Novostavby 126/23, 435 11 Lom (správce dat), za účelem předání dotazu z tohoto formuláře Vámi vybranému inzerentovi a zpětného kontaktování mé osoby. Osobní údaje bude správce zpracovávat manuálně i automaticky přímo prostřednictvím svých zaměstnanců. Informace předané tímto formulářem budou uloženy v databázi správce maximálně po dobu 10 let. Odvolání souhlasu s uložením a zpracováním poskytnutých dat lze e-mailem na info@origo-reality.cz. V případě podezření na neoprávněné použití Vámi poskytnutých údajů máte právo předat podnět k šetření Úřadu pro ochranu osobních údajů. Více informací
Chystáte se prodat nemovitost?
Pomůžeme Vám!

Přihlášení k odběru

Nenechte si ujít nejnovější nabídky prodeje činžovních domů v Velkém Meziříčí.