Pronájem skladu, Hořovice, Sklenářka, 1067 m2 (ID: 1770635)

Sklenářka, Hořovice

5 €
/za metr čtvereční / měsíc
k jednání - NEPLATÍTE PROVIZI - NABÍZÍ PŘÍMÝ VLASTNÍK !
Získejte výhodnou HYPOTÉKU Chci hypotéku

Parametry nemovitosti

AdresaSklenářka, Hořovice
ID31/2025
StavbaMontovaná
Stav objektuVelmi dobrý
Lokalita objektuOkraj obce
Užitná plocha1067 m2
Třída energetické náročnostiE - Nehospodárná
Ukazatel energetické náročnosti276 kWh/m2 za rok
Elektřina230V, 400V
PlynPlynovod
OdpadVeřejná kanalizace
KomunikaceAsfaltová
TelekomunikaceInternet
DopravaVlak, Dálnice, Silnice, MHD, Autobus
VodaVodovod
Zdroj topeníPlynový kotel
Zdroj teplé vodyPlynový kotel
Bezbarierový přístup
Parkování

Origo partneři v Hořovicích

Popis

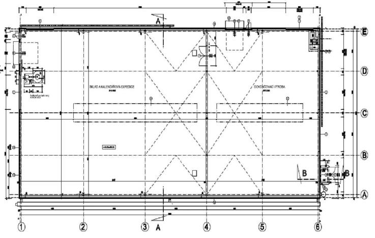
Majitel nabízí moderní temperované skladové prostory, samostatnou skladově výrobní halu o výměře 1.067 m2, v areálu ul. Sklenářka 1551/79, Hořovice, k dispozici od 01.08.2025:

- rozměry haly 48,5 m (délka) x 22 m (šířka),
- 2x automatická vjezdová vrata 2,7 m (výška) x 2,7 m (šířka),
- temperované a osvětlené prostory,
- přímý vstup/vjezd z příjezdové veřejné komunikace,
- příjezd pro TIR,
- nosnost podlah min. 6t/m2 - bezprašná úprava,
- světlá výška 5-6 m a více,
- veškeré inženýrské sítě,
- samostatné zázemí (WC, sprcha, denní místnost, kuchyňka atd.),
- parkovací stání (os. automobil/dodávka/TIR),
- možnost dalšího pronájmu v areálu (sklady, kanceláře, parkování),
- BUS zastávka MHD u areálu.

Velmi výhodné umístění areálu na kraji obce Hořovice, strategické umístění v blízkosti (3,5 km) od exitu 35 na D5 - Žebrák, směr Praha - Plzeň - Rozvadov (SRN). Střední uzavřený komerční areál bývalých Obchodních tiskáren Hořovice. V areálu velké vlastní venkovní parkoviště a BUS zastávka MHD Hořovice. K dispozici od 01.06.202.

Makléř

Máte zájem o tuto nemovistost?

Tímto, v souladu s nařízením Evropského parlamentu a Rady (EU) 2016/679, v platném znění, prohlašuji, že mi je alespoň 16 let a uděluji tak svůj souhlas se zpracováním zadaných údajů (jméno, telefon, e-mail, ip adresa) společnosti B3 Technology, s.r.o., IČ: 07330600, se sídlem Novostavby 126/23, 435 11 Lom (správce dat), za účelem předání dotazu z tohoto formuláře Vámi vybranému inzerentovi a zpětného kontaktování mé osoby. Osobní údaje bude správce zpracovávat manuálně i automaticky přímo prostřednictvím svých zaměstnanců. Informace předané tímto formulářem budou uloženy v databázi správce maximálně po dobu 10 let. Odvolání souhlasu s uložením a zpracováním poskytnutých dat lze e-mailem na info@origo-reality.cz. V případě podezření na neoprávněné použití Vámi poskytnutých údajů máte právo předat podnět k šetření Úřadu pro ochranu osobních údajů. Více informací
Chystáte se prodat nemovitost?
Pomůžeme Vám!

Přihlášení k odběru

Nenechte si ujít nejnovější nabídky pronájmu skladů v Hořovicích.