Prodej rodinného domu, Černá v Pošumaví - Mokrá, 200 m2 (ID: 1769831)

Černá v Pošumaví, Mokrá

7 200 000 Kč
/za nemovitost
Hypotéka od 32 180 Kč /měs. Chci hypotéku

Parametry domu

AdresaČerná v Pošumaví, Mokrá
ID11153
StavbaCihlová
Stav objektuVelmi dobrý
VybavenoČástečně
Typ objektuPatrový
Druh objektuSamostatný
Lokalita objektuKlidná část obce
Užitná plocha200 m2
Zastavěná plocha182 m2
Podlahová plocha300 m2
Plocha pozemku1309 m2
Plocha zahrady1127 m2
Třída energetické náročnostiG - Mimořádně nehospodárná
Elektřina120V, 230V
OdpadSeptik, Jímka
KomunikaceZpevněná
TelekomunikaceInternet
DopravaSilnice, Autobus
VodaVodovod
Garáž
Sklep
Převod do OV
Parkování

Origo partneři v Černé v Pošumaví

Výkup a prodej starého nábytku

Pojištění a finance

Popis

Prodej velkého třípodlažního domu se dvěma bytovými jednotkami, 6+2, u Černé v Pošumaví, Lipno, Lipensko.

Celková plocha prodávaných pozemků má výměru 1.309m2, přičemž zastavěná ploch a nádvoří je 182m2 a pozemky, zahrada, okolo o ploše 1.127m2.

Budova samotná se skládá ze dvou samostatných velkých bytových jednotek, sklepa s garáží a prostorného podkroví.

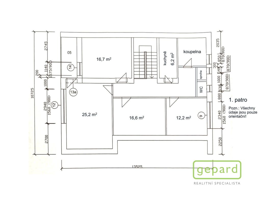
V 1.NP je byt se dvěma pokoji, kuchyní s jídelním koutem a sociálním zařízením.

Výstupem po schodišti se dostaneme do 2.NP kde se nachází větší bytová jednotka sestávající ze 4 pokojů, kuchyně a sociálního zařízení.

V obou patrech je k dispozici balkon a v přízemním pak i prosluněná terasa orientovaná jižním směrem.

Suterénní část je tvořena prostornou garáží, technickým zázemím domu, skladovacími prostory hernou pro děti.

Prostorné podkroví je vhodné jak k vestavbě tak jako další úložný a skladovací prostor.

Na dům navazuje v zadní části i pergola s posezením a výhledem do zahrady.

Prohlídněte si prosím naší fotogalerii.

Nemovitost je vhodná jak k trvalému bydlení, tak svou polohou na Lipensku a v blízkosti lipenské přehrady, i ke komerčním účelům, pronájmu, ubytovacím službám.

Vzdálenost do Černé v Pošumaví 3km, do Českého Krumlova 20km po kvalitní rychlé komunikaci.

V okolí a dojezdové vzdálenosti jsou k dispozici veškeré sportovní a volnočasové areály pro letní i zimní sporty v Lipně nad Vltavou, Frymburku i v Černé v Pošumaví.

Energetická třída PENB „G“ je uvedena z formálních důvodů dle zákona č. 103/2015 Sb., po obdržení průkazu energetické náročnosti budovy bude uvedena skutečná hodnota.

Více informací na níže uvedeném telefonním čísle, včetně zmíněného geometrického plánu.
Prohlídky po předchozí domluvě z kanceláře v Českém Krumlově.

Možnost zajištění financování koupě této nemovitosti hypotéčním úvěrem.

Makléř

Máte zájem o tento dům?

Tímto, v souladu s nařízením Evropského parlamentu a Rady (EU) 2016/679, v platném znění, prohlašuji, že mi je alespoň 16 let a uděluji tak svůj souhlas se zpracováním zadaných údajů (jméno, telefon, e-mail, ip adresa) společnosti B3 Technology, s.r.o., IČ: 07330600, se sídlem Novostavby 126/23, 435 11 Lom (správce dat), za účelem předání dotazu z tohoto formuláře Vámi vybranému inzerentovi a zpětného kontaktování mé osoby. Osobní údaje bude správce zpracovávat manuálně i automaticky přímo prostřednictvím svých zaměstnanců. Informace předané tímto formulářem budou uloženy v databázi správce maximálně po dobu 10 let. Odvolání souhlasu s uložením a zpracováním poskytnutých dat lze e-mailem na info@origo-reality.cz. V případě podezření na neoprávněné použití Vámi poskytnutých údajů máte právo předat podnět k šetření Úřadu pro ochranu osobních údajů. Více informací
Chystáte se prodat nemovitost?
Pomůžeme Vám!
Theleadway banner

Přihlášení k odběru

Nenechte si ujít nejnovější nabídky prodeje rodinných domů v Černé v Pošumaví.